Amherst Road, Rochester
By Greenleaf Property Services Ltd
£ 250,000
Reviews
2 out of 5 stars
Greenleaf Property Services Ltd says ..
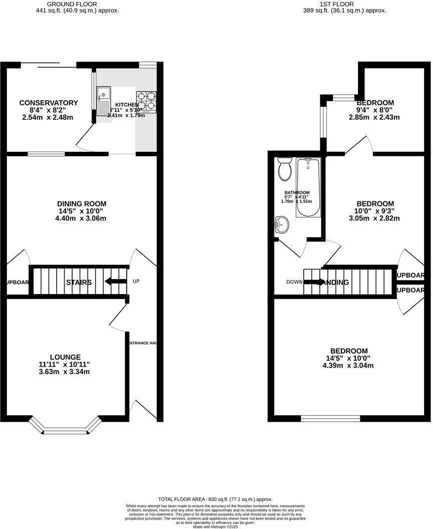
GREENLEAF PROPERTY SERVICES are delighted to introduce this vacant three bedroom semi detached house to the market, in a sought-after residential location in ME1 Rochester. Available with NO ONGOING CHAIN, this ideal first-time buyer/investment property boasts three bedrooms, an upstairs bathroo...
Property Oracle says ..
Therefore, we give this property 5 / 10. *Disclaimer: This is our option and does constitute a recommendation or financial advice. Do your own research. *
- Price
- 7
- Condition
- 3
- Location
- 7
- Land
- 6
- Bedrooms
- 3
- Bathrooms
- 1
- Sqft (est)
- 728.29
The heatmap indicates the level of crime in the area. The color of the heatmap indicates the crime severity and recency.
Metrics Year-on-Year
- Average area value
- 328,564.00 £Increased by 9.70 %
- Est sale value
- 345,937.75 £Increased by 39.30 %
- Average area rental value
- 1,006.00 £/moDecreased by 27.10 %
- Est letting value
- 728.29 £/moUnchanged by 0.00 %
- Est rental Yield
- 3.67 %Decreased by 33.63 %
- Crime Rate
- 3.00 %Unchanged by 0.00 %
from 299,516.00 £
from 248,346.89 £
from 1,380.00 £/mo
from 728.29 £/mo
from 5.53 %
from 3.00 %
Agent Activity
Greenleaf Property Services Ltd created the listing.
Nearby Schools
| Name | Type | Ofsted | Distance |
|---|---|---|---|
| St Peter'S Infant School | Community School | Good | 0.53 KM |
| Crest Infant School | Community School | Good | 0.68 KM |
| Fort Pitt Grammar School | Academy Converter | 0.69 KM | |
| Balfour Junior School | Academy Converter | Good | 0.76 KM |
| Delce Academy | Academy Converter | 0.77 KM |
Images
Nearby Streets
| Name | Average Price | Average Sqft | Distance |
|---|---|---|---|
| Frobisher Gardens | £ 0 | 0 | 0.00 KM |
| The Cut | £ 462,500 | 0 | 0.00 KM |
| A2 | £ 0 | 0 | 0.00 KM |
| Mozart Court | £ 0 | 0 | 0.00 KM |
| New Road | £ 190,000 | 0 | 0.00 KM |
Nearby Transport
| Name | NLC | TLC | Distance |
|---|---|---|---|
| Rochester | 5203 | RTR | 1.02 KM |
| Chatham | 5199 | CTM | 1.39 KM |
| Strood (Kent) | 5191 | SOO | 2.45 KM |
| Gillingham (Kent) | 5169 | GLM | 4.63 KM |
| Cuxton | 5201 | CUX | 5.26 KM |
Nearby Listings
| Address | Price | Type | Score | Distance |
|---|---|---|---|---|
| Amherst Road, Rochester | £ 250,000 | BUY | 5 / 10 | 0.00 KM |
| Amherst Road, Rochester, Kent, ME1 | £ 275,000 | BUY | 7 / 10 | 0.05 KM |
| Arthur Road, Rochester, Kent, ME1 | £ 375,000 | BUY | 7 / 10 | 0.06 KM |
| Arthur Road, Rochester, ME1 2AS | £ 450,000 | BUY | 7 / 10 | 0.07 KM |
| Arthur Road, Rochester, Medway | £ 435,000 | BUY | Unknown | 0.07 KM |
Nearby Properties
| Address | Price | Distance |
|---|---|---|
| 42 Amherst Road | £ 147,000 | 0.05 KM |
| 14 Amherst Road | £ 235,000 | 0.05 KM |
| 50 Amherst Road | £ 82,000 | 0.05 KM |
| 12 Amherst Road | £ 180,000 | 0.05 KM |
| 6 Amherst Road | £ 255,000 | 0.05 KM |