Keatons says ..
A modern ground floor apartment situated on Ham Park Road. This beautifully presented ground floor property boasts one spacious bedroom, a modern bathroom and a stylish living area. The apartment also benefits from a private garden, perfect for relaxing or entertaining guests. With its convenient...
Property Oracle says ..
This is a well-presented one-bedroom flat in the Forest Gate South area of London. The property benefits from a modern kitchen and bathroom, a private garden, and good access to local amenities and transport links. The flat is in good condition and appears to be well-maintained. The asking price of £325,000 seems reasonable for the location and condition of the property. The flat is located close to several schools, including Park Primary School, Azhar Academy Girls School and Stratford School Academy. Forest Gate station is also within walking distance, providing easy access to central London.
Therefore, we give this property 7 / 10. *Disclaimer: This is our option and does constitute a recommendation or financial advice. Do your own research. *
- Price
- 7
- Condition
- 8
- Location
- 7
- Land
- 6
- Bedrooms
- 1
- Bathrooms
- 1
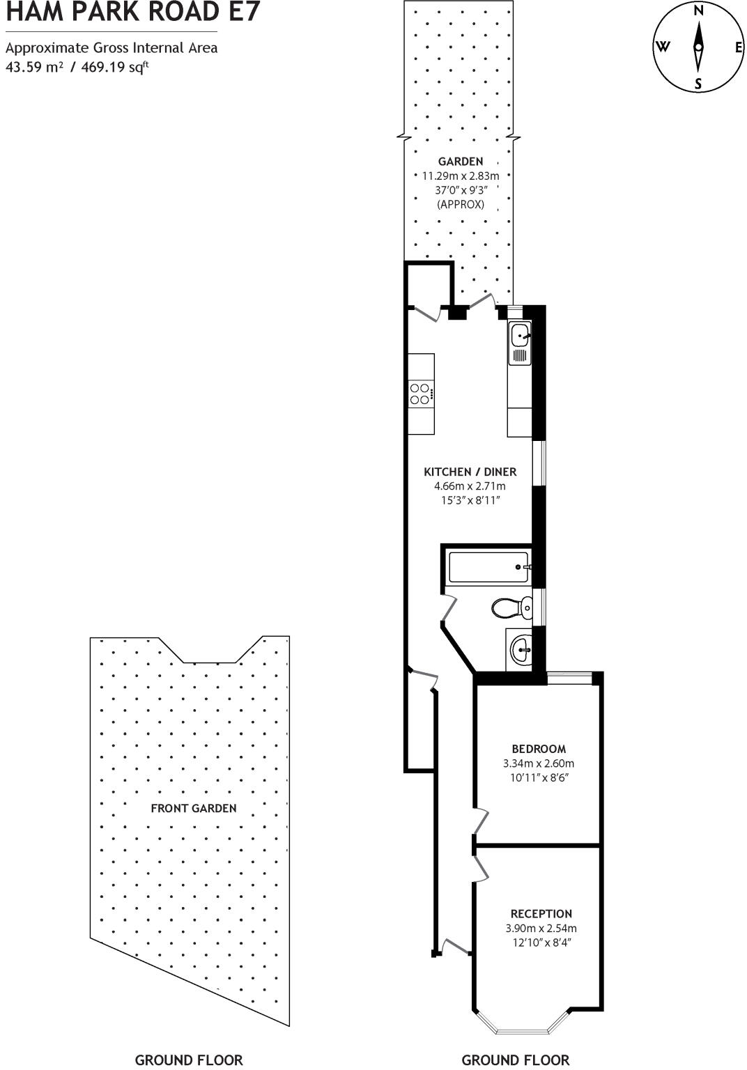
- Sqft (est)
- 469.20
The heatmap indicates the level of crime in the area. The color of the heatmap indicates the crime severity and recency.
Metrics Year-on-Year
- Average area value
- 534,167.00 £Increased by 13.39 %
- Est sale value
- 398,350.80 £Increased by 54.93 %
- Average area rental value
- 1,996.00 £/moDecreased by 1.19 %
- Est letting value
- 1,407.60 £/moIncreased by 50.00 %
- Est rental Yield
- 4.48 %Decreased by 13.01 %
- Crime Rate
- 2.00 %Unchanged by 0.00 %
Agent Activity
Keatons created the listing.
Nearby Schools
| Name | Type | Ofsted | Distance |
|---|---|---|---|
| Park Primary School | Community School | Good | 0.39 KM |
| Azhar Academy Girls School | Other Independent School | Good | 0.52 KM |
| Stratford School Academy | Academy Converter | Good | 0.56 KM |
| Earlham Primary School | Academy Converter | Good | 0.61 KM |
| St Antony'S Catholic Primary School | Academy Converter | 0.71 KM |
Images
Nearby Streets
| Name | Average Price | Average Sqft | Distance |
|---|---|---|---|
| Crownage Close | £ 0 | 0 | 0.00 KM |
| Vicar's Close | £ 0 | 0 | 0.00 KM |
| Lancaster Road | £ 0 | 0 | 0.00 KM |
| Park Grove | £ 527,500 | 0 | 0.00 KM |
| Adler Court | £ 0 | 0 | 0.00 KM |
Nearby Transport
| Name | NLC | TLC | Distance |
|---|---|---|---|
| Forest Gate | 6876 | FOG | 1.08 KM |
| Wanstead Park | 7408 | WNP | 1.40 KM |
| Maryland | 6970 | MYL | 1.49 KM |
| West Ham | 7474 | WEH | 2.06 KM |
| Stratford | 6969 | SRA | 2.43 KM |
Nearby Listings
| Address | Price | Type | Score | Distance |
|---|---|---|---|---|
| Ham Park Road, London, E7 | £ 325,000 | BUY | 7 / 10 | 0.00 KM |
| Ham Park Road, London, E7 | £ 599,950 | BUY | 5 / 10 | 0.00 KM |
| Ham Park Road, LONDON, London, E7 | £ 500,000 | BUY | 5 / 10 | 0.00 KM |
| Reginald Road, London, E7 | £ 700,000 | BUY | 6 / 10 | 0.05 KM |
| Margery Park Road, Forest Gate, London, E7 | £ 1,250,000 | BUY | Unknown | 0.13 KM |
Nearby Properties
| Address | Price | Distance |
|---|---|---|
| 121 Ham Park Road | £ 249,999 | 0.00 KM |
| 127 Ham Park Road | £ 500,000 | 0.00 KM |
| 145 Ham Park Road | £ 42,000 | 0.00 KM |
| 135 Ham Park Road | £ 630,000 | 0.00 KM |
| 151a Ham Park Road | £ 150,000 | 0.00 KM |