Nested says ..
Planning permission approved for a 2 bedroom house to be built next to existing dwelling. Guide Price £675,000-£800,000 Application Reference Number is 231943
Property Oracle says ..
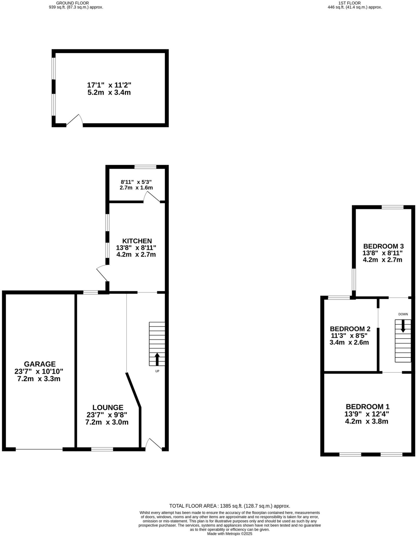
This property is a three-bedroom, one-bathroom detached house located on Suffield Road in Larkswood, Waltham Forest. The list price is £675,000, and the property has a plot size of 1,385 sqft and 982.76 sqft of internal living space. The average price for properties in the area is £504,938, with an average price per sqft of £530. The property benefits from being close to several schools, including Lime Academy Larkswood (rated “Good” by Ofsted) and is within reasonable distance of several transport links including Highams Park and Chingford Overground stations. The property appears to be undergoing significant renovation work, as evidenced by the images provided. The garden is present but currently cluttered with building materials and requires significant landscaping. Given the ongoing renovations, the current state of the garden, and the higher than average price per sqft compared to similar properties in the area, the value for money is questionable.
Therefore, we give this property 4 / 10. *Disclaimer: This is our option and does constitute a recommendation or financial advice. Do your own research. *
- Price
- 4
- Condition
- 3
- Location
- 7
- Land
- 4
- Bedrooms
- 3
- Bathrooms
- 1
- Sqft (est)
- 982.76
- Lot (est)
- 1,385.00
The heatmap indicates the level of crime in the area. The color of the heatmap indicates the crime severity and recency.
Metrics Year-on-Year
- Average area value
- 466,250.00 £Decreased by 4.61 %
- Est sale value
- 776,380.40 £Increased by 30.36 %
- Average area rental value
- 2,019.00 £/moIncreased by 3.70 %
- Est letting value
- 2,948.28 £/moIncreased by 50.00 %
- Est rental Yield
- 5.20 %Increased by 8.79 %
- Crime Rate
- 7.00 %Unchanged by 0.00 %
Agent Activity
Nested created the listing.
Nearby Schools
| Name | Type | Ofsted | Distance |
|---|---|---|---|
| Lime Academy Larkswood | Academy Converter | Good | 0.37 KM |
| Parkside Children'S Centre (Prev:The Ridgeway Park Children Centre) | Children's Centre Linked Site | 0.84 KM | |
| Ainslie Wood Primary School | Community School | Good | 0.84 KM |
| Parkside Primary School | Community School | Good | 0.92 KM |
| Chingford Foundation School | Academy Converter | Requires improvement | 1.25 KM |
Images
Nearby Streets
| Name | Average Price | Average Sqft | Distance |
|---|---|---|---|
| Grove Road | £ 480,600 | 0 | 0.00 KM |
| St John's Road | £ 510,000 | 0 | 0.00 KM |
| Windsor Road | £ 500,000 | 0 | 0.00 KM |
| Celandine Court | £ 323,667 | 0 | 0.00 KM |
| Phoenix Court | £ 295,000 | 0 | 0.00 KM |
Nearby Transport
| Name | NLC | TLC | Distance |
|---|---|---|---|
| Highams Park | 6919 | HIP | 1.50 KM |
| Chingford | 6914 | CHI | 2.60 KM |
| Wood Street | 6954 | WST | 3.66 KM |
| Ponders End | 6819 | PON | 3.90 KM |
| Walthamstow Central | 6953 | WHC | 4.18 KM |
Nearby Listings
| Address | Price | Type | Score | Distance |
|---|---|---|---|---|
| Suffield Road, London | £ 525,000 | BUY | Unknown | 0.03 KM |
| Suffield Road, Chingford, London | £ 500,000 | BUY | 7 / 10 | 0.04 KM |
| St Johns Road, Chingford | £ 535,000 | BUY | 7 / 10 | 0.09 KM |
| Grove Road, Chingford | £ 650,000 | BUY | Unknown | 0.10 KM |
| For Sale, 4 Bedroom Victorian Home, Grove Road, Chingford, London 4 | £ 650,000 | BUY | Unknown | 0.10 KM |
Nearby Properties
| Address | Price | Distance |
|---|---|---|
| 36 Suffield Road | £ 295,000 | 0.02 KM |
| 14 Suffield Road | £ 360,000 | 0.02 KM |
| 11 Suffield Road | £ 200,000 | 0.02 KM |
| 43 Suffield Road | £ 177,000 | 0.02 KM |
| 6 Suffield Road | £ 335,000 | 0.02 KM |