Canal Bank, New Lane, Burscough, L40
By Churcher Estates
£ 280,000
Reviews
3 out of 5 stars
Churcher Estates says ..
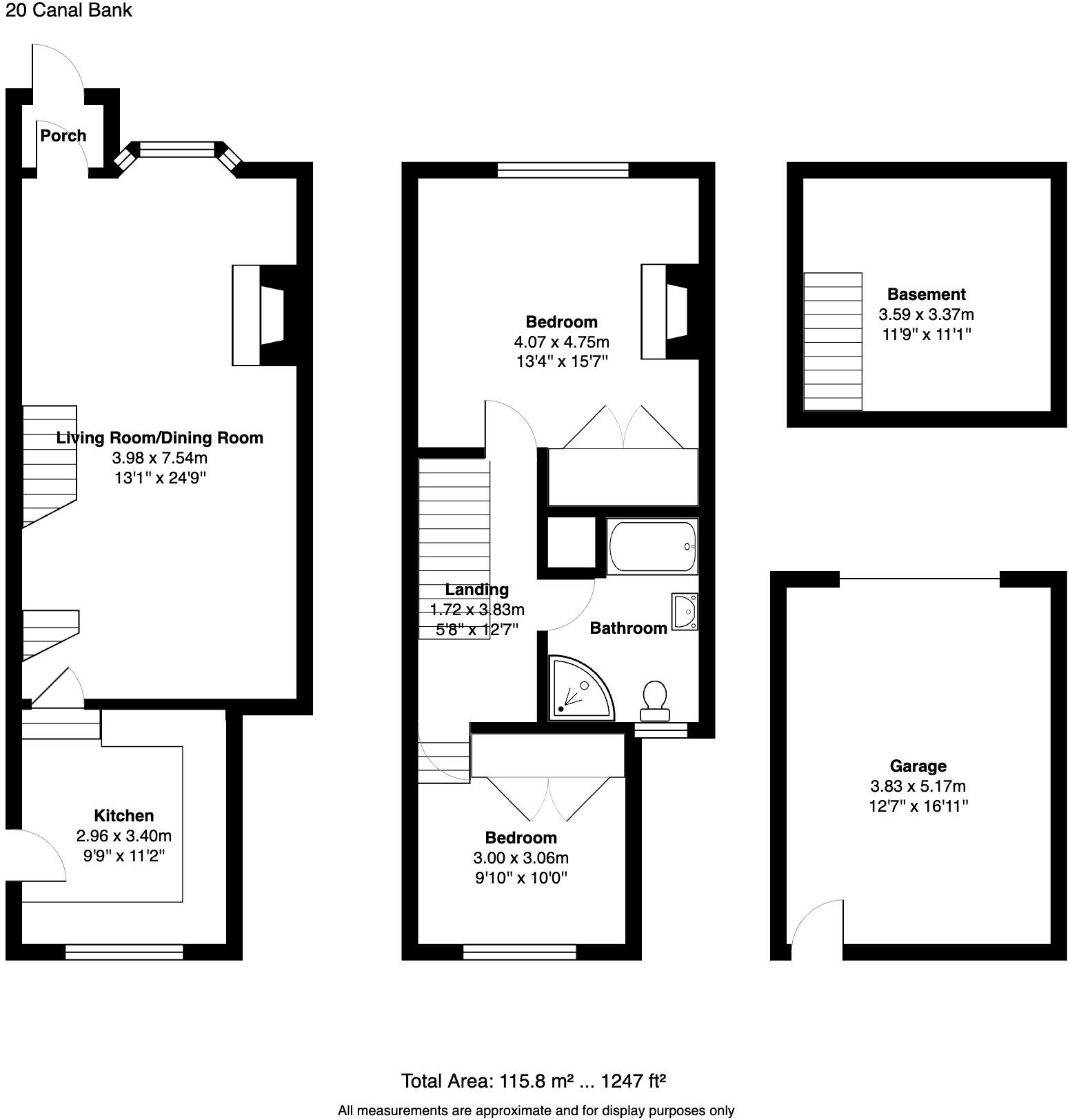
Churcher Estates are proud to present this fantastic opportunity to acquire a charming two-bedroom terraced property located on New Lane, situated directly on the canal and offering breath-taking views over stunning farmland. The village of Burscough is only a few minutes' drive away, offering an
Property Oracle says ..
This two-bedroom terraced house in Burscough, Lancashire, is situated on Canal Bank, offering a peaceful setting alongside the Leeds-Liverpool Canal. The property appears well-maintained, with what appears to be a recently updated kitchen and bathroom. The property boasts a pleasant rear garden, featuring a pond and various landscaping features. The interior décor reflects a personal style that buyers may find appealing, although some potential buyers may prefer to update it to their preferences.
The proximity to New Lane train station adds to the property’s convenience. A number of primary and secondary schools are within a reasonable distance. The town centre of Burscough offers further local amenities.
However, the lack of precise data on the plot size restricts a definitive assessment of the property’s size and value. Additionally, the price per square foot is not readily calculable due to a missing plot size value. The absence of precise details means the pricing can only be considered fairly reasonable, but requires further investigation to conclude fully. Overall, the property presents a tranquil and convenient location with potential for modernisation and is situated in a relatively desirable area with good access to transportation and amenities.
Therefore, we give this property 6 / 10. *Disclaimer: This is our option and does constitute a recommendation or financial advice. Do your own research. *
- Price
- 7
- Condition
- 6
- Location
- 7
- Land
- 4
- Bedrooms
- 2
- Bathrooms
- 1
- Sqft (est)
- 1,246.46
The heatmap indicates the level of crime in the area. The color of the heatmap indicates the crime severity and recency.
Metrics Year-on-Year
- Average area value
- 382,533.00 £Increased by 3.77 %
- Est sale value
- 458,697.28 £Increased by 5.44 %
- Average area rental value
- 1,090.00 £/moDecreased by 17.67 %
- Est letting value
- 1,246.46 £/moUnchanged by 0.00 %
- Est rental Yield
- 3.42 %Decreased by 20.65 %
- Crime Rate
- 33.00 %Unchanged by 0.00 %
Agent Activity
Churcher Estates created the listing.
Nearby Schools
| Name | Type | Ofsted | Distance |
|---|---|---|---|
| Burscough Priory Academy | Academy Sponsor Led | 2.38 KM | |
| Burscough Bridge Methodist School | Voluntary Controlled School | Good | 2.48 KM |
| The Grove Youth, Community & Children'S Centre | Children's Centre | 2.67 KM | |
| Burscough Lordsgate Township Church Of England Primary School | Voluntary Aided School | Good | 2.69 KM |
| Burscough Bridge St John'S Church Of England Primary School | Voluntary Controlled School | Good | 3.11 KM |
Images
Nearby Streets
| Name | Average Price | Average Sqft | Distance |
|---|---|---|---|
| Rochester Drive | £ 0 | 0 | 0.00 KM |
Nearby Transport
| Name | NLC | TLC | Distance |
|---|---|---|---|
| New Lane | 2358 | NLN | 0.53 KM |
| Burscough Bridge | 2279 | BCB | 2.83 KM |
| Burscough Junction | 2280 | BCJ | 3.04 KM |
| Ormskirk | 2281 | OMS | 4.51 KM |
| Bescar Lane | 2351 | BES | 5.65 KM |
Nearby Listings
| Address | Price | Type | Score | Distance |
|---|---|---|---|---|
| Canal Bank, New Lane, Burscough, L40 | £ 280,000 | BUY | 6 / 10 | 0.00 KM |
| Canal Bank, New Lane, Burscough L40 | £ 225,000 | BUY | 6 / 10 | 0.00 KM |
| 8 Canal Bank, New Lane, Burscough, L40 0RR | £ 310,000 | BUY | 7 / 10 | 0.01 KM |
| Canal Bank, New Lane, Burscough, Ormskirk | £ 189,950 | BUY | 6 / 10 | 0.05 KM |
| Canal Bank, New Lane, Burscough, Ormskirk | £ 215,000 | BUY | 7 / 10 | 0.08 KM |
Nearby Properties
| Address | Price | Distance |
|---|---|---|
| 80 New Lane | £ 135,000 | 0.37 KM |
| 72 New Lane | £ 180,000 | 0.37 KM |
| 84 New Lane | £ 158,000 | 0.37 KM |
| 76 New Lane | £ 53,500 | 0.37 KM |
| 94 New Lane | £ 180,000 | 0.37 KM |