Dexter Way, Winnersh, Wokingham, Berkshire, RG41
By Prospect Estate Agency
£ 585,000
Reviews
3 out of 5 stars
Prospect Estate Agency says ..
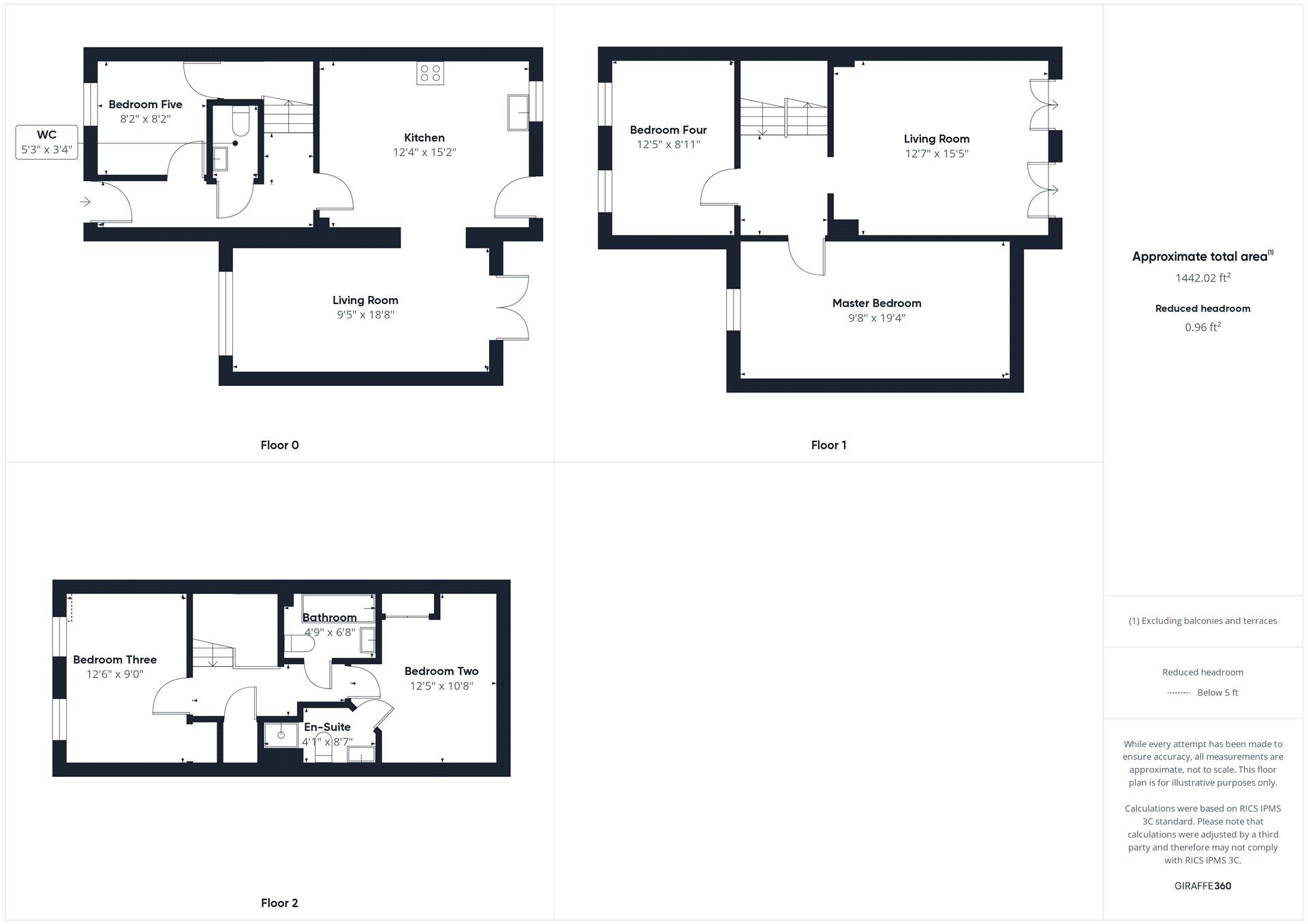
This impressive end-of-terrace townhouse in Dexter Way, Winnersh, offers approximately 1500 square feet of well-designed living space, spread over three floors to provide a versatile and comfortable family home. The ground floor has been thoughtfully extended by converting the garage ...
Property Oracle says ..
This property is a five-bedroom, two-bathroom house located in Winnersh, Wokingham. The location benefits from being close to Winnersh and Winnersh Triangle train stations, providing convenient access to commuting routes. Several schools, including The Forest School and Bearwood Primary School (both rated as “Good” by Ofsted), are within a reasonable distance. The property itself appears to be in good condition based on the provided photos, with a modern kitchen and updated bathrooms. While the plot size is not specified, there is a small garden visible in the photos. Considering the average house price in the area is £536,554 and the average price per square foot is £448, the list price of £585,000 seems slightly above average but reasonable given the property’s condition, location, and number of bedrooms. However, the lack of precise plot size information and comparable properties with similar square footage makes a definitive judgment on price challenging.
Therefore, we give this property 7 / 10. *Disclaimer: This is our option and does constitute a recommendation or financial advice. Do your own research. *
- Price
- 7
- Condition
- 8
- Location
- 9
- Land
- 4
- Bedrooms
- 5
- Bathrooms
- 2
- Sqft (est)
- 1,442.02
The heatmap indicates the level of crime in the area. The color of the heatmap indicates the crime severity and recency.
Metrics Year-on-Year
- Average area value
- 750,000.00 £Increased by 26.30 %
- Est sale value
- 455,678.32 £Decreased by 28.83 %
- Average area rental value
- 2,175.00 £/moIncreased by 10.29 %
- Est letting value
- 0.00 £/moDecreased by 100.00 %
- Est rental Yield
- 3.48 %Decreased by 12.56 %
- Crime Rate
- 36.00 %Unchanged by 0.00 %
Agent Activity
Prospect Estate Agency created the listing.
Nearby Schools
| Name | Type | Ofsted | Distance |
|---|---|---|---|
| Winnersh Children'S Centre | Children's Centre | 0.60 KM | |
| The Forest School | Academy Converter | Good | 0.90 KM |
| Bearwood Primary School | Community School | Good | 1.07 KM |
| Reddam House Berkshire | Other Independent School | 1.63 KM | |
| Winnersh Primary School | Community School | Good | 1.72 KM |
Images
Nearby Streets
| Name | Average Price | Average Sqft | Distance |
|---|---|---|---|
| Baslow Road | £ 560,000 | 0 | 0.00 KM |
| Mermaid Close | £ 0 | 0 | 0.00 KM |
| Rhodes Close | £ 0 | 0 | 0.00 KM |
| Rainbow Park | £ 0 | 0 | 0.00 KM |
| Grasmere Close | £ 575,000 | 0 | 0.00 KM |
Nearby Transport
| Name | NLC | TLC | Distance |
|---|---|---|---|
| Winnersh | 5697 | WNS | 0.95 KM |
| Winnersh Triangle | 5698 | WTI | 0.96 KM |
| Earley | 5694 | EAR | 3.79 KM |
| Wokingham | 5696 | WKM | 5.20 KM |
| Twyford | 3155 | TWY | 5.59 KM |
Nearby Listings
| Address | Price | Type | Score | Distance |
|---|---|---|---|---|
| Dexter Way, Wokingham, Berkshire, RG41 | £ 200,000 | BUY | 7 / 10 | 0.00 KM |
| Dunstans Drive, Winnersh, Wokingham, Berkshire, RG41 | £ 350,000 | BUY | 7 / 10 | 0.06 KM |
| Dexter Way, Winnersh, RG41 | £ 700,000 | BUY | Unknown | 0.07 KM |
| Dexter Way, Wokingham, Berkshire, RG41 | £ 175,000 | BUY | 7 / 10 | 0.11 KM |
| Sindle Close, Winnersh, Wokingham, Berkshire, RG41 | £ 380,000 | BUY | 6 / 10 | 0.12 KM |
Nearby Properties
| Address | Price | Distance |
|---|---|---|
| 3 Dexter Way | £ 532,500 | 0.01 KM |
| 5 Dexter Way | £ 295,000 | 0.01 KM |
| 1 Dexter Way | £ 575,000 | 0.01 KM |
| 29 Dexter Way | £ 217,750 | 0.01 KM |
| 24 Dexter Way | £ 310,000 | 0.01 KM |