MC
44 London Road, Bagshot, GU19 5HL
By McCarthy Stone
£ 360,000
Reviews
3 out of 5 stars
McCarthy Stone says ..
Warm and welcoming, Apartment 42 is a beautiful apartment. This energy-efficient contemporary home is ideal for relaxed, low-maintenance living with a vibrant community and friendly-faces just outside your front door.
Property Oracle says ..
Therefore, we give this property 6 / 10. *Disclaimer: This is our option and does constitute a recommendation or financial advice. Do your own research. *
- Price
- 8
- Condition
- 9
- Location
- 7
- Land
- 3
- Bedrooms
- 1
- Bathrooms
- 0
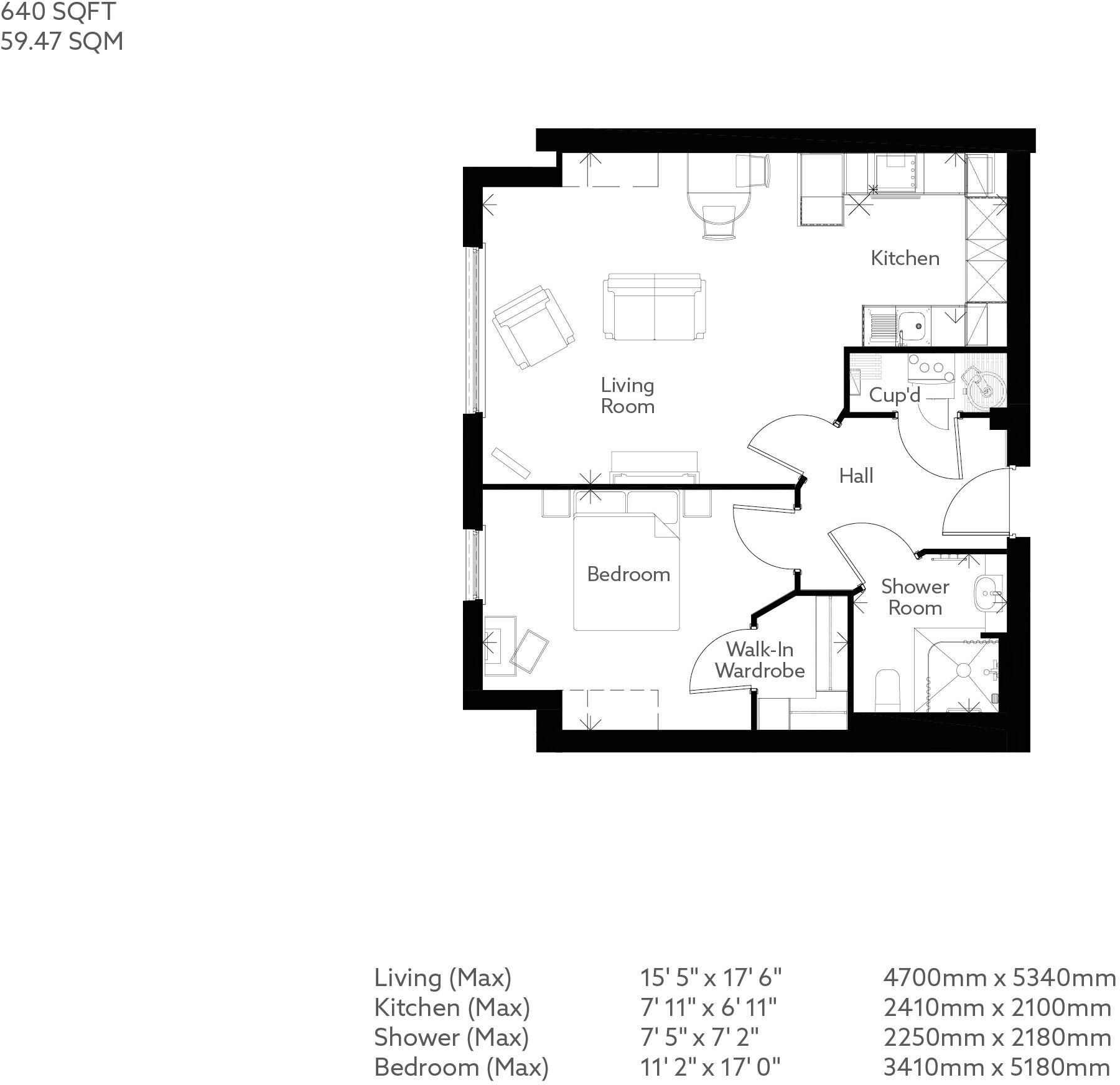
- Sqft (est)
- 567.68
The heatmap indicates the level of crime in the area. The color of the heatmap indicates the crime severity and recency.
Metrics Year-on-Year
- Average area value
- 1,043,333.00 £Increased by 83.77 %
- Est sale value
- 749,337.60 £Increased by 225.12 %
- Average area rental value
- 6,842.00 £/moIncreased by 222.89 %
- Est letting value
- 4,541.44 £/moIncreased by 700.00 %
- Est rental Yield
- 7.87 %Increased by 75.67 %
- Crime Rate
- 49.00 %Unchanged by 0.00 %
from 567,724.00 £
from 230,478.08 £
from 2,119.00 £/mo
from 567.68 £/mo
from 4.48 %
from 49.00 %
Agent Activity
McCarthy Stone created the listing.
Nearby Schools
| Name | Type | Ofsted | Distance |
|---|---|---|---|
| Bagshot Infant School & Sure Start Children'S Centre | Children's Centre | 0.53 KM | |
| Bagshot Infant School | Community School | Good | 0.53 KM |
| Connaught Junior School | Academy Converter | Good | 0.76 KM |
| Hall Grove School | Other Independent School | 1.66 KM | |
| Hammond School | Academy Converter | Good | 1.96 KM |
Images
Nearby Streets
| Name | Average Price | Average Sqft | Distance |
|---|---|---|---|
| Jacks | £ 299,000 | 0 | 0.00 KM |
| Park Street | £ 0 | 0 | 0.00 KM |
| Wardle Close | £ 463,333 | 0 | 0.00 KM |
| Station Road | £ 566,667 | 0 | 0.00 KM |
| Cedar Court | £ 350,000 | 0 | 0.00 KM |
Nearby Transport
| Name | NLC | TLC | Distance |
|---|---|---|---|
| Bagshot | 5681 | BAG | 0.46 KM |
| Ascot (Berks) | 5666 | ACT | 5.20 KM |
| Martins Heron | 5692 | MAO | 6.12 KM |
| Camberley | 5682 | CAM | 6.44 KM |
| Sunningdale | 5671 | SNG | 7.33 KM |
Nearby Listings
| Address | Price | Type | Score | Distance |
|---|---|---|---|---|
| 44 London Road, Bagshot, GU19 5HL | £ 500,000 | BUY | 7 / 10 | 0.00 KM |
| 44 London Road, Bagshot, GU19 5HL | £ 360,000 | BUY | 6 / 10 | 0.00 KM |
| 44 London Road, Bagshot, GU19 5HL | £ 530,000 | BUY | 6 / 10 | 0.00 KM |
| 44 London Road, Bagshot, GU19 5HL | £ 450,000 | BUY | 7 / 10 | 0.00 KM |
| 44 London Road, Bagshot, GU19 5HL | £ 320,000 | BUY | 7 / 10 | 0.00 KM |
Nearby Properties
| Address | Price | Distance |
|---|---|---|
| 1 Half Moon Street | £ 160,000 | 0.05 KM |
| 4a Half Moon Street | £ 127,500 | 0.06 KM |
| 4 Half Moon Street | £ 200,000 | 0.06 KM |
| 85a High Street | £ 78,100 | 0.07 KM |
| 87a High Street | £ 125,000 | 0.07 KM |