McGowan Housing says ..
Buy-to-Let Opportunity | Long Term Tenant Currently Situated | 2 Bedroom Flat | Three Piece Bathroom | Spacious Rooms | Prime Rental Location Within Dalston
Property Oracle says ..
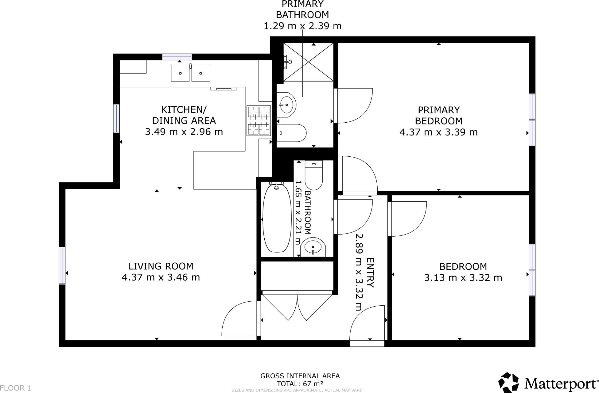
This is a 2-bedroom flat in Dalston, Cumbria. The property is in good condition and has a modern interior. It is located close to local amenities and transportation links. The asking price of £149,000 appears to be reasonable for the area and the condition of the property.
Therefore, we give this property 6 / 10. *Disclaimer: This is our option and does constitute a recommendation or financial advice. Do your own research. *
- Price
- 8
- Condition
- 8
- Location
- 6
- Land
- 3
- Bedrooms
- 2
- Bathrooms
- 2
- Sqft (est)
- 721.18
The heatmap indicates the level of crime in the area. The color of the heatmap indicates the crime severity and recency.
Metrics Year-on-Year
- Average area value
- 282,389.00 £Decreased by 5.89 %
- Est sale value
- 295,683.80 £Increased by 16.48 %
- Average area rental value
- 1,083.00 £/moDecreased by 11.16 %
- Est letting value
- 721.18 £/moUnchanged by 0.00 %
- Est rental Yield
- 4.60 %Decreased by 5.74 %
- Crime Rate
- 103.00 %Unchanged by 0.00 %
Agent Activity
McGowan Housing created the listing.
Nearby Schools
| Name | Type | Ofsted | Distance |
|---|---|---|---|
| St Michael'S Cofe Primary School | Voluntary Controlled School | Requires improvement | 0.51 KM |
| Caldew School | Academy Converter | Requires improvement | 0.74 KM |
| Lime House School | Other Independent School | 3.39 KM | |
| Richard Rose Morton Academy | Academy Sponsor Led | Good | 4.60 KM |
| Cummersdale School | Community School | Good | 4.89 KM |
Images
Nearby Streets
| Name | Average Price | Average Sqft | Distance |
|---|---|---|---|
| The Square | £ 0 | 0 | 0.00 KM |
| Railway Cottages | £ 0 | 0 | 0.00 KM |
| Railway Path | £ 185,000 | 0 | 0.00 KM |
| Bishop's Mill | £ 0 | 0 | 0.00 KM |
| Riverside | £ 0 | 0 | 0.00 KM |
Nearby Transport
| Name | NLC | TLC | Distance |
|---|---|---|---|
| Dalston (Cumbria) | 2077 | DLS | 0.50 KM |
| Carlisle | 2118 | CAR | 7.98 KM |
Nearby Listings
| Address | Price | Type | Score | Distance |
|---|---|---|---|---|
| Bishops Way, Dalston, CA5 | £ 149,000 | BUY | 6 / 10 | 0.00 KM |
| Bishops Way, Dalston, Carlisle, CA5 | £ 315,000 | BUY | 7 / 10 | 0.10 KM |
| Townhead Road, Dalston, Carlisle, Cumbria, CA5 | £ 310,000 | BUY | 6 / 10 | 0.12 KM |
| Townhead Road, Dalston, Carlisle, Cumbria, CA5 | £ 290,000 | BUY | 6 / 10 | 0.12 KM |
| Bishops Way, Dalston, Carlisle, Cumbria, CA5 | £ 265,000 | BUY | 7 / 10 | 0.13 KM |
Nearby Properties
| Address | Price | Distance |
|---|---|---|
| 82 Bishops Way | £ 139,950 | 0.00 KM |
| 25 Bishops Way | £ 135,000 | 0.00 KM |
| 10 Bishops Way | £ 152,950 | 0.00 KM |
| 21 Bishops Way | £ 137,000 | 0.00 KM |
| 27 Bishops Way | £ 155,000 | 0.00 KM |