Mann says ..
Stunning four bedroom house located on a tree-lined road. A few minutes walk from Crystal Palace Park and Penge East Stations. Stunning four bedroom house located on a tree-lined road. A few minutes walk from Crystal Palace Park and Penge East Stations. Beautifully pr...
Property Oracle says ..
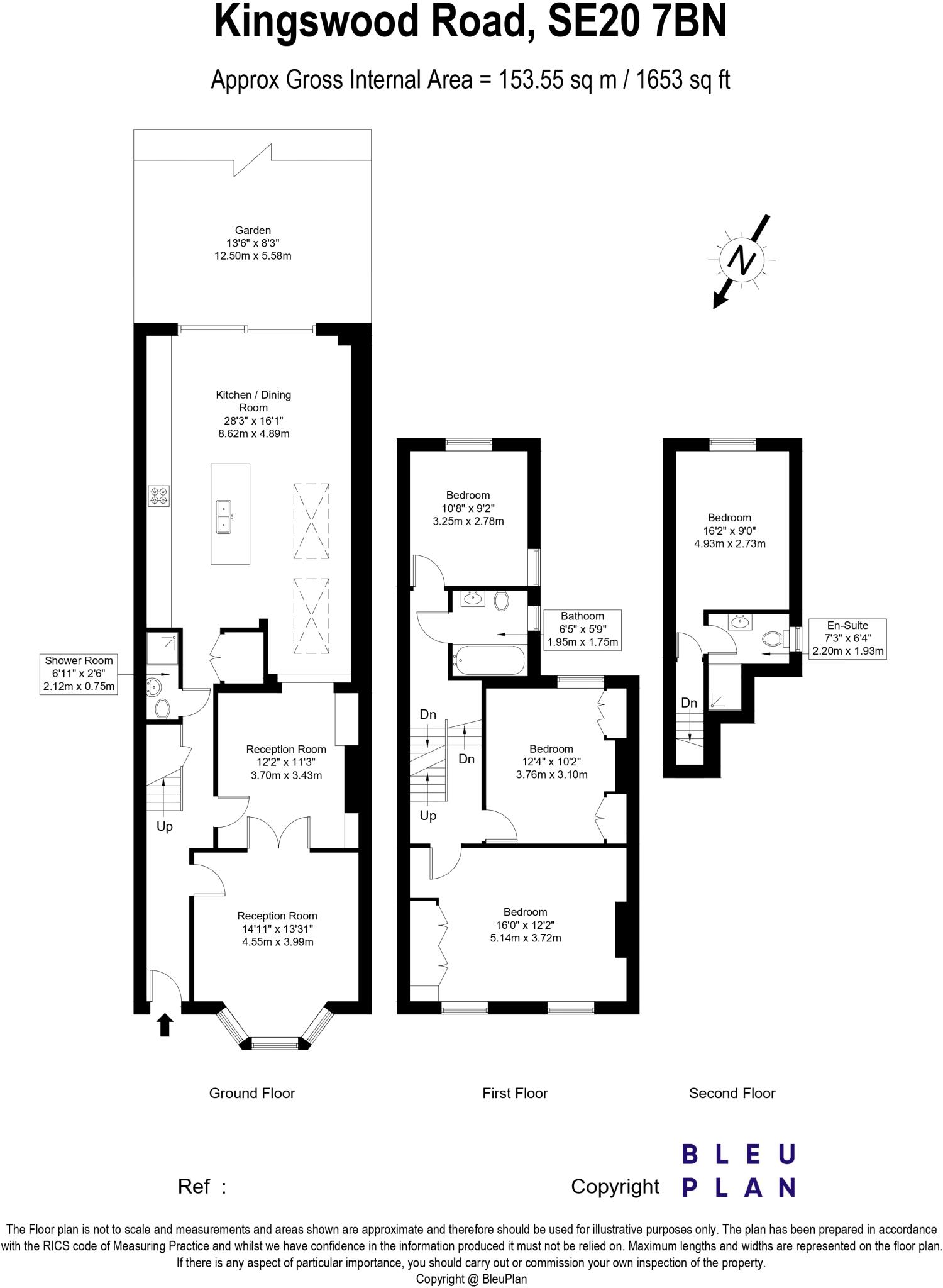
This terraced property on Kingswood Road in London offers a blend of modern living and traditional charm. The house features four bedrooms, a well-maintained garden with a patio, and a contemporary interior. Its location is convenient, with proximity to schools and transportation. While the price is above the area average, the condition and features of the property may justify the cost. Overall, it’s a desirable home for families and professionals seeking a comfortable and well-connected urban lifestyle. The property benefits from a modern kitchen and updated bathrooms. The garden provides a valuable outdoor space, and the location offers convenient access to schools and transportation. The asking price reflects the property’s condition and location, but potential buyers should consider the higher-than-average price per square foot in their decision-making process. The property is located close to Penge East and Penge West stations.
Therefore, we give this property 7 / 10. *Disclaimer: This is our option and does constitute a recommendation or financial advice. Do your own research. *
- Price
- 6
- Condition
- 8
- Location
- 7
- Land
- 7
- Bedrooms
- 4
- Bathrooms
- 0
The heatmap indicates the level of crime in the area. The color of the heatmap indicates the crime severity and recency.
Metrics Year-on-Year
- Average area value
- 470,278.00 £Decreased by 9.27 %
- Average area rental value
- 1,755.00 £/moDecreased by 20.59 %
- Est rental Yield
- 4.48 %Decreased by 12.50 %
- Crime Rate
- 6.00 %Unchanged by 0.00 %
Agent Activity
Mann created the listing.
Nearby Schools
| Name | Type | Ofsted | Distance |
|---|---|---|---|
| Harris Primary Academy Crystal Palace | Academy Sponsor Led | Good | 0.30 KM |
| St John'S Church Of England Primary School | Academy Sponsor Led | Good | 0.42 KM |
| Community Vision Children And Family Centre | Children's Centre | 0.66 KM | |
| St Anthony'S Roman Catholic Primary School | Academy Converter | Good | 0.99 KM |
| Harris Primary Academy Kent House | Academy Sponsor Led | Outstanding | 1.17 KM |
Images
Nearby Streets
| Name | Average Price | Average Sqft | Distance |
|---|---|---|---|
| London Bridge to Windmill Bridge Junction | £ 0 | 0 | 0.00 KM |
| High Street | £ 0 | 0 | 0.00 KM |
| Meaford Way | £ 285,000 | 0 | 0.00 KM |
| Evergreen Close | £ 0 | 0 | 0.00 KM |
| Hawthorn Grove | £ 0 | 0 | 0.00 KM |
Nearby Transport
| Name | NLC | TLC | Distance |
|---|---|---|---|
| Penge East | 5072 | PNE | 0.35 KM |
| Penge West | 5378 | PNW | 0.41 KM |
| Sydenham | 5437 | SYD | 1.04 KM |
| Anerley | 5397 | ANZ | 1.18 KM |
| Kent House | 5080 | KTH | 1.49 KM |
Nearby Listings
| Address | Price | Type | Score | Distance |
|---|---|---|---|---|
| Kingswood Road, London, SE20 | £ 1,050,000 | BUY | 7 / 10 | 0.00 KM |
| Kingswood Road, London, SE20 | £ 1,050,000 | BUY | 6 / 10 | 0.01 KM |
| Kingswood Road, Penge, London, SE20 | £ 625,000 | BUY | 7 / 10 | 0.04 KM |
| Kingswood Road, Penge, London, SE20 | £ 1,100,000 | BUY | 7 / 10 | 0.04 KM |
| Kingswood Road, London, SE20 | £ 1,100,000 | BUY | 7 / 10 | 0.04 KM |
Nearby Properties
| Address | Price | Distance |
|---|---|---|
| 12a Kingswood Road | £ 124,500 | 0.00 KM |
| 14a Kingswood Road | £ 350,000 | 0.00 KM |
| 46 Kingswood Road | £ 285,000 | 0.00 KM |
| 70 Kingswood Road | £ 277,000 | 0.00 KM |
| 12c Kingswood Road | £ 126,000 | 0.00 KM |