Withinlee Road, Mottram St. Andrew, Macclesfield, Cheshire, SK10
By Savills
£ 2,750,000
Reviews
4 out of 5 stars
Savills says ..
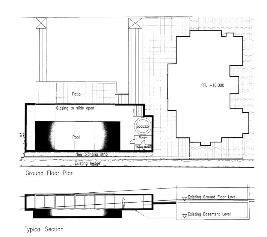
*WATCH OUR AGENT VIDEO TOUR* Bespoke built 5 bedroom 6,446 Sq Ft residence in grounds of over an acre on the fringe of the village and countryside. Plans for leisure and pool. NO CHAIN
Property Oracle says ..
This property is a detached house located in Mottram St Andrew, Cheshire. The location benefits from being close to several highly-rated schools such as Prestbury CofE Primary School and The Fallibroome Academy, and is also within reasonable distance of several train stations including Prestbury and Macclesfield, providing convenient access to commuting routes. The property itself is modern, spacious, and well-maintained, boasting a large plot size and a range of high-quality features. The images showcase a luxurious interior with multiple reception rooms, a modern kitchen, and a home cinema. The inclusion of a swimming pool, gym, and substantial garden adds significantly to the overall appeal and value. Given the size, condition, and features, the list price is in line with comparable properties in the area, and potentially represents good value considering the high-end specifications and amenities.
Therefore, we give this property 8 / 10. *Disclaimer: This is our option and does constitute a recommendation or financial advice. Do your own research. *
- Price
- 8
- Condition
- 9
- Location
- 9
- Land
- 9
- Bedrooms
- 5
- Bathrooms
- 4
- Sqft (est)
- 5,521.35
- Lot (est)
- 6,446.72
The heatmap indicates the level of crime in the area. The color of the heatmap indicates the crime severity and recency.
Metrics Year-on-Year
- Average area value
- 1,007,500.00 £Decreased by 19.91 %
- Est sale value
- 3,881,509.05 £Increased by 15.82 %
- Average area rental value
- 2,733.00 £/moDecreased by 61.29 %
- Est letting value
- 5,521.35 £/moDecreased by 66.67 %
- Est rental Yield
- 3.26 %Decreased by 51.63 %
- Crime Rate
- 19.00 %Unchanged by 0.00 %
Agent Activity
Savills created the listing.
Nearby Schools
| Name | Type | Ofsted | Distance |
|---|---|---|---|
| The King'S School In Macclesfield | Other Independent School | 1.52 KM | |
| Prestbury Cofe Primary School | Voluntary Aided School | Good | 2.25 KM |
| Mottram St Andrew Primary Academy | Academy Converter | Good | 2.33 KM |
| The Fallibroome Academy | Academy Converter | Outstanding | 2.46 KM |
| Upton Priory School | Academy Converter | Good | 2.73 KM |
Images
Nearby Streets
| Name | Average Price | Average Sqft | Distance |
|---|---|---|---|
| St James's Hill | £ 1,800,000 | 0 | 0.00 KM |
| Hawthorn Rise | £ 0 | 0 | 0.00 KM |
| Shaws Lane | £ 1,500,000 | 0 | 0.00 KM |
| Hunters Pool Lane | £ 0 | 0 | 0.00 KM |
| Pinehurst | £ 695,000 | 0 | 0.00 KM |
Nearby Transport
| Name | NLC | TLC | Distance |
|---|---|---|---|
| Prestbury | 2875 | PRB | 3.02 KM |
| Adlington (Cheshire) | 2939 | ADC | 5.46 KM |
| Macclesfield | 2871 | MAC | 6.50 KM |
| Wilmslow | 2774 | WML | 7.27 KM |
| Alderley Edge | 2760 | ALD | 7.29 KM |
Nearby Listings
| Address | Price | Type | Score | Distance |
|---|---|---|---|---|
| Withinlee Road, Mottram St. Andrew, Macclesfield, Cheshire, SK10 | £ 2,750,000 | BUY | 8 / 10 | 0.00 KM |
| Withinlee Road, Mottram St Andrew, Macclesfield, Cheshire, SK10 | £ 2,950,000 | BUY | Unknown | 0.05 KM |
| Holmlee Way, Prestbury, Macclesfield | £ 1,150,000 | BUY | 7 / 10 | 0.06 KM |
| Withinlee Road, Prestbury, Macclesfield | £ 3,185,000 | BUY | 8 / 10 | 0.12 KM |
| Withinlee Road, Mottram st Andrew, Prestbury | £ 3,250,000 | BUY | 8 / 10 | 0.12 KM |
Nearby Properties
| Address | Price | Distance |
|---|---|---|
| 8 Holmlee Way | £ 870,000 | 0.12 KM |
| 7 Holmlee Way | £ 840,000 | 0.12 KM |
| 1 Holmlee Way | £ 582,500 | 0.12 KM |
| 4 Holmlee Way | £ 635,000 | 0.12 KM |
| 3 Holmlee Way | £ 725,000 | 0.12 KM |