New Road, Rochester
By Greenleaf Property Services Ltd
£ 180,000
Reviews
2 out of 5 stars
Greenleaf Property Services Ltd says ..
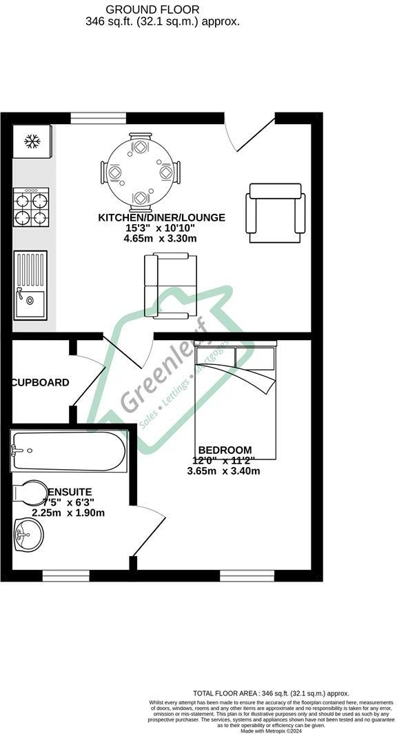
GREENLEAF PROPERTY SERVICES are delighted to introduce this impressive one bedroom ground-floor apartment with OFF ROAD PARKING and NO ONGOING CHAIN to the market, in sought-after Rochester, ME1. Situated minutes away from Rochester's historic High Street and high speed station, this spacious apa...
Property Oracle says ..
This one-bedroom apartment in Rochester, Kent, is situated in a converted building on New Road. The property boasts a modern, updated interior with a contemporary kitchen and bathroom. Photos suggest a well-maintained and clean living space, suitable for a single person or couple. The location is advantageous, being within easy reach of Rochester High Street and the high-speed train station, offering excellent transport links. The proximity to several schools, including those with good Ofsted ratings, is another positive feature for potential buyers. However, it’s important to note that the property is an apartment with no private outdoor space aside from a shared communal area. The lack of plot size is a key consideration. The absence of information regarding parking arrangements requires further investigation to fully assess this property’s value. Compared to other nearby listings, the price seems competitive, aligning relatively well with the average price per square foot, although precise figures are unavailable due to inconsistent data in nearby listings. Overall, this apartment presents a potentially attractive option for first-time buyers or investors seeking a well-maintained property in a convenient location, however, the lack of private outside space needs careful consideration.
Therefore, we give this property 5 / 10. *Disclaimer: This is our option and does constitute a recommendation or financial advice. Do your own research. *
- Price
- 7
- Condition
- 8
- Location
- 7
- Land
- 1
- Bedrooms
- 1
- Bathrooms
- 1
- Sqft (est)
- 345.52
The heatmap indicates the level of crime in the area. The color of the heatmap indicates the crime severity and recency.
Metrics Year-on-Year
- Average area value
- 348,276.00 £Increased by 7.74 %
- Est sale value
- 121,968.56 £Unchanged by 0.00 %
- Average area rental value
- 1,393.00 £/moDecreased by 3.26 %
- Est letting value
- 345.52 £/moUnchanged by 0.00 %
- Est rental Yield
- 4.80 %Decreased by 10.28 %
- Crime Rate
- 9.00 %Unchanged by 0.00 %
Agent Activity
Greenleaf Property Services Ltd created the listing.
Nearby Schools
| Name | Type | Ofsted | Distance |
|---|---|---|---|
| Fort Pitt Grammar School | Academy Converter | 0.24 KM | |
| Trinity School And College | Other Independent Special School | Good | 0.54 KM |
| St John Fisher Catholic Comprehensive School | Voluntary Aided School | Good | 0.57 KM |
| St John'S Church Of England Infant School | Academy Converter | Good | 0.67 KM |
| Rochester Independent College | Other Independent School | 0.74 KM |
Images
Nearby Streets
| Name | Average Price | Average Sqft | Distance |
|---|---|---|---|
| New Road | £ 190,000 | 0 | 0.00 KM |
| New Cut | £ 115,000 | 0 | 0.00 KM |
| A2 | £ 0 | 0 | 0.00 KM |
| St Alban's Walk | £ 0 | 0 | 0.00 KM |
| Glenway Road | £ 0 | 0 | 0.00 KM |
Nearby Transport
| Name | NLC | TLC | Distance |
|---|---|---|---|
| Rochester | 5203 | RTR | 0.64 KM |
| Chatham | 5199 | CTM | 0.71 KM |
| Strood (Kent) | 5191 | SOO | 2.28 KM |
| Gillingham (Kent) | 5169 | GLM | 3.88 KM |
| Cuxton | 5201 | CUX | 5.97 KM |
Nearby Listings
| Address | Price | Type | Score | Distance |
|---|---|---|---|---|
| New Road, Rochester | £ 180,000 | BUY | 5 / 10 | 0.00 KM |
| New Road, Rochester | £ 190,000 | BUY | 5 / 10 | 0.03 KM |
| St.Bartholomews Place, ROCHESTER, Kent, ME1 | £ 270,000 | BUY | 6 / 10 | 0.03 KM |
| St Bartholomews place, Rochester ME1 1TW | £ 190,000 | BUY | 6 / 10 | 0.03 KM |
| St Bartholomews Place, Rochester, Kent. ME1 | £ 285,000 | BUY | 7 / 10 | 0.04 KM |
Nearby Properties
| Address | Price | Distance |
|---|---|---|
| 12 St Bartholomews Terrace | £ 190,000 | 0.10 KM |
| 7 St Bartholomews Terrace | £ 116,000 | 0.10 KM |
| 10 St Bartholomews Terrace | £ 142,500 | 0.10 KM |
| 11 St Bartholomews Terrace | £ 240,000 | 0.10 KM |
| 6 St Bartholomews Terrace | £ 225,000 | 0.10 KM |