Glassel Park Road, Longniddry, East Lothian
RE

Glassel Park Road, Longniddry, East Lothian

By Rettie & Co

£ 395,000

Reviews

3 out of 5 stars

Rettie & Co says ..

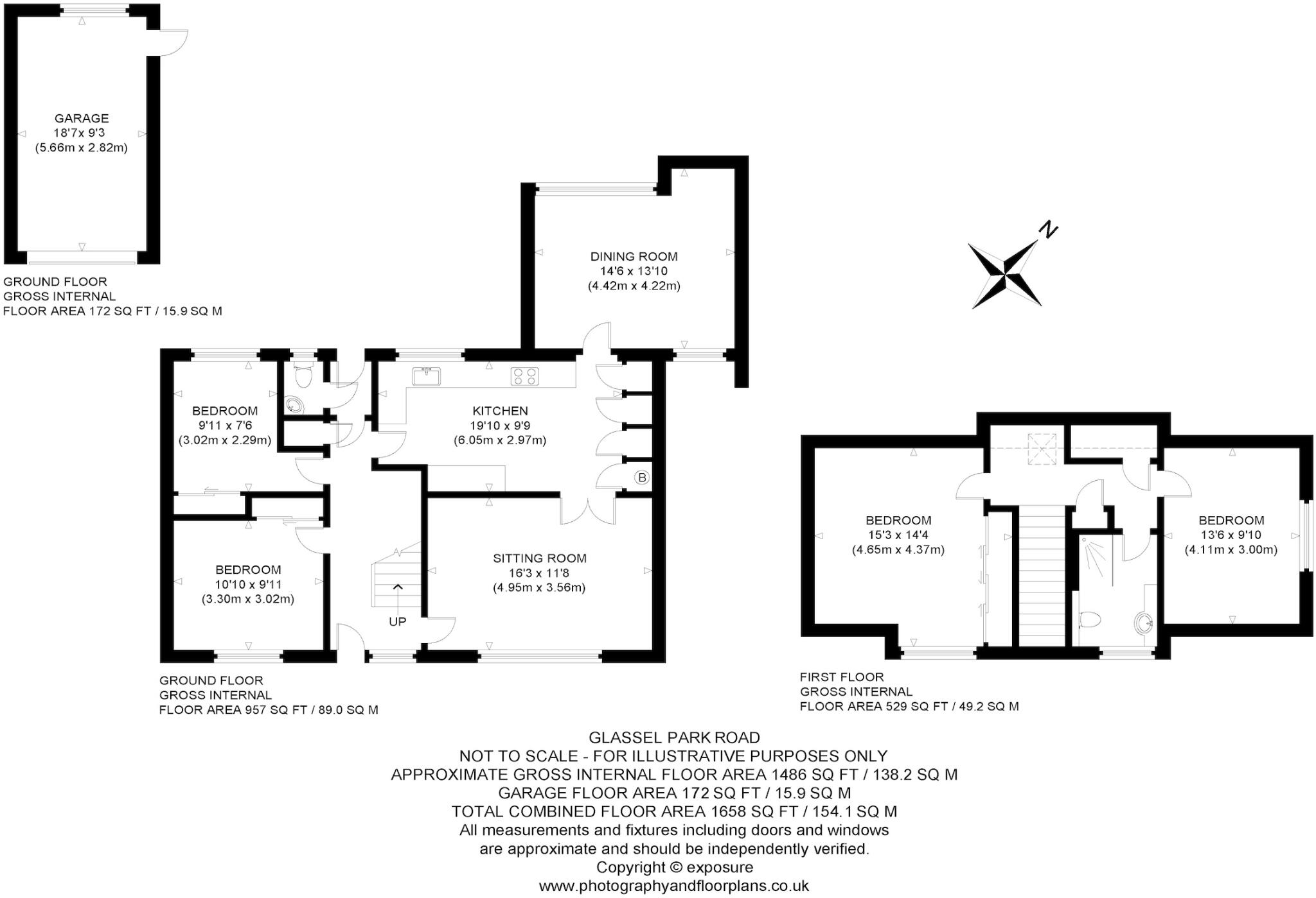
CLOSING DATE SET TUESDAY 29TH APRIL AT 12 NOON A charming 4-bedroom property, with private front and rear gardens, off street parking and a single garage, within close proximity of Longniddry’s train station and amenities and within commuting distance of Edinburgh. Sum...

Property Oracle says ..

This property is a 4 bedroom detached house located in Longniddry, East Lothian. The location is reasonably convenient with a train station a short distance away. However, information on nearby schools is not provided. The property itself appears to be in good condition, well maintained, and benefits from a garden. The kitchen appears to have been recently updated. The property is slightly below average size for the area, but the plot size is slightly above average. Given the average price per square foot in the area, the list price of £395,000 seems reasonable, particularly given the condition and the presence of a garden.

Therefore, we give this property 7 / 10. *Disclaimer: This is our option and does constitute a recommendation or financial advice. Do your own research. *

Price
7
Condition
8
Location
7
Land
7
Bedrooms
4
Bathrooms
1
Sqft (est)
1,634.00
Lot (est)
1,486.00

The heatmap indicates the level of crime in the area. The color of the heatmap indicates the crime severity and recency.

Metrics Year-on-Year

Average area value
776,250.00 £
Increased by 102.63 %
from 383,083.00 £
Est sale value
1,168,310.00 £
Increased by 78.75 %
from 653,600.00 £
Average area rental value
1,000.00 £/mo
Decreased by 13.04 %
from 1,150.00 £/mo
Est letting value
0.00 £/mo
Decreased by 100.00 %
from 1,634.00 £/mo
Est rental Yield
1.55 %
Decreased by 56.94 %
from 3.60 %
Crime Rate
0.00 %
from 0.00 %

Agent Activity

  • Rettie & Co created the listing.

Images

Front Exterior Front Garden Dining Room Shower Room Double Bedroom Rear Garden Local Park Garage Sitting Room Study/Bedroom Double Bedroom Stairs Landing Principal Bedroom Kitchen-Breakfast Kitchen Front Garden Rear Garden Rear Garden Local Park Sale Plan

Nearby Streets

NameAverage PriceAverage SqftDistance
Stevenson Court £ 000.00 KM
Stevenson Park £ 370,00000.00 KM
Campbell Court £ 530,00000.00 KM
Charteris Park £ 000.00 KM
Cotlands Park £ 000.00 KM

Nearby Transport

NameNLCTLCDistance
Longniddry9354LND1.52 KM
Prestonpans9366PST8.39 KM

Nearby Listings

AddressPriceTypeScoreDistance
Glassel Park Road, Longniddry, East Lothian £ 395,000BUY7 / 100.00 KM
Glassel Park Road, Longniddry, EH32 £ 410,000BUY7 / 100.08 KM
Redwood, 47 Charteris Road, Longniddry £ 550,000BUYUnknown0.26 KM
Three Peaks, Old Dean Road, Longniddry, East Lothian, EH32 0QY £ 900,000BUYUnknown0.33 KM
15 Charteris Park, Longniddry, East Lothian, EH32 0NX £ 415,000BUY7 / 100.34 KM