JO
Boon Street, Eckington, WR10
By Jones & Associates
£ 650,000
Reviews
3 out of 5 stars
Jones & Associates says ..
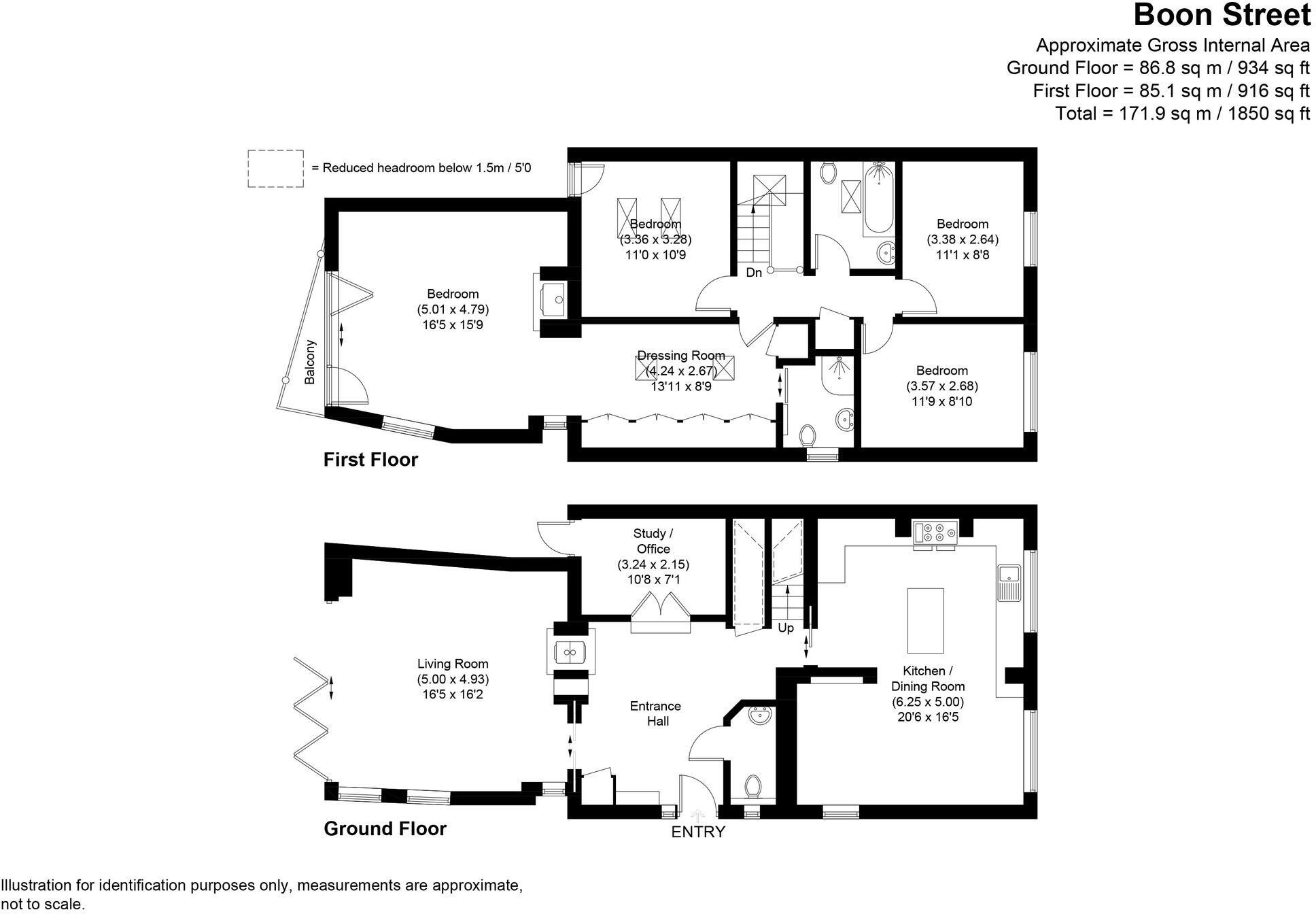
This exceptional four double bedroom detached home combines architectural flair with bespoke interior design, offering a rare opportunity to acquire a residence of both style and substance in the desirable village of Eckington.Upon arrival, a welcoming characterful entrance hall sets the tone, en...
Property Oracle says ..
Therefore, we give this property 6 / 10. *Disclaimer: This is our option and does constitute a recommendation or financial advice. Do your own research. *
- Price
- 5
- Condition
- 8
- Location
- 7
- Land
- 7
- Bedrooms
- 4
- Bathrooms
- 2
- Sqft (est)
- 1,850.32
The heatmap indicates the level of crime in the area. The color of the heatmap indicates the crime severity and recency.
Metrics Year-on-Year
- Average area value
- 228,000.00 £Increased by 7.96 %
- Est sale value
- 410,771.04 £Increased by 48.00 %
- Average area rental value
- 776.00 £/moDecreased by 23.55 %
- Est letting value
- 0.00 £/mo
- Est rental Yield
- 4.08 %Decreased by 29.29 %
- Crime Rate
- 23.00 %Unchanged by 0.00 %
from 211,190.00 £
from 277,548.00 £
from 1,015.00 £/mo
from 0.00 £/mo
from 5.77 %
from 23.00 %
Agent Activity
Jones & Associates created the listing.
Nearby Schools
| Name | Type | Ofsted | Distance |
|---|---|---|---|
| Eckington Cofe First School | Voluntary Controlled School | Good | 0.76 KM |
| Defford-Cum-Besford Cofe School | Voluntary Controlled School | Good | 2.01 KM |
| Bredon Hancock'S Endowed Cofe First School | Voluntary Aided School | Outstanding | 4.37 KM |
| Twyning School | Community School | Good | 5.59 KM |
| Abbey Park First And Nursery School | Community School | Good | 6.03 KM |
Images
Nearby Streets
| Name | Average Price | Average Sqft | Distance |
|---|---|---|---|
| Pudding Alley | £ 0 | 0 | 0.00 KM |
| Drakesbridge Road | £ 0 | 0 | 0.00 KM |
| Damson View | £ 655,000 | 0 | 0.00 KM |
| Spring Bank | £ 0 | 0 | 0.00 KM |
Nearby Transport
| Name | NLC | TLC | Distance |
|---|---|---|---|
| Ashchurch For Tewkesbury | 4700 | ASC | 8.06 KM |
| Pershore | 4887 | PSH | 8.44 KM |
Nearby Listings
| Address | Price | Type | Score | Distance |
|---|---|---|---|---|
| Boon Street, Eckington, WR10 | £ 650,000 | BUY | 6 / 10 | 0.00 KM |
| Boon Street, Eckington, WR10 | £ 750,000 | BUY | 7 / 10 | 0.04 KM |
| Manor Road, Eckington | £ 625,000 | BUY | 6 / 10 | 0.11 KM |
| Drakes Bridge Road, Eckington | £ 400,000 | BUY | 6 / 10 | 0.15 KM |
| Manor Road, Eckington, Pershore, WR10 | £ 450,000 | BUY | 7 / 10 | 0.19 KM |
Nearby Properties
| Address | Price | Distance |
|---|---|---|
| Sherwood | £ 328,000 | 0.09 KM |
| Corner House | £ 565,000 | 0.09 KM |
| Anchor Cottage | £ 172,000 | 0.09 KM |
| Furwell | £ 477,500 | 0.09 KM |
| Belmont | £ 250,000 | 0.09 KM |