Byron Close, Wheathill Road, Anerley, London, SE20
By Galloways
£ 325,000
Reviews
3 out of 5 stars
Galloways says ..
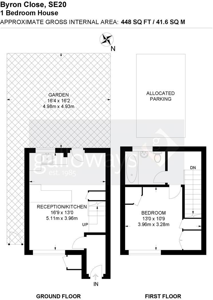
Nestled in the charming Byron Close on Wheathill Road, this delightful end-terrace house offers a perfect blend of comfort and convenience. Built in 1956, this property has been thoughtfully designed to cater to modern living while retaining its classic appeal. Spanning an area of 448 square feet...
Property Oracle says ..
This is a one-bedroom end-of-terrace property located in Anerley, London. The property is in reasonable condition, with a modern kitchen and bathroom, although some updating may be desired. It benefits from a small paved garden area and is located within easy reach of local amenities and transport links. Several schools are nearby, including one with an ‘Outstanding’ Ofsted rating. The asking price of £325,000 is slightly above the average price per square foot for the area, but still represents reasonable value considering the location and condition of the property. The property would be ideally suited to a first-time buyer or investor looking for a well-located and easily manageable property in London.
Therefore, we give this property 7 / 10. *Disclaimer: This is our option and does constitute a recommendation or financial advice. Do your own research. *
- Price
- 8
- Condition
- 7
- Location
- 7
- Land
- 6
- Bedrooms
- 1
- Bathrooms
- 1
- Sqft (est)
- 447.78
The heatmap indicates the level of crime in the area. The color of the heatmap indicates the crime severity and recency.
Metrics Year-on-Year
- Average area value
- 666,950.00 £Increased by 20.68 %
- Est sale value
- 317,476.02 £Increased by 27.98 %
- Average area rental value
- 1,565.00 £/moDecreased by 5.89 %
- Est letting value
- 447.78 £/moUnchanged by 0.00 %
- Est rental Yield
- 2.82 %Decreased by 21.88 %
- Crime Rate
- 7.00 %Unchanged by 0.00 %
Agent Activity
Galloways created the listing.
Nearby Schools
| Name | Type | Ofsted | Distance |
|---|---|---|---|
| St Mark'S Church Of England Primary Academy | Academy Sponsor Led | Good | 0.77 KM |
| James Dixon Primary School | Academy Converter | Good | 0.78 KM |
| Stewart Fleming Primary School | Academy Converter | Outstanding | 0.94 KM |
| Harris Academy South Norwood | Academy Sponsor Led | Outstanding | 0.96 KM |
| St Anthony'S Roman Catholic Primary School | Academy Converter | Good | 1.07 KM |
Images
Nearby Streets
| Name | Average Price | Average Sqft | Distance |
|---|---|---|---|
| Wheathill House | £ 0 | 0 | 0.00 KM |
| Goat House Bridge | £ 0 | 0 | 0.00 KM |
| St Mark's Road | £ 220,000 | 0 | 0.00 KM |
| Pottery Close | £ 475,000 | 0 | 0.00 KM |
| Foot Path 723 | £ 500,000 | 0 | 0.00 KM |
Nearby Transport
| Name | NLC | TLC | Distance |
|---|---|---|---|
| Anerley | 5397 | ANZ | 0.89 KM |
| Norwood Junction | 5376 | NWD | 1.19 KM |
| Birkbeck | 5401 | BIK | 1.28 KM |
| Penge West | 5378 | PNW | 1.64 KM |
| Crystal Palace | 5356 | CYP | 1.65 KM |
Nearby Listings
| Address | Price | Type | Score | Distance |
|---|---|---|---|---|
| Byron Close, Wheathill Road, Anerley, London, SE20 | £ 325,000 | BUY | 7 / 10 | 0.00 KM |
| Wheathill Road, London, SE20 | £ 300,000 | BUY | 6 / 10 | 0.01 KM |
| Wheathill House, Croydon Road, Anerley, London, SE20 | £ 325,000 | BUY | 6 / 10 | 0.05 KM |
| Penge Road, London, SE20 | £ 425,000 | BUY | 6 / 10 | 0.10 KM |
| Penge Road, London | £ 300,000 | BUY | 5 / 10 | 0.10 KM |
Nearby Properties
| Address | Price | Distance |
|---|---|---|
| 222a Croydon Road | £ 434,000 | 0.09 KM |
| 222b Croydon Road | £ 375,000 | 0.09 KM |
| 88a Penge Road | £ 18,000 | 0.11 KM |
| 92c Penge Road | £ 38,000 | 0.11 KM |
| 92a Penge Road | £ 290,000 | 0.11 KM |