Homewise says ..
Guide price for a Home for Life Lifetime Lease for OVER 60s tailored to your personal circumstances and requirements. Your price may vary. OVER 60S could benefit from SAVINGS of up to 59% from the market value with a one-off payment for a Lifetime Lease on this property. £30...
Property Oracle says ..
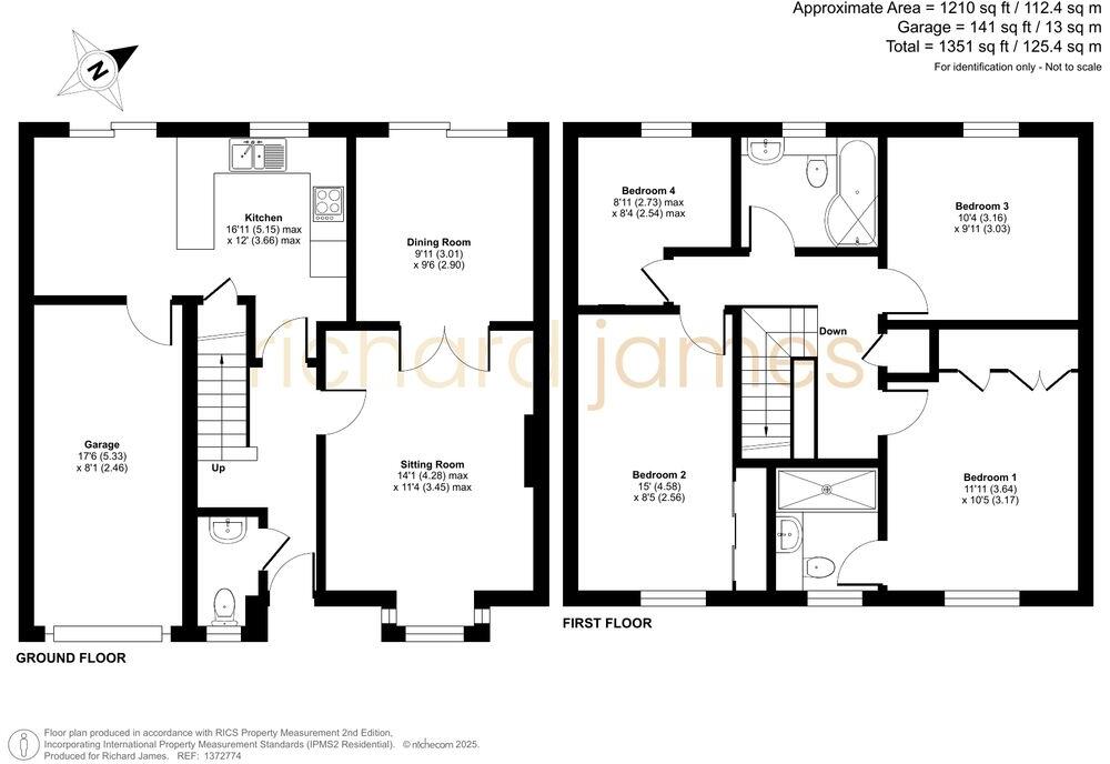
This detached property on Furze Close in Swindon presents a well-maintained family home in a desirable residential area. The house features four bedrooms and two bathrooms, offering ample space for a family. The interior is generally in good condition, with a modern kitchen and bathrooms. The property benefits from a good-sized, well-maintained garden, enhancing its appeal. The location is convenient for local schools and amenities, making it a suitable choice for families. Overall, this property offers a blend of comfort, space, and convenience, making it a potentially attractive purchase.
Therefore, we give this property 7 / 10. *Disclaimer: This is our option and does constitute a recommendation or financial advice. Do your own research. *
- Price
- 8
- Condition
- 7
- Location
- 7
- Land
- 8
- Bedrooms
- 4
- Bathrooms
- 2
- Sqft (est)
- 1,351.00
The heatmap indicates the level of crime in the area. The color of the heatmap indicates the crime severity and recency.
Metrics Year-on-Year
- Average area value
- 256,741.00 £Decreased by 11.11 %
- Est sale value
- 487,711.00 £Increased by 37.79 %
- Average area rental value
- 1,045.00 £/moIncreased by 8.52 %
- Est letting value
- 1,351.00 £/mo
- Est rental Yield
- 4.88 %Increased by 22.00 %
- Crime Rate
- 5.00 %Unchanged by 0.00 %
Agent Activity
Homewise created the listing.
Nearby Schools
| Name | Type | Ofsted | Distance |
|---|---|---|---|
| Peatmoor Community Primary School | Academy Converter | Good | 0.30 KM |
| Ridgeway Farm Cofe Academy | Academy Sponsor Led | Good | 0.41 KM |
| Brook Field Primary School | Academy Converter | 0.81 KM | |
| Shaw Ridge Primary School | Academy Converter | Good | 1.71 KM |
| Tregoze Primary School | Academy Converter | Good | 1.97 KM |
Images
Nearby Streets
| Name | Average Price | Average Sqft | Distance |
|---|---|---|---|
| Midwinter Close | £ 259,950 | 0 | 0.00 KM |
| Upper Mill | £ 0 | 0 | 0.00 KM |
| South View | £ 0 | 0 | 0.00 KM |
| Common Platt | £ 0 | 0 | 0.00 KM |
| River View | £ 450,000 | 0 | 0.00 KM |
Nearby Transport
| Name | NLC | TLC | Distance |
|---|---|---|---|
| Swindon (Wilts) | 3333 | SWI | 6.00 KM |
Nearby Listings
| Address | Price | Type | Score | Distance |
|---|---|---|---|---|
| Furze Close, Swindon, SN5 | £ 301,500 | BUY | 7 / 10 | 0.00 KM |
| Furze Close, Swindon, SN5 | £ 450,000 | BUY | 7 / 10 | 0.04 KM |
| Furze Close, Peatmoor, SN5 | £ 450,000 | BUY | 8 / 10 | 0.06 KM |
| Jack Thorne Close, Peatmoor, Swindon SN5 | £ 500,000 | BUY | 7 / 10 | 0.10 KM |
| Nightwood Copse, Peatmoor, Swindon | £ 132,500 | BUY | 7 / 10 | 0.11 KM |
Nearby Properties
| Address | Price | Distance |
|---|---|---|
| 10 Furze Close | £ 375,000 | 0.00 KM |
| 20 Furze Close | £ 365,000 | 0.00 KM |
| 47 Furze Close | £ 180,000 | 0.00 KM |
| 44 Furze Close | £ 335,000 | 0.00 KM |
| 30 Furze Close | £ 375,000 | 0.00 KM |