Back York Street, Clitheroe, BB7 1LT
By Honeywell
£ 200,000
Reviews
2 out of 5 stars
Honeywell says ..
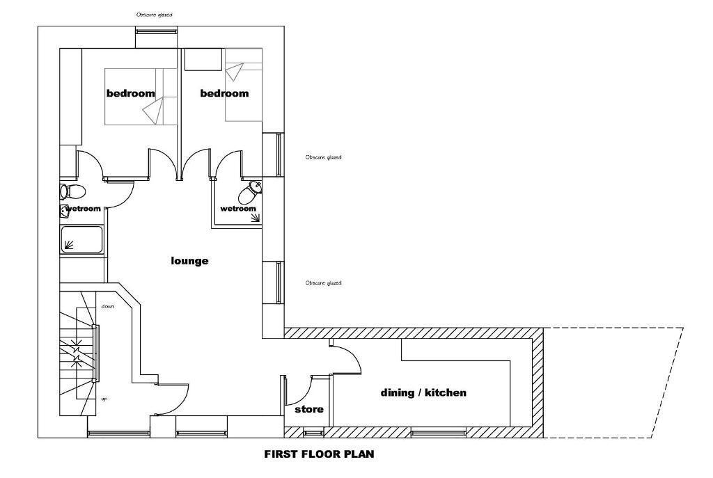
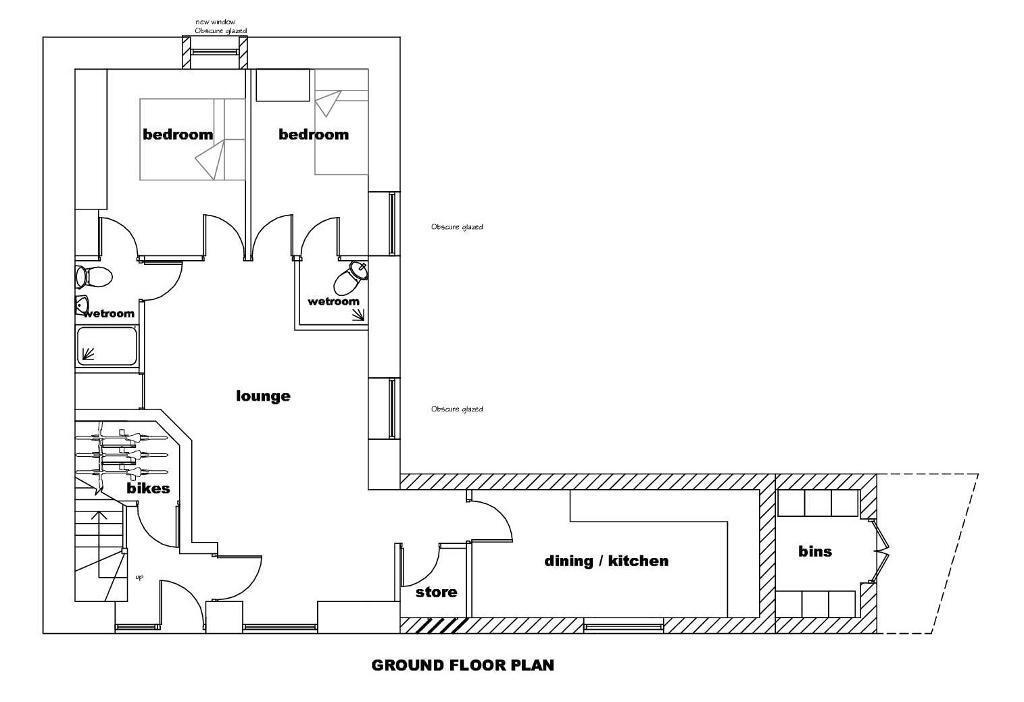
The former Printworks is a three-storey building with planning permission for three separate residential apartments. The property is situated in a fantastic location in the centre of Clitheroe. This i...
Property Oracle says ..
This property is a three-storey building situated in Clitheroe town centre, listed as land for sale with planning permission for conversion into three separate residential apartments. Its central location is a significant advantage, offering convenient access to Clitheroe’s amenities including the train station (0.54km) and several highly-rated schools such as Clitheroe Royal Grammar School (0.19km) and Clitheroe Pendle Primary School (0.47km). The provided photographs and plans indicate the property is currently in a state of disrepair, requiring extensive renovation before it can be occupied. The exterior displays significant wear and tear, including damaged or missing window panes. The absence of information regarding the total square footage of the building, garden space, or specifics of the internal layout makes it difficult to assess the overall value objectively. Therefore, prospective buyers need to carefully weigh the cost of renovation against the potential return once the conversion is completed. The planning permission for three apartments suggests a potential for rental income or sale of individual units, which could increase the overall return on investment. The £200,000 price tag seems plausible in relation to other prices in the area, but is likely to be significantly increased with the cost of renovation. A thorough professional survey would be highly recommended before committing to this purchase.
Therefore, we give this property 4 / 10. *Disclaimer: This is our option and does constitute a recommendation or financial advice. Do your own research. *
- Price
- 6
- Condition
- 3
- Location
- 7
- Land
- 1
- Bedrooms
- 0
- Bathrooms
- 0
The heatmap indicates the level of crime in the area. The color of the heatmap indicates the crime severity and recency.
Metrics Year-on-Year
- Average area value
- 265,162.00 £Increased by 23.95 %
- Average area rental value
- 906.00 £/moIncreased by 20.80 %
- Est rental Yield
- 4.10 %Decreased by 2.61 %
- Crime Rate
- 44.00 %Unchanged by 0.00 %
Agent Activity
Honeywell created the listing.
Nearby Schools
| Name | Type | Ofsted | Distance |
|---|---|---|---|
| Clitheroe Royal Grammar School | Academy Converter | 0.19 KM | |
| St Michael And St John'S Roman Catholic Primary School, Clitheroe | Voluntary Aided School | Requires improvement | 0.42 KM |
| Clitheroe Pendle Primary School | Community School | Outstanding | 0.47 KM |
| Ribblesdale Nursery School | Local Authority Nursery School | Good | 0.59 KM |
| Ribblesdale Children'S Centre | Children's Centre | 0.59 KM |
Images
Nearby Streets
| Name | Average Price | Average Sqft | Distance |
|---|---|---|---|
| Church Street | £ 219,950 | 0 | 0.00 KM |
| Church Brow | £ 0 | 0 | 0.00 KM |
| Waddington Lane | £ 0 | 0 | 0.00 KM |
| Highfield Road | £ 0 | 0 | 0.00 KM |
| Kendal Street | £ 0 | 0 | 0.00 KM |
Nearby Transport
| Name | NLC | TLC | Distance |
|---|---|---|---|
| Clitheroe | 2574 | CLH | 0.54 KM |
| Whalley (Lancashire) | 2736 | WHE | 6.03 KM |
Nearby Listings
| Address | Price | Type | Score | Distance |
|---|---|---|---|---|
| Back York Street, Clitheroe, BB7 1LT | £ 200,000 | BUY | 4 / 10 | 0.00 KM |
| Back York Street, Clitheroe, BB7 | £ 160,000 | BUY | 5 / 10 | 0.04 KM |
| Church Street, Clitheroe, Lancashire | £ 825,000 | BUY | Unknown | 0.09 KM |
| York Street, Clitheroe, Lancashire, BB7 | £ 369,950 | BUY | 6 / 10 | 0.09 KM |
| Church Street, Clitheroe | £ 499,950 | BUY | 7 / 10 | 0.10 KM |
Nearby Properties
| Address | Price | Distance |
|---|---|---|
| 21 York Street | £ 65,000 | 0.04 KM |
| 19 York Street | £ 237,000 | 0.06 KM |
| Crammond Coach House | £ 55,000 | 0.06 KM |
| 17 York Street | £ 275,000 | 0.06 KM |
| Stanworth House | £ 365,000 | 0.06 KM |