Kallars says ..
Discover modern living in this beautifully presented new build apartment, perfectly situated in Welling with open-plan design and a communal roof terrace.
Property Oracle says ..
Therefore, we give this property 6 / 10. *Disclaimer: This is our option and does constitute a recommendation or financial advice. Do your own research. *
- Price
- 6
- Condition
- 8
- Location
- 7
- Land
- 6
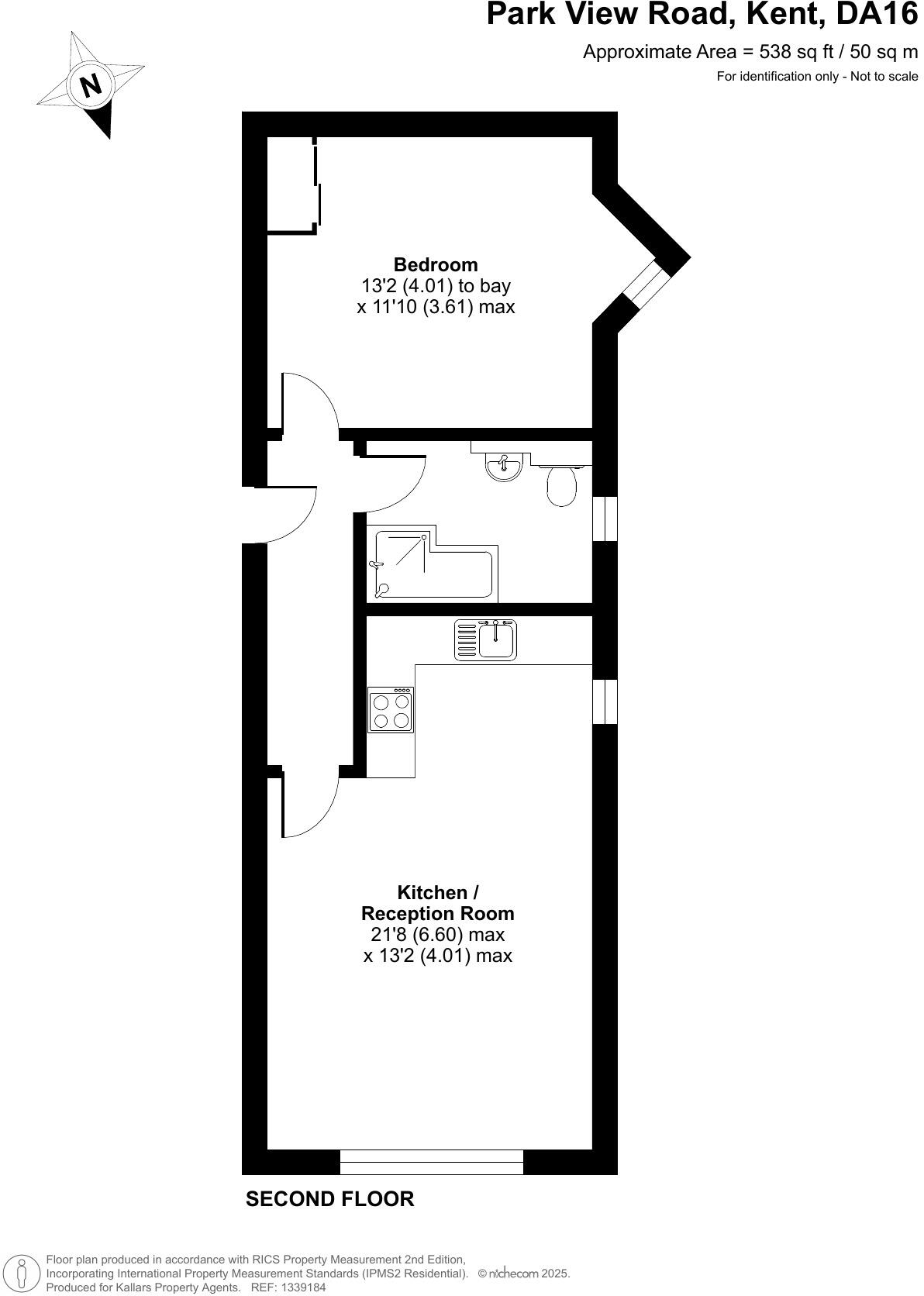
- Bedrooms
- 1
- Bathrooms
- 1
- Sqft (est)
- 538.00
The heatmap indicates the level of crime in the area. The color of the heatmap indicates the crime severity and recency.
Metrics Year-on-Year
- Average area value
- 396,111.00 £Decreased by 12.15 %
- Est sale value
- 214,124.00 £Decreased by 3.86 %
- Average area rental value
- 1,783.00 £/moDecreased by 6.60 %
- Est letting value
- 538.00 £/moUnchanged by 0.00 %
- Est rental Yield
- 5.40 %Increased by 6.30 %
- Crime Rate
- 10.00 %Unchanged by 0.00 %
from 450,895.00 £
from 222,732.00 £
from 1,909.00 £/mo
from 538.00 £/mo
from 5.08 %
from 10.00 %
Agent Activity
Kallars created the listing.
Nearby Schools
| Name | Type | Ofsted | Distance |
|---|---|---|---|
| Park View Academy | Other Independent Special School | Good | 0.13 KM |
| Welling School | Academy Converter | Requires improvement | 0.69 KM |
| Foster'S Primary School | Voluntary Controlled School | Good | 0.85 KM |
| Danson Primary School | Community School | Good | 0.98 KM |
| Bexley Grammar School | Academy Converter | 0.99 KM |
Images
Nearby Streets
| Name | Average Price | Average Sqft | Distance |
|---|---|---|---|
| New Road | £ 450,000 | 0 | 0.00 KM |
| Coton Road | £ 0 | 0 | 0.00 KM |
| Westbrooke Road | £ 250,000 | 0 | 0.00 KM |
| Lime Tree terrace | £ 0 | 0 | 0.00 KM |
| Northdown Road | £ 600,000 | 0 | 0.00 KM |
Nearby Transport
| Name | NLC | TLC | Distance |
|---|---|---|---|
| Welling | 5128 | WLI | 1.42 KM |
| Bexleyheath | 5094 | BXH | 2.17 KM |
| Albany Park | 5132 | AYP | 3.20 KM |
| Sidcup | 5125 | SID | 3.32 KM |
| Abbey Wood | 5131 | ABW | 3.35 KM |
Nearby Listings
| Address | Price | Type | Score | Distance |
|---|---|---|---|---|
| Park View Road, Welling, DA16 | £ 270,000 | BUY | 6 / 10 | 0.00 KM |
| John Newton Court, Welling | £ 325,000 | BUY | Unknown | 0.09 KM |
| McKinlay Court, Park View Road, Welling | £ 180,000 | BUY | 6 / 10 | 0.10 KM |
| Storer Drive, Welling | £ 620,000 | BUY | 6 / 10 | 0.12 KM |
| Clifton Road, Welling, Kent, DA16 | £ 500,000 | BUY | 7 / 10 | 0.12 KM |
Nearby Properties
| Address | Price | Distance |
|---|---|---|
| 52 John Newton Court | £ 258,000 | 0.12 KM |
| 57 John Newton Court | £ 245,000 | 0.12 KM |
| 65 John Newton Court | £ 124,995 | 0.12 KM |
| 13 John Newton Court | £ 134,950 | 0.12 KM |
| 30 John Newton Court | £ 108,000 | 0.12 KM |