L&Q says ..
Detached family home with large garden Shared Ownership also available at a 50% share at £225,000
Property Oracle says ..
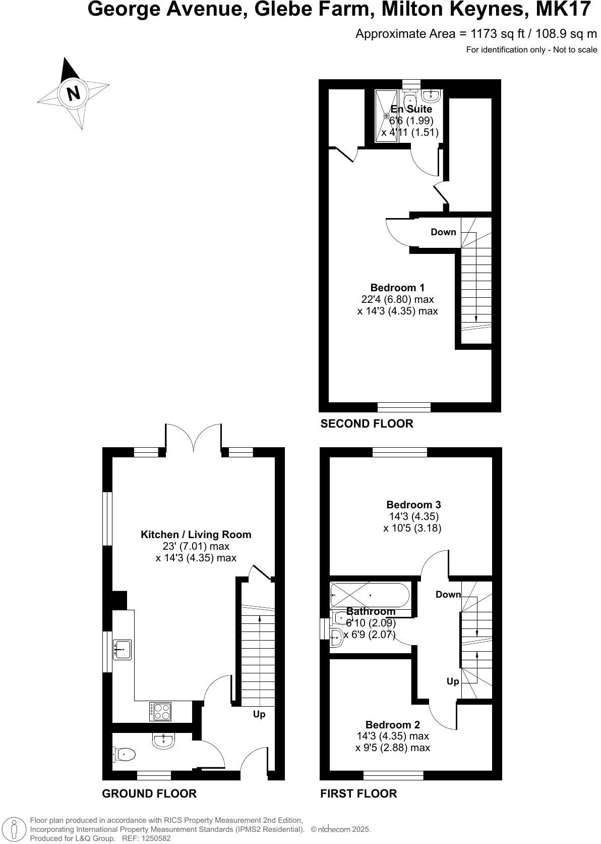
This property is a three-bedroom, two-bathroom detached house located in the Glebe Farm area of Milton Keynes. The property is modern in design and appears to be in excellent condition based on the provided images. It benefits from a good-sized rear garden, suitable for families. The list price of £450,000 is slightly below the average price for the area (£484,186), and while the square footage is smaller than the average (932.52 sqft vs 1250 sqft), the price per square foot is comparable to the area average. Nearby schools and transportation links make this a desirable location for families. The property appears to be well-maintained and modern, with a contemporary kitchen and living area. The garden offers additional space for outdoor activities.
Therefore, we give this property 8 / 10. *Disclaimer: This is our option and does constitute a recommendation or financial advice. Do your own research. *
- Price
- 8
- Condition
- 9
- Location
- 8
- Land
- 7
- Bedrooms
- 3
- Bathrooms
- 2
- Sqft (est)
- 932.52
- Lot (est)
- 1,173.00
The heatmap indicates the level of crime in the area. The color of the heatmap indicates the crime severity and recency.
Metrics Year-on-Year
- Average area value
- 749,409.00 £Increased by 52.94 %
- Est sale value
- 715,242.84 £Increased by 72.75 %
- Average area rental value
- 1,371.00 £/moDecreased by 7.80 %
- Est letting value
- 932.52 £/moUnchanged by 0.00 %
- Est rental Yield
- 2.20 %Decreased by 39.56 %
- Crime Rate
- 30.00 %Unchanged by 0.00 %
Agent Activity
L&Q created the listing.
Nearby Schools
| Name | Type | Ofsted | Distance |
|---|---|---|---|
| St Mary'S Wavendon Cofe Primary | Voluntary Controlled School | Good | 1.84 KM |
| Wavendon Gate School | Community School | Good | 2.10 KM |
| The Bridges Children'S Centre | Children's Centre | 2.45 KM | |
| Swallowfield Lower School | Community School | Good | 2.53 KM |
| Walton High | Academy Converter | Good | 2.87 KM |
Images
Nearby Streets
| Name | Average Price | Average Sqft | Distance |
|---|---|---|---|
| Warren Way | £ 0 | 0 | 0.00 KM |
| Keightley Gate | £ 0 | 0 | 0.00 KM |
| George Close | £ 0 | 0 | 0.00 KM |
| Chambers Close | £ 485,000 | 0 | 0.00 KM |
| Ravi Way | £ 0 | 0 | 0.00 KM |
Nearby Transport
| Name | NLC | TLC | Distance |
|---|---|---|---|
| Woburn Sands | 1539 | WOB | 2.17 KM |
| Aspley Guise | 1380 | APG | 3.98 KM |
| Bow Brickhill | 1381 | BWB | 4.64 KM |
| Fenny Stratford | 1377 | FEN | 6.66 KM |
| Ridgmont | 1538 | RID | 7.96 KM |
Nearby Listings
| Address | Price | Type | Score | Distance |
|---|---|---|---|---|
| George Avenue, Glebe Farm, MK17 8TY | £ 450,000 | BUY | 8 / 10 | 0.00 KM |
| George Avenue, Glebe Farm, MK17 | £ 400,000 | BUY | 7 / 10 | 0.00 KM |
| George Avenue, Glebe Farm, MK17 8TY | £ 430,000 | BUY | 8 / 10 | 0.00 KM |
| George Avenue, Glebe Farm, MK17 8TY | £ 405,000 | BUY | 7 / 10 | 0.00 KM |
| George Avenue, Glebe Farm, MILTON KEYNES | £ 415,000 | BUY | Unknown | 0.02 KM |
Nearby Properties
| Address | Price | Distance |
|---|---|---|
| 8 Cross End | £ 745,000 | 0.79 KM |
| 2a Cross End | £ 1,470,000 | 0.79 KM |
| 7 Cross End | £ 220,000 | 0.81 KM |
| 3 Cross End | £ 475,000 | 0.81 KM |
| 9 Cross End | £ 450,000 | 0.81 KM |