Linthurst Crescent, Enfield, Redditch, B97
By A P Morgan Estate Agents
£ 475,000
Reviews
3 out of 5 stars
A P Morgan Estate Agents says ..
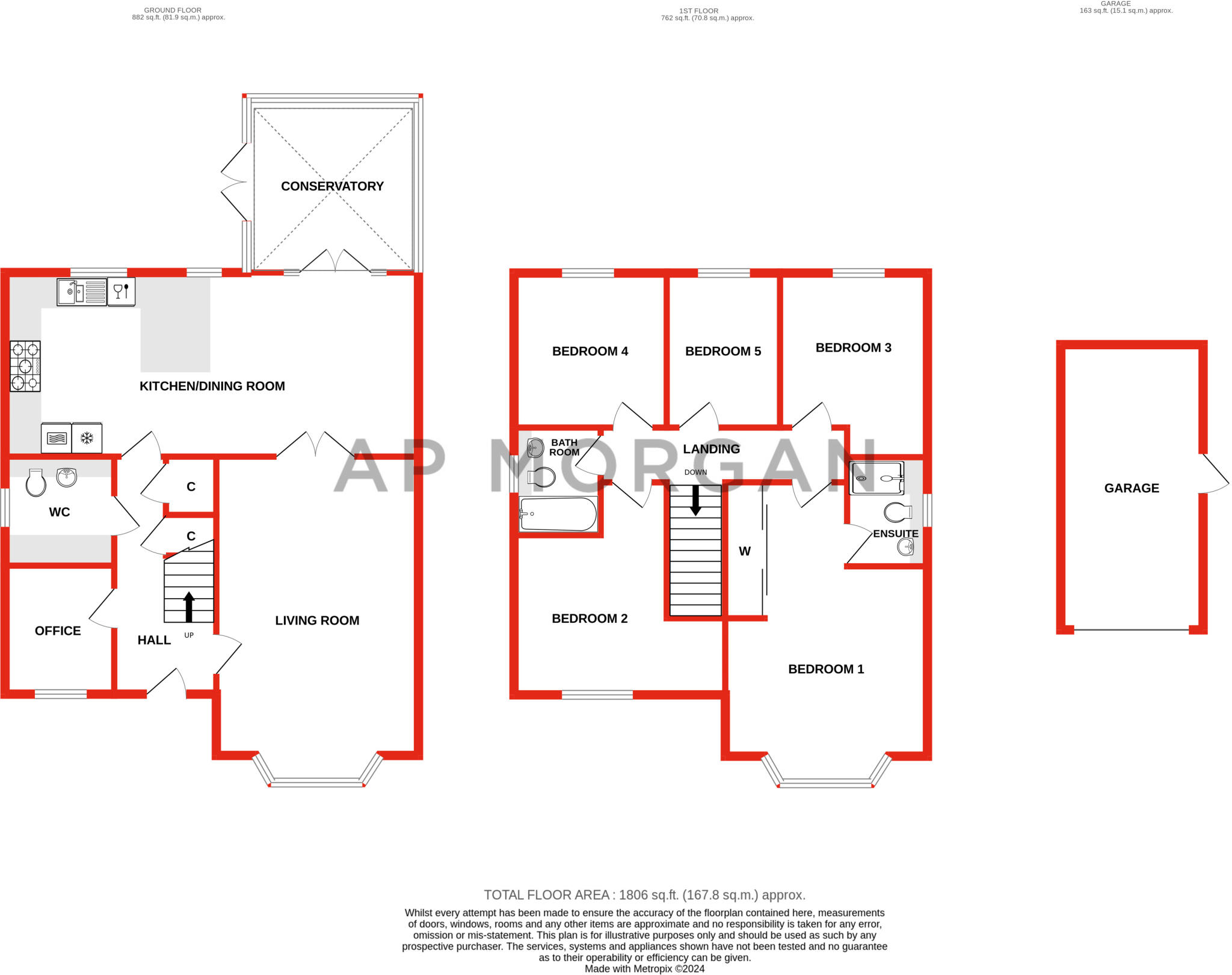
An impressive, detached family home, boasting five bedrooms, a spacious living room and off-road parking. This property is tucked away, on an exclusive road in the popular residential area of Enfield, Redditch.
Property Oracle says ..
Therefore, we give this property 7 / 10. *Disclaimer: This is our option and does constitute a recommendation or financial advice. Do your own research. *
- Price
- 9
- Condition
- 8
- Location
- 7
- Land
- 7
- Bedrooms
- 5
- Bathrooms
- 2
- Sqft (est)
- 1,806.00
The heatmap indicates the level of crime in the area. The color of the heatmap indicates the crime severity and recency.
Metrics Year-on-Year
- Average area value
- 350,323.00 £Decreased by 1.18 %
- Est sale value
- 778,386.00 £Increased by 20.73 %
- Average area rental value
- 1,334.00 £/moDecreased by 2.49 %
- Est letting value
- 1,806.00 £/moUnchanged by 0.00 %
- Est rental Yield
- 4.57 %Decreased by 1.30 %
- Crime Rate
- 10.00 %Unchanged by 0.00 %
from 354,508.00 £
from 644,742.00 £
from 1,368.00 £/mo
from 1,806.00 £/mo
from 4.63 %
from 10.00 %
Agent Activity
A P Morgan Estate Agents created the listing.
Nearby Schools
| Name | Type | Ofsted | Distance |
|---|---|---|---|
| Holyoakes Field First School | Academy Converter | 1.34 KM | |
| Heart Of Worcestershire College | Further Education | Good | 1.53 KM |
| St Stephen'S Cofe Rsa Academy | Academy Sponsor Led | 1.53 KM | |
| Trinity High School And Sixth Form Centre | Academy Converter | Good | 1.55 KM |
| Birchensale Middle School | Academy Converter | 1.58 KM |
Images
Nearby Streets
| Name | Average Price | Average Sqft | Distance |
|---|---|---|---|
| Windsor Road | £ 215,000 | 0 | 0.00 KM |
| Weights Drive | £ 0 | 0 | 0.00 KM |
| Abbey Road | £ 0 | 0 | 0.00 KM |
| Adelaide Street | £ 0 | 0 | 0.00 KM |
| Peakman Street | £ 85,000 | 0 | 0.00 KM |
Nearby Transport
| Name | NLC | TLC | Distance |
|---|---|---|---|
| Redditch | 1208 | RDC | 1.51 KM |
| Alvechurch | 1198 | ALV | 3.89 KM |
| Barnt Green | 1096 | BTG | 7.02 KM |
| Longbridge | 1110 | LOB | 9.44 KM |
Nearby Listings
| Address | Price | Type | Score | Distance |
|---|---|---|---|---|
| Linthurst Crescent, Enfield, Redditch, B97 | £ 475,000 | BUY | 7 / 10 | 0.00 KM |
| Linthurst Crescent, Redditch | £ 475,000 | BUY | 6 / 10 | 0.00 KM |
| Linthurst, Redditch, United Kingdom, B97 | £ 92,000 | BUY | 7 / 10 | 0.07 KM |
| Odell Street, Redditch, Worcestershire, B97 | £ 310,000 | BUY | 7 / 10 | 0.11 KM |
| Linthurst Crescent, Redditch | £ 290,000 | BUY | 7 / 10 | 0.11 KM |
Nearby Properties
| Address | Price | Distance |
|---|---|---|
| 227 Birmingham Road | £ 174,000 | 0.43 KM |
| 219 Birmingham Road | £ 185,000 | 0.43 KM |
| 239 Birmingham Road | £ 145,000 | 0.43 KM |
| 281 Birmingham Road | £ 210,000 | 0.43 KM |
| 233 Birmingham Road | £ 175,000 | 0.43 KM |