HO
Northload Street, Glastonbury
By holland & odam
£ 150,000
Reviews
3 out of 5 stars
holland & odam says ..
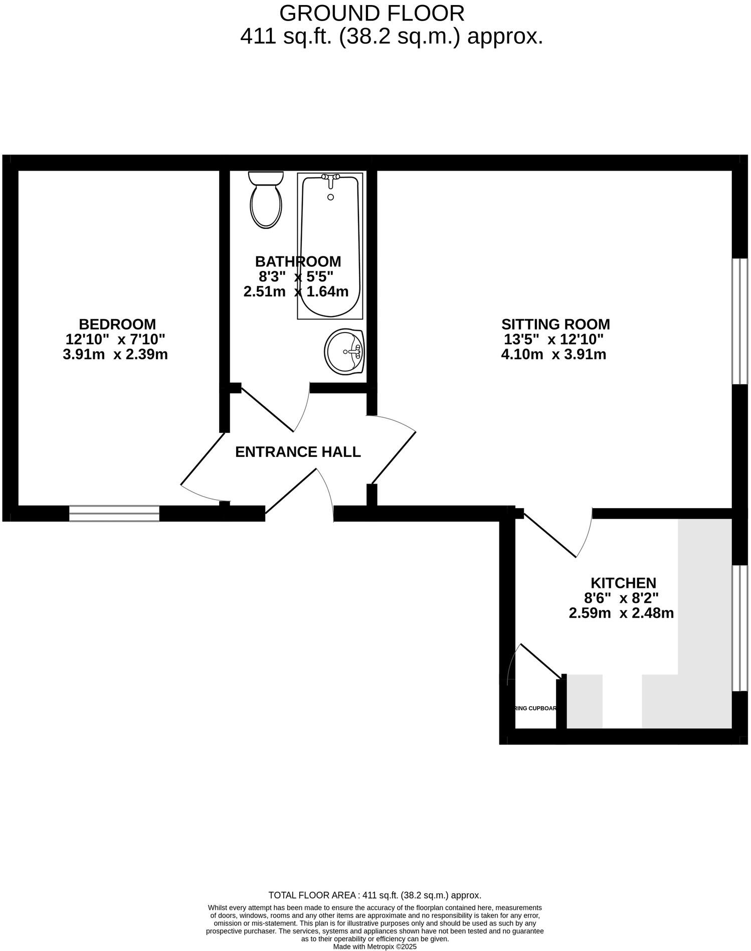
Set within a converted period former farmhouse just a short walk from Glastonbury High Street, this ground floor single storey apartment offers a rare opportunity for first-time buyers, investors, or those seeking an ideal base. This charming one bedroom property features a light-filled sitting r...
Property Oracle says ..
Therefore, we give this property 6 / 10. *Disclaimer: This is our option and does constitute a recommendation or financial advice. Do your own research. *
- Price
- 7
- Condition
- 8
- Location
- 7
- Land
- 5
- Bedrooms
- 1
- Bathrooms
- 1
- Sqft (est)
- 380.10
The heatmap indicates the level of crime in the area. The color of the heatmap indicates the crime severity and recency.
Metrics Year-on-Year
- Average area value
- 312,574.00 £Increased by 1.14 %
- Est sale value
- 127,713.60 £Decreased by 47.34 %
- Average area rental value
- 1,096.00 £/moIncreased by 18.74 %
- Est letting value
- 380.10 £/moUnchanged by 0.00 %
- Est rental Yield
- 4.21 %Increased by 17.60 %
- Crime Rate
- 35.00 %Unchanged by 0.00 %
from 309,063.00 £
from 242,503.80 £
from 923.00 £/mo
from 380.10 £/mo
from 3.58 %
from 35.00 %
Agent Activity
holland & odam marked this listing as sold.
holland & odam created the listing.
Nearby Schools
| Name | Type | Ofsted | Distance |
|---|---|---|---|
| Mendip West | Children's Centre | 0.26 KM | |
| St Benedict'S Church Of England Voluntary Aided Junior School | Voluntary Aided School | Good | 0.27 KM |
| St John'S Church Of England Voluntary Controlled Infants School | Voluntary Controlled School | Good | 0.39 KM |
| St Dunstan'S School | Academy Converter | Good | 0.49 KM |
| Tor School | Pupil Referral Unit | Good | 1.43 KM |
Images
Nearby Streets
| Name | Average Price | Average Sqft | Distance |
|---|---|---|---|
| Monmouth Close | £ 0 | 0 | 0.00 KM |
| Pound Close | £ 0 | 0 | 0.00 KM |
| Saint John's Square | £ 0 | 0 | 0.00 KM |
| Saint Edmund's Road | £ 0 | 0 | 0.00 KM |
| Buckton Close | £ 259,995 | 0 | 0.00 KM |
Nearby Listings
| Address | Price | Type | Score | Distance |
|---|---|---|---|---|
| Northload Street, Glastonbury | £ 150,000 | BUY | 6 / 10 | 0.00 KM |
| 50 Northload Street, Glastonbury, Somerset BA6 9JP | £ 240,000 | BUY | 6 / 10 | 0.04 KM |
| The Tanneries, Glastonbury | £ 175,000 | BUY | Unknown | 0.06 KM |
| Coachmans Yard, Glastonbury | £ 175,000 | BUY | 6 / 10 | 0.06 KM |
| Sedgemoor Way, Glastonbury | £ 145,000 | BUY | 6 / 10 | 0.07 KM |
Nearby Properties
| Address | Price | Distance |
|---|---|---|
| 1 Albert Buildings | £ 210,000 | 0.03 KM |
| 5 Albert Buildings | £ 125,000 | 0.03 KM |
| 1a Albert Buildings | £ 98,000 | 0.03 KM |
| 2 Albert Buildings | £ 75,000 | 0.03 KM |
| 7 Albert Buildings | £ 285,000 | 0.03 KM |