Portland Street, Coatbridge, ML5
LA

Portland Street, Coatbridge, ML5

By Lanarkshire Law Estate Agents Limited

£ 229,995

Lanarkshire Law Estate Agents Limited says ..

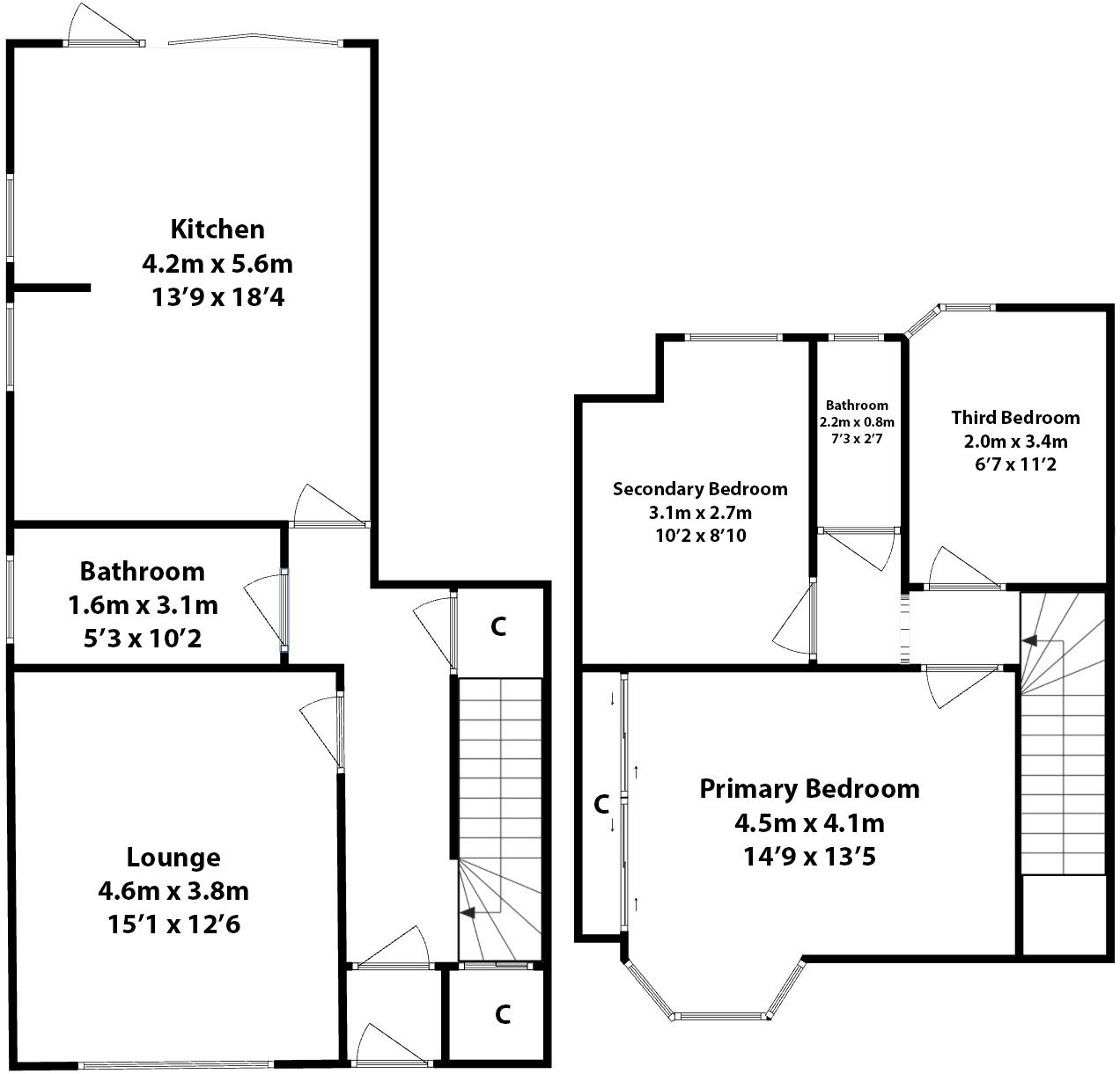
This fantastic three-bedroom end-terrace home perfectly combines traditional charm with modern living. Bursting with character, the property showcases beautiful period features throughout, including high ceilings, ornate cornicing, large rooms, and elegant window shutters.

Bedrooms
3
Bathrooms
2

The heatmap indicates the level of crime in the area. The color of the heatmap indicates the crime severity and recency.

Metrics Year-on-Year

Average area value
206,312.00 £
Increased by 25.04 %
from 164,998.00 £
Average area rental value
763.00 £/mo
Increased by 1.33 %
from 753.00 £/mo
Est rental Yield
4.44 %
Decreased by 18.98 %
from 5.48 %
Crime Rate
0.00 %
from 0.00 %

Agent Activity

  • Lanarkshire Law Estate Agents Limited created the listing.

Images

3 Bedroom End Terrace for Sale Gallery Gallery Gallery Gallery Gallery Gallery Gallery Gallery Gallery Gallery Gallery Gallery Gallery Gallery Gallery Gallery Gallery Gallery Gallery Gallery Gallery Gallery Gallery Gallery Gallery Gallery Gallery Gallery Gallery Gallery Gallery Gallery Gallery Gallery Gallery Gallery Gallery Gallery

Nearby Streets

NameAverage PriceAverage SqftDistance
Portland Street £ 100,00000.00 KM
Eglinton Street £ 93,40000.00 KM
Alexander Street £ 94,99700.00 KM
Lugar Street £ 101,87300.00 KM
Jackson Street £ 000.00 KM

Nearby Transport

NameNLCTLCDistance
Coatbridge Sunnyside9752CBS1.06 KM
Whifflet9753WFF1.26 KM
Coatbridge Central9747CBC1.47 KM
Coatdyke9762COA1.54 KM
Blairhill9760BAI2.70 KM

Nearby Listings

AddressPriceTypeScoreDistance
Portland Street, Coatbridge, ML5 £ 229,995BUYUnknown0.00 KM
Portland Street, Coatbridge £ 85,000BUY6 / 100.08 KM
Portland Street, Coatbridge £ 87,500BUY6 / 100.14 KM
Dunbeth Avenue, Coatbridge £ 235,000BUY7 / 100.15 KM
Portland Street, Coatbridge, Lanarkshire, ML5 £ 89,000BUYUnknown0.16 KM