Wadham Drive, Frenchay, Bristol
M

Wadham Drive, Frenchay, Bristol

By M Coleman Estate Agents

£ 435,000

Reviews

3 out of 5 stars

M Coleman Estate Agents says ..

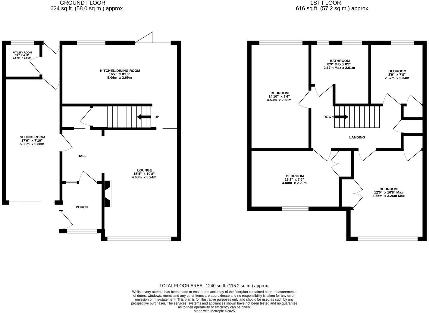
M. Coleman Estate Agents are delighted to present this well-appointed four-bedroom mid-terrace home situated on the ever-popular Wadham Drive in Frenchay. The ground floor welcomes you via a useful porch into a bright hallway, which opens through an archway into the lounge. Full-height double...

Property Oracle says ..

This is a well-maintained terraced property in Frenchay, Bristol, offering four bedrooms and a good-sized garden. The house appears to be in good condition, with a modern kitchen and bathroom. Its location provides access to reputable schools and decent transport links. The price is reasonable considering the square footage and overall condition of the property. The property benefits from off street parking and a garage.

Therefore, we give this property 7 / 10. *Disclaimer: This is our option and does constitute a recommendation or financial advice. Do your own research. *

Price
7
Condition
8
Location
7
Land
7
Bedrooms
4
Bathrooms
1
Sqft (est)
1,240.00

The heatmap indicates the level of crime in the area. The color of the heatmap indicates the crime severity and recency.

Metrics Year-on-Year

Average area value
407,556.00 £
Decreased by 13.89 %
from 473,314.00 £
Est sale value
468,720.00 £
Decreased by 13.70 %
from 543,120.00 £
Average area rental value
1,679.00 £/mo
Increased by 16.92 %
from 1,436.00 £/mo
Est letting value
1,240.00 £/mo
Unchanged by 0.00 %
from 1,240.00 £/mo
Est rental Yield
4.94 %
Increased by 35.71 %
from 3.64 %
Crime Rate
5.00 %
Unchanged by 0.00 %
from 5.00 %

Agent Activity

  • M Coleman Estate Agents created the listing.

Nearby Schools

NameTypeOfstedDistance
Frenchay Church Of England Primary SchoolVoluntary Controlled SchoolGood0.74 KM
South Gloucestershire Hospital Home Teaching ServiceMiscellaneous1.00 KM
Frome Vale AcademyAcademy Sponsor LedRequires improvement1.18 KM
Hambrook Primary SchoolCommunity SchoolGood1.65 KM
Pathways Learning CentrePupil Referral UnitGood1.81 KM

Images

WD Lounge iii.JPG WD UtilityWC.JPG WD Landing.JPG WD Bedroom 1iii.JPG W Bedroom 3.JPG W Bedroom 3ii.JPG WD Lounge iv.JPG WD Lounge vi.JPG WD Hall Lounge.JPG WD Kitchen vii.JPG WD Kitchen ii.JPG WD Kitchen vi.JPG WD Dining Area.JPG WD Sitting Room i.JPG WD Sitting Room.JPG W Bedroom 4i.JPG WD Garden ii.JPG WD Garden i.JPG WD Garden iii.JPG WD Garden.JPG W Bedroom 4e.JPG W Bedroom 4i e.JPG WD FE e.JPG WD Bedroom 1i.JPG WD Bedroom 1ii.JPG W Bedroom 4.JPG WD Shower Room i.JPG WD Shower Room.JPG

Nearby Streets

NameAverage PriceAverage SqftDistance
The Park £ 475,00000.00 KM
Wilson Road £ 000.00 KM
Chapel Lane £ 000.00 KM
Westbourne Terrace £ 365,00000.00 KM
Tanner Close £ 000.00 KM

Nearby Transport

NameNLCTLCDistance
Bristol Parkway3230BPW2.75 KM
Filton Abbey Wood3235FIT4.60 KM
Patchway3213PWY5.38 KM
Stapleton Road3250SRD6.23 KM
Lawrence Hill3225LWH6.77 KM

Nearby Listings

AddressPriceTypeScoreDistance
Wadham Drive, Frenchay, Bristol £ 435,000BUY7 / 100.00 KM
Wadham Drive, Frenchay, Bristol £ 435,000BUY7 / 100.04 KM
Malmains Drive, Frenchay, Bristol, BS16 £ 900,000BUY8 / 100.07 KM
Manor Gardens, Bristol £ 600,000BUY6 / 100.09 KM
Malmains Drive, Bristol, BS16 £ 975,000BUY6 / 100.09 KM

Nearby Properties

AddressPriceDistance
49 Malmains Drive £ 410,0000.04 KM
46 Malmains Drive £ 520,0000.04 KM
42 Malmains Drive £ 600,0000.04 KM
6 Berkeley Green £ 449,0000.04 KM
44 Malmains Drive £ 415,0000.04 KM