Twmpath Lane, Gobowen, Oswestry.
HA

Twmpath Lane, Gobowen, Oswestry.

By Halls Estate Agents

£ 125,000

Reviews

3 out of 5 stars

Halls Estate Agents says ..

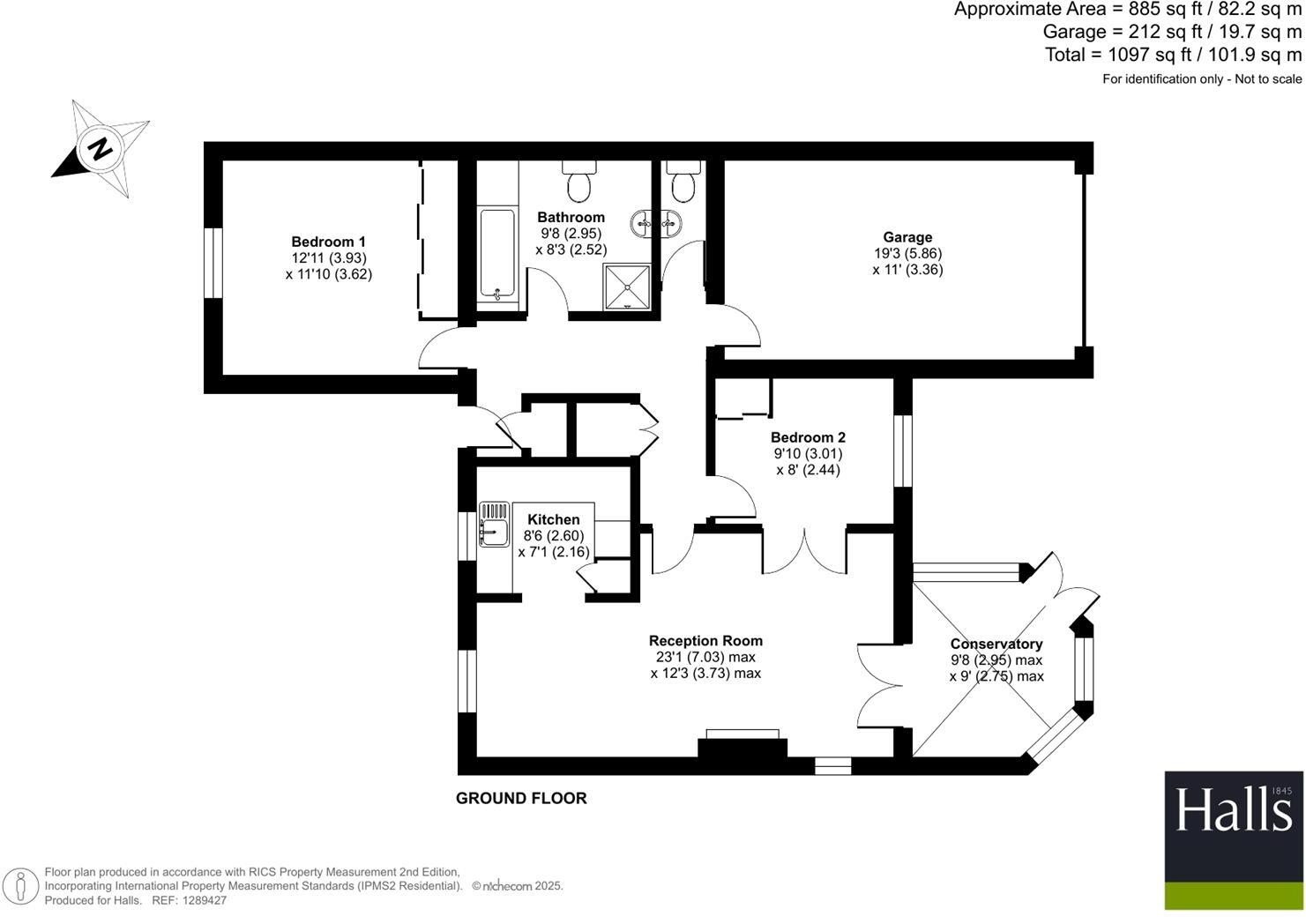
An immaculate 2 Bedroom Retirement Bungalow situated on a purpose-built development offering care facilities if required. The layout of the accommodation is deceptively spacious and offers a degree of versatility. A private garage, communal gardens, and a peaceful Gobowen location offer a relaxed...

Property Oracle says ..

This property is a 2 bedroom bungalow situated in Gobowen, Shropshire. The property benefits from a conservatory and a garage. The location is convenient with nearby access to Gobowen train station and several primary schools. The average house price in the area is significantly higher than the list price of this property, suggesting it could represent good value for money. However, the limited plot size may be a drawback for some buyers. The property appears to be well-maintained and in good condition, although the style is somewhat traditional.

Therefore, we give this property 7 / 10. *Disclaimer: This is our option and does constitute a recommendation or financial advice. Do your own research. *

Price
9
Condition
8
Location
7
Land
4
Bedrooms
2
Bathrooms
1
Sqft (est)
718.00
Lot (est)
1,097.00

The heatmap indicates the level of crime in the area. The color of the heatmap indicates the crime severity and recency.

Metrics Year-on-Year

Average area value
243,278.00 £
Decreased by 3.15 %
from 251,196.00 £
Est sale value
224,734.00 £
Increased by 28.81 %
from 174,474.00 £
Average area rental value
1,186.00 £/mo
Increased by 12.42 %
from 1,055.00 £/mo
Est letting value
718.00 £/mo
Unchanged by 0.00 %
from 718.00 £/mo
Est rental Yield
5.85 %
Increased by 16.07 %
from 5.04 %
Crime Rate
21.00 %
Unchanged by 0.00 %
from 21.00 %

Agent Activity

  • Halls Estate Agents created the listing.

Nearby Schools

NameTypeOfstedDistance
Derwen CollegeSpecial Post 16 InstitutionOutstanding0.70 KM
Gobowen Primary SchoolCommunity SchoolGood1.87 KM
The Meadows Primary SchoolCommunity SchoolGood2.22 KM
Holy Trinity Church Of England Primary Academy And NurseryAcademy ConverterRequires improvement2.89 KM
Woodside Primary SchoolAcademy ConverterGood3.02 KM

Images

1-681d12f41051a-1289427-ARW-1-1.jpg 14-681d136220a66-1289427-ARW-14-1.jpg 11-681d134a76376-1289427-ARW-11-1.jpg 8-681d133094c9a-1289427-ARW-8-1.jpg 18-681d1380609f4-1289427-ARW-18-1.jpg 17-681d13790afc3-1289427-ARW-17-1.jpg 3-681d130616fa7-1289427-ARW-3-1.jpg 4-681d130f09468-1289427-ARW-4-1.jpg 5-681d131840a66-1289427-ARW-5-1.jpg 6-681d1321e9af2-1289427-ARW-6-1.jpg 12-681d1351c6c60-1289427-ARW-12-1.jpg 22-681d139ec31e5-1289427-ARW-22-1.jpg 24-681d13add4e81-1289427-ARW-24-1.jpg 21-681d13977551c-1289427-ARW-21-1.jpg 20-681d139027264-1289427-ARW-20-1.jpg 25-681d13b539959-1289427-ARW-25-1.jpg 19-681d1387bae01-1289427-ARW-19-1.jpg 23-681d13a6569d4-1289427-ARW-23-1.jpg 7-681d13295cc84-1289427-ARW-7-1.jpg 10-681d1342b644d-1289427-ARW-10-1.jpg 9-681d13398cef0-1289427-ARW-9-1.jpg 15-681d136a3a119-1289427-ARW-15-1.jpg

Nearby Streets

NameAverage PriceAverage SqftDistance
Twmpath Lane £ 121,65800.00 KM
Southlands Avenue £ 300,00000.00 KM
Bowyer Grange £ 328,33300.00 KM
Burma Place £ 000.00 KM
Rowan Close £ 180,00000.00 KM

Nearby Transport

NameNLCTLCDistance
Gobowen4457GOB1.24 KM
Chirk4449CRK6.64 KM

Nearby Listings

AddressPriceTypeScoreDistance
Twmpath Lane, Gobowen, Oswestry. £ 125,000BUY7 / 100.00 KM
Twmpath Lane, Gobowen, Oswestry £ 115,000BUYUnknown0.03 KM
40 Meadowbrook court, Twmpath Lane, Gobowen, Oswestry £ 62,500BUY6 / 100.03 KM
Twmpath Lane, Gobowen, Oswestry. £ 125,000BUY5 / 100.03 KM
Twmpath Lane, Gobowen, Oswestry £ 115,000BUY6 / 100.04 KM

Nearby Properties

AddressPriceDistance
34 Twmpath Lane £ 168,0000.03 KM
5 Twmpath Lane £ 132,5900.38 KM
Lymehurst £ 228,0000.38 KM
Rosemount £ 142,0000.39 KM
2 North Drive £ 161,2500.52 KM