Hampden Crescent, Bracknell, Berkshire
By Romans
£ 220,000
Reviews
3 out of 5 stars
Romans says ..
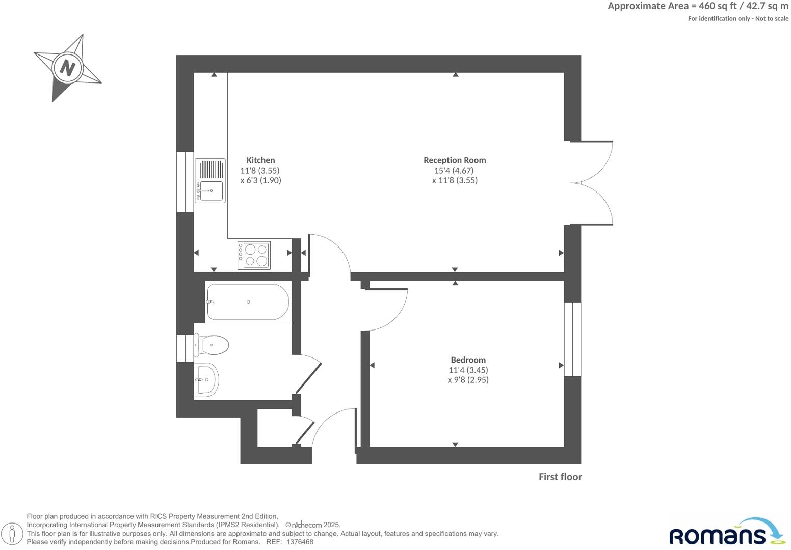
Located just moments from Bracknell town centre and the renowned Lexicon shopping centre, this spacious one-bedroom ground floor apartment is offered to the market with no onward chain. The property features a bright 15'4 reception room with French doors leading onto a private patio ar...
Property Oracle says ..
This is a one-bedroom apartment located in Bracknell, Berkshire. The property is in good condition, with a modern kitchen and bathroom. It benefits from a small garden area and is located close to local schools and transportation links. The list price appears reasonable compared to other properties in the area. The property is conveniently located near Bracknell train station and the highly-rated Ranelagh School. The apartment itself appears well-maintained and modern, making it an attractive option for potential buyers or renters. The small garden is a definite plus, offering private outdoor space.
Therefore, we give this property 7 / 10. *Disclaimer: This is our option and does constitute a recommendation or financial advice. Do your own research. *
- Price
- 8
- Condition
- 7
- Location
- 7
- Land
- 6
- Bedrooms
- 1
- Bathrooms
- 1
- Sqft (est)
- 460.00
The heatmap indicates the level of crime in the area. The color of the heatmap indicates the crime severity and recency.
Metrics Year-on-Year
- Average area value
- 456,250.00 £Increased by 6.24 %
- Est sale value
- 219,420.00 £Increased by 35.51 %
- Average area rental value
- 1,660.00 £/moDecreased by 3.60 %
- Est letting value
- 460.00 £/moUnchanged by 0.00 %
- Est rental Yield
- 4.37 %Decreased by 9.15 %
- Crime Rate
- 2.00 %Unchanged by 0.00 %
Agent Activity
Romans created the listing.
Nearby Schools
| Name | Type | Ofsted | Distance |
|---|---|---|---|
| Ranelagh School | Academy Converter | Outstanding | 0.23 KM |
| The Brakenhale School | Academy Sponsor Led | Good | 0.52 KM |
| Rowans And Sycamores Children'S Centre | Children's Centre | 0.86 KM | |
| St Joseph'S Catholic Primary School, Bracknell | Voluntary Aided School | Outstanding | 0.88 KM |
| Fox Hill Primary School | Community School | Good | 0.89 KM |
Images
Nearby Streets
| Name | Average Price | Average Sqft | Distance |
|---|---|---|---|
| Broad Lane | £ 448,333 | 0 | 0.00 KM |
| Valiant Drive | £ 0 | 0 | 0.00 KM |
| Crowthorne Road North | £ 0 | 0 | 0.00 KM |
| Bagshot Road | £ 296,000 | 0 | 0.00 KM |
| Bagshot Road | £ 0 | 0 | 0.00 KM |
Nearby Transport
| Name | NLC | TLC | Distance |
|---|---|---|---|
| Bracknell | 5693 | BCE | 0.71 KM |
| Martins Heron | 5692 | MAO | 2.46 KM |
| Ascot (Berks) | 5666 | ACT | 7.83 KM |
| Camberley | 5682 | CAM | 8.11 KM |
| Bagshot | 5681 | BAG | 8.12 KM |
Nearby Listings
| Address | Price | Type | Score | Distance |
|---|---|---|---|---|
| Hampden Crescent, Bracknell, Berkshire | £ 220,000 | BUY | 7 / 10 | 0.00 KM |
| Hampden Crescent, Bracknell | £ 190,000 | BUY | 6 / 10 | 0.01 KM |
| Hampden Crescent, Bracknell, Berkshire, RG12 | £ 265,000 | BUY | Unknown | 0.01 KM |
| Hampden Crescent, Bracknell, Berkshire | £ 260,000 | BUY | Unknown | 0.01 KM |
| Hampden Crescent, Bracknell | £ 260,000 | BUY | 6 / 10 | 0.01 KM |
Nearby Properties
| Address | Price | Distance |
|---|---|---|
| 7 Hampden Crescent | £ 235,000 | 0.00 KM |
| 9 Hampden Crescent | £ 195,000 | 0.00 KM |
| 35 Hampden Crescent | £ 256,000 | 0.00 KM |
| 31 Hampden Crescent | £ 242,000 | 0.00 KM |
| 4 Hampden Crescent | £ 220,000 | 0.00 KM |