Cannon Hill, Ashton-on-Ribble, Preston, Lancashire, PR2
By Reeds Rains
£ 90,000
Reviews
2 out of 5 stars
Reeds Rains says ..
This property is for sale by the Modern Method of Auction, meaning the buyer and seller are to Complete within 56 days (the "Reservation Period"). Interested parties personal data will be shared with the Auctioneer (iamsold). If considering buying with a mortgage, inspect and consi...
Property Oracle says ..
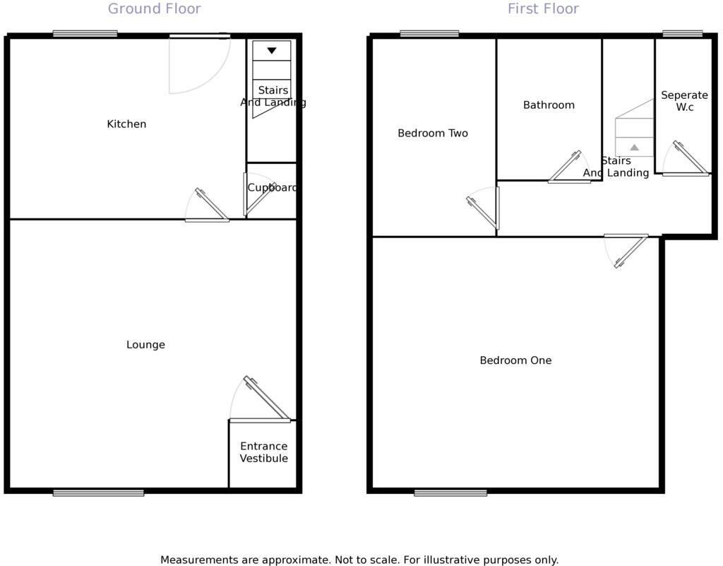
This end-of-terrace property is located in Ashton-on-Ribble, Preston. It features 2 bedrooms and 1 bathroom within 738 sqft. While requiring some renovation, it presents an opportunity for buyers. The property benefits from its proximity to local schools and transportation links, including Preston train station. The asking price is below the local average, reflecting the property’s condition and offering potential for value enhancement through renovation.
Therefore, we give this property 5 / 10. *Disclaimer: This is our option and does constitute a recommendation or financial advice. Do your own research. *
- Price
- 9
- Condition
- 4
- Location
- 7
- Land
- 3
- Bedrooms
- 2
- Bathrooms
- 1
- Sqft (est)
- 738.00
The heatmap indicates the level of crime in the area. The color of the heatmap indicates the crime severity and recency.
Metrics Year-on-Year
- Average area value
- 236,183.00 £Increased by 10.24 %
- Est sale value
- 173,430.00 £Increased by 16.34 %
- Average area rental value
- 884.00 £/moIncreased by 4.49 %
- Est letting value
- 0.00 £/mo
- Est rental Yield
- 4.49 %Decreased by 5.27 %
- Crime Rate
- 13.00 %Unchanged by 0.00 %
Agent Activity
Reeds Rains created the listing.
Nearby Schools
| Name | Type | Ofsted | Distance |
|---|---|---|---|
| Sacred Heart Catholic Primary School | Voluntary Aided School | Requires improvement | 0.40 KM |
| Cedar Lodge School | Other Independent Special School | Outstanding | 0.66 KM |
| The Roebuck School | Community School | Requires improvement | 0.73 KM |
| Spen Brook School | Other Independent Special School | Outstanding | 0.76 KM |
| The Limes School | Other Independent Special School | Good | 0.76 KM |
Images
Nearby Streets
| Name | Average Price | Average Sqft | Distance |
|---|---|---|---|
| Strand St West | £ 0 | 0 | 0.00 KM |
| Cheviot Street | £ 0 | 0 | 0.00 KM |
| Customs Way | £ 139,950 | 0 | 0.00 KM |
| St Mark's Place West | £ 117,000 | 0 | 0.00 KM |
| St Marks Place East | £ 106,750 | 0 | 0.00 KM |
Nearby Transport
| Name | NLC | TLC | Distance |
|---|---|---|---|
| Preston (Lancs) | 2753 | PRE | 1.96 KM |
| Lostock Hall | 2689 | LOH | 6.06 KM |
| Bamber Bridge | 2561 | BMB | 8.16 KM |
| Leyland | 2710 | LEY | 8.41 KM |
Nearby Listings
| Address | Price | Type | Score | Distance |
|---|---|---|---|---|
| Cannon Hill, Ashton-on-Ribble, Preston, Lancashire, PR2 | £ 90,000 | BUY | 5 / 10 | 0.00 KM |
| Cannon Hill Preston PR2 2RR | £ 130,000 | BUY | 5 / 10 | 0.01 KM |
| Cannon Hill, Preston, PR2 | £ 130,000 | BUY | 6 / 10 | 0.01 KM |
| Rossall Street, Ashton, PR2 | £ 130,000 | BUY | 6 / 10 | 0.06 KM |
| Rossall Street, Ashton On Ribble, Preston, PR2 | £ 110,000 | BUY | 5 / 10 | 0.06 KM |
Nearby Properties
| Address | Price | Distance |
|---|---|---|
| 15 Cannon Hill | £ 40,000 | 0.00 KM |
| 25 Cannon Hill | £ 75,550 | 0.00 KM |
| 31 Cannon Hill | £ 97,950 | 0.00 KM |
| 29 Cannon Hill | £ 73,550 | 0.00 KM |
| 18 Cannon Hill | £ 93,950 | 0.00 KM |