Elmgrove Road, Hucclecote, Gloucester
By Naylor Powell
£ 325,000
Reviews
3 out of 5 stars
Naylor Powell says ..
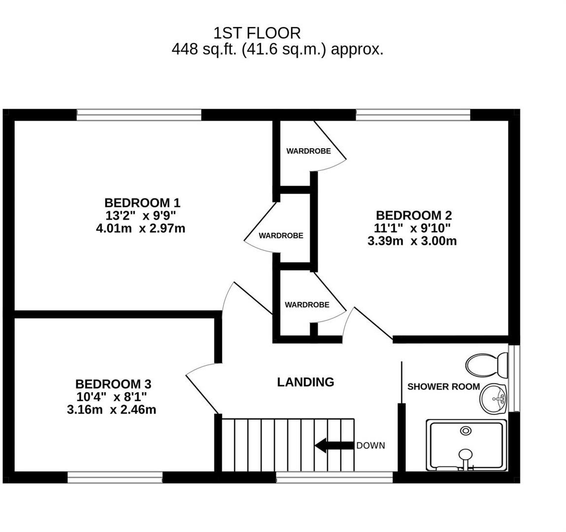
Offered to the market with no onward chain is this extended, three-bedroom, semi-detached property. Located on a quiet road, close to local schools, shops, and motorway access, this family home offers flexible living accommodation over two floors, with off-road parking and a generously sized, sou...
Property Oracle says ..
Location: Hucclecote is a desirable residential area in Gloucester, known for its family-friendly atmosphere and good local amenities. The property’s proximity to well-regarded primary schools like Dinglewell Infant and Junior School, and Hillview Primary School, is a significant advantage for families. The 5.69km distance to Gloucester city centre provides convenient access to a wider range of shops, services, and employment opportunities.
Condition: The property appears to be in generally good condition, although some minor cosmetic updates might enhance its appeal. The images show a clean and well-maintained interior, with modern flooring and fixtures. The kitchen and bathroom appear functional, but a refresh might be considered to increase its market value. The exterior is also well-presented, with a neat garden.
Land: The property includes a garden, providing outdoor space for relaxation and recreation. The size of the plot (1,228 sqft) is modest but sufficient for a family home of this size.
Price: The list price of £325,000 is slightly below the average price for the area (£337,041). Considering the property’s size (956 sqft) and the average price per sqft (£289), the price seems reasonable. However, the lack of sqft data for comparable properties on Elmgrove Road makes a precise comparison difficult. Nearby properties on Elmgrove Road have varied prices, ranging from £159,950 to £340,000, suggesting some price variation along the street. The presence of a garden and the generally good condition of the property support the listed price.
Therefore, we give this property 7 / 10. *Disclaimer: This is our option and does constitute a recommendation or financial advice. Do your own research. *
- Price
- 7
- Condition
- 7
- Location
- 8
- Land
- 7
- Bedrooms
- 3
- Bathrooms
- 1
- Sqft (est)
- 956.00
- Lot (est)
- 1,228.00
The heatmap indicates the level of crime in the area. The color of the heatmap indicates the crime severity and recency.
Metrics Year-on-Year
- Average area value
- 290,495.00 £Decreased by 11.63 %
- Est sale value
- 310,700.00 £Increased by 0.31 %
- Average area rental value
- 1,124.00 £/moIncreased by 4.46 %
- Est letting value
- 956.00 £/moUnchanged by 0.00 %
- Est rental Yield
- 4.64 %Increased by 18.07 %
- Crime Rate
- 3.00 %Unchanged by 0.00 %
Agent Activity
Naylor Powell created the listing.
Nearby Schools
| Name | Type | Ofsted | Distance |
|---|---|---|---|
| Dinglewell Junior School | Community School | Good | 0.74 KM |
| Dinglewell Infant School | Community School | Good | 0.74 KM |
| Hillview Primary School | Community School | Good | 1.01 KM |
| Abbeymead Primary School | Community School | Good | 1.10 KM |
| Coopers Edge School | Foundation School | Good | 1.32 KM |
Images
Nearby Streets
| Name | Average Price | Average Sqft | Distance |
|---|---|---|---|
| The Orchards | £ 0 | 0 | 0.00 KM |
| Lynton Road | £ 373,333 | 0 | 0.00 KM |
| Spencer Close | £ 316,000 | 0 | 0.00 KM |
| Mogridge Close | £ 399,950 | 0 | 0.00 KM |
| Conway Road | £ 312,475 | 0 | 0.00 KM |
Nearby Transport
| Name | NLC | TLC | Distance |
|---|---|---|---|
| Gloucester | 4760 | GCR | 5.69 KM |
Nearby Listings
| Address | Price | Type | Score | Distance |
|---|---|---|---|---|
| Elmgrove Road, Hucclecote, Gloucester | £ 325,000 | BUY | 7 / 10 | 0.00 KM |
| Elmgrove Road, Hucclecote, Gloucester | £ 300,000 | BUY | 7 / 10 | 0.04 KM |
| Parkwood Crescent, Hucclecote, Gloucester | £ 335,000 | BUY | Unknown | 0.06 KM |
| Elmgrove Road, Hucclecote | £ 325,000 | BUY | 6 / 10 | 0.11 KM |
| Kingscroft Road, Hucclecote, GL3 | £ 365,000 | BUY | Unknown | 0.11 KM |
Nearby Properties
| Address | Price | Distance |
|---|---|---|
| 23 Elmgrove Road | £ 290,000 | 0.03 KM |
| 35 Elmgrove Road | £ 159,950 | 0.03 KM |
| 18 Elmgrove Road | £ 340,000 | 0.03 KM |
| 14 Elmgrove Road | £ 202,000 | 0.03 KM |
| 25 Elmgrove Road | £ 163,000 | 0.03 KM |