TR
The Chocolate Factory, Quarry Road, Tunbridge Wells, Kent, TN1
By Trilogy
£ 650,000
Trilogy says ..
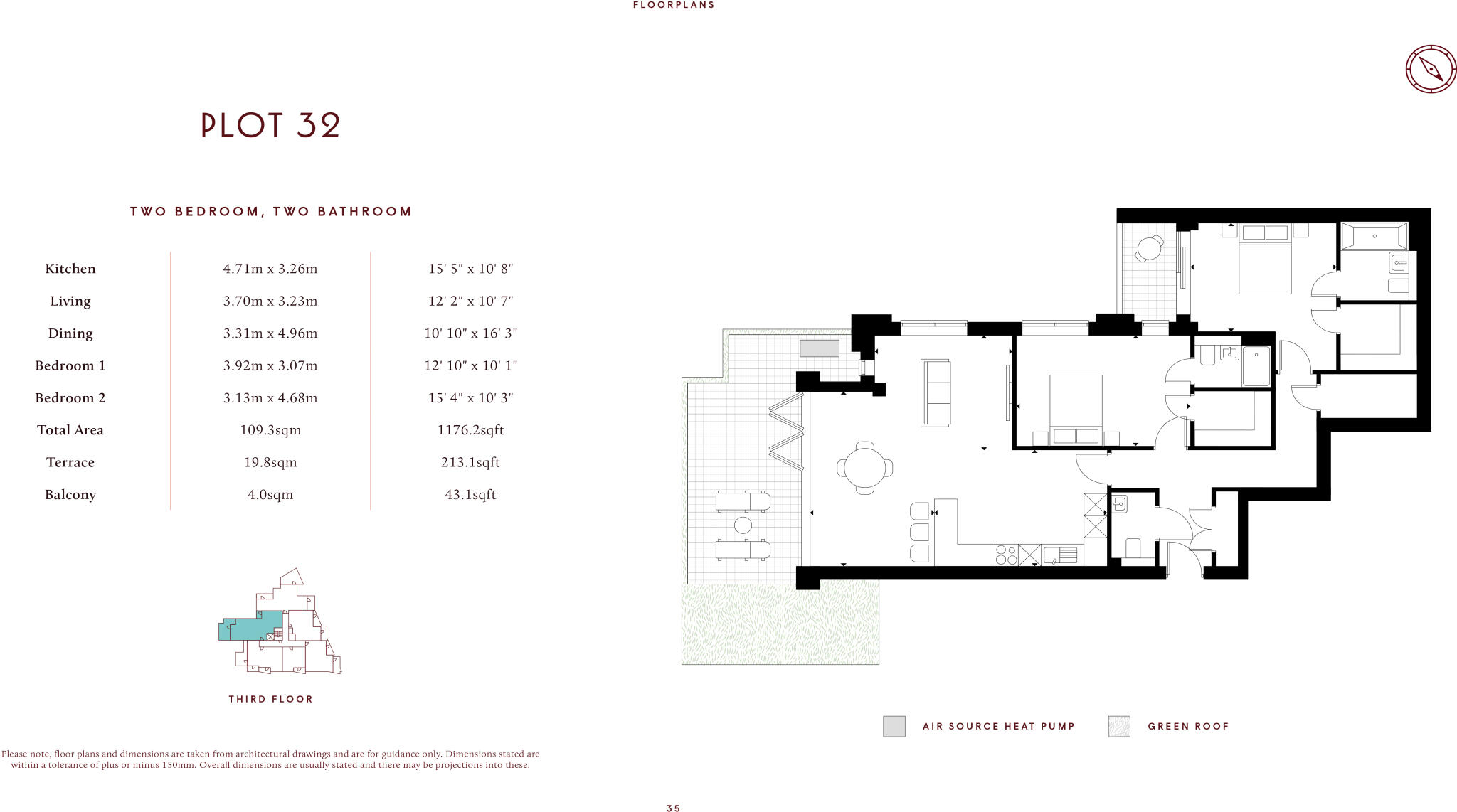
OUR BAND NEW SHOW HOME IS OPEN THURSDAY - MONDAY 10.00AM – 5.00PM. VIEW OUR TEASER VIDEO & BOOK YOUR APPOINTMENT TODAY! A two double bedroom, two bathroom luxury new build apartment with two spacious terraces and allocated parking. The Chocolate Factory is a tempting assortme...
- Bedrooms
- 2
- Bathrooms
- 2
The heatmap indicates the level of crime in the area. The color of the heatmap indicates the crime severity and recency.
Metrics Year-on-Year
- Average area value
- 391,661.00 £Increased by 31.90 %
- Average area rental value
- 1,339.00 £/moIncreased by 15.33 %
- Est rental Yield
- 4.10 %Decreased by 12.58 %
- Crime Rate
- 7.00 %Unchanged by 0.00 %
from 296,949.00 £
from 1,161.00 £/mo
from 4.69 %
from 7.00 %
Agent Activity
Trilogy created the listing.
Nearby Schools
| Name | Type | Ofsted | Distance |
|---|---|---|---|
| St Barnabas Cofe Va Primary School | Voluntary Aided School | Good | 0.11 KM |
| St James' Church Of England Voluntary Aided Primary School | Voluntary Aided School | Outstanding | 0.75 KM |
| St John'S Church Of England Primary School | Voluntary Controlled School | Good | 1.01 KM |
| The Skinners' School | Academy Converter | 1.11 KM | |
| St Augustine'S Catholic Primary School | Academy Converter | Good | 1.16 KM |
Images
Nearby Streets
| Name | Average Price | Average Sqft | Distance |
|---|---|---|---|
| Grosvenor Bridge | £ 0 | 0 | 0.00 KM |
| Dunstan Grove | £ 0 | 0 | 0.00 KM |
| Victoria Road | £ 0 | 0 | 0.00 KM |
| St Michael's Road | £ 450,000 | 0 | 0.00 KM |
| Belgrave Road | £ 260,000 | 0 | 0.00 KM |
Nearby Transport
| Name | NLC | TLC | Distance |
|---|---|---|---|
| High Brooms | 5235 | HIB | 1.25 KM |
| Tunbridge Wells | 5230 | TBW | 1.42 KM |
| Frant | 5218 | FRT | 4.82 KM |
| Tonbridge | 5229 | TON | 5.70 KM |
| Wadhurst | 5231 | WAD | 8.79 KM |
Nearby Listings
| Address | Price | Type | Score | Distance |
|---|---|---|---|---|
| The Chocolate Factory, Quarry Road, Tunbridge Wells, Kent, TN1 | £ 650,000 | BUY | Unknown | 0.00 KM |
| The Chocolate Factory, Quarry Road, Tunbridge Wells, Kent, TN1 | £ 315,000 | BUY | 7 / 10 | 0.00 KM |
| The Chocolate Factory, Quarry Road, Tunbridge Wells, Kent, TN1 | £ 330,000 | BUY | Unknown | 0.00 KM |
| The Chocolate Factory, Quarry Road, Tunbridge Wells, Kent, TN1 | £ 550,000 | BUY | Unknown | 0.00 KM |
| The Chocolate Factory, Quarry Road, Tunbridge Wells, Kent, TN1 | £ 430,000 | BUY | Unknown | 0.00 KM |
Nearby Properties
| Address | Price | Distance |
|---|---|---|
| 20 Quarry Road | £ 284,000 | 0.04 KM |
| 24 Quarry Road | £ 100,000 | 0.04 KM |
| 30 Quarry Road | £ 340,000 | 0.04 KM |
| 32 Quarry Road | £ 111,000 | 0.04 KM |
| 6 Quarry Road | £ 270,000 | 0.04 KM |