Breck Road, Wallasey, CH44
By Home Estate Agents
£ 275,000
Reviews
3 out of 5 stars
Home Estate Agents says ..
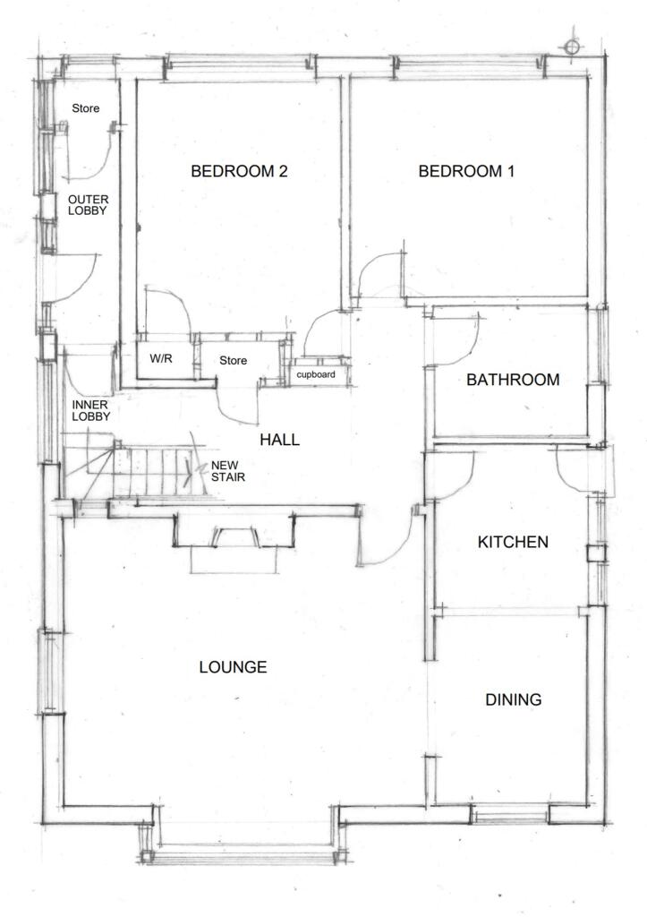
Lovely Detached Bungalow with Far Reaching Views! This two bedroom detached bungalow has been recently refurbished including a beautiful brand new kitchen and bathroom and is situated at an elevated position enjoying amazing views to the front aspect.
Property Oracle says ..
Therefore, we give this property 6 / 10. *Disclaimer: This is our option and does constitute a recommendation or financial advice. Do your own research. *
- Price
- 4
- Condition
- 8
- Location
- 8
- Land
- 7
- Bedrooms
- 2
- Bathrooms
- 1
- Sqft (est)
- 771.34
The heatmap indicates the level of crime in the area. The color of the heatmap indicates the crime severity and recency.
Metrics Year-on-Year
- Average area value
- 158,667.00 £Decreased by 12.47 %
- Est sale value
- 165,066.76 £Increased by 35.44 %
- Average area rental value
- 606.00 £/moDecreased by 22.70 %
- Est letting value
- 0.00 £/mo
- Est rental Yield
- 4.58 %Decreased by 11.75 %
- Crime Rate
- 4.00 %Unchanged by 0.00 %
from 181,265.00 £
from 121,871.72 £
from 784.00 £/mo
from 0.00 £/mo
from 5.19 %
from 4.00 %
Agent Activity
Home Estate Agents created the listing.
Nearby Schools
| Name | Type | Ofsted | Distance |
|---|---|---|---|
| Weatherhead High School | Academy Converter | Outstanding | 0.33 KM |
| St George'S Primary School | Community School | Good | 0.79 KM |
| The Mosslands School | Community School | Requires improvement | 0.91 KM |
| St Mary'S Catholic College, A Voluntary Academy | Academy Sponsor Led | Requires improvement | 1.02 KM |
| The Oldershaw School | Academy Converter | Good | 1.11 KM |
Images
Nearby Streets
| Name | Average Price | Average Sqft | Distance |
|---|---|---|---|
| Westbourne Road | £ 0 | 0 | 0.00 KM |
| Hillside Road | £ 0 | 0 | 0.00 KM |
| Loretto Road | £ 0 | 0 | 0.00 KM |
| Church Hill | £ 0 | 0 | 0.00 KM |
| Shrewsbury Road | £ 340,000 | 0 | 0.00 KM |
Nearby Transport
| Name | NLC | TLC | Distance |
|---|---|---|---|
| Wallasey Village | 2265 | WLV | 1.33 KM |
| Birkenhead North | 2145 | BKN | 1.41 KM |
| Wallasey Grove Road | 2154 | WLG | 1.73 KM |
| Bidston | 2136 | BID | 2.38 KM |
| New Brighton | 2152 | NBN | 2.55 KM |
Nearby Listings
| Address | Price | Type | Score | Distance |
|---|---|---|---|---|
| Breck Road, Wallasey, CH44 | £ 275,000 | BUY | 6 / 10 | 0.00 KM |
| Breck Road, Wallasey, Wirral | £ 375,000 | BUY | 6 / 10 | 0.05 KM |
| Breck Road, Wallasey, Wirral | £ 210,000 | BUY | 6 / 10 | 0.07 KM |
| Breck Road, Wallasey, Wirral | £ 220,000 | BUY | 7 / 10 | 0.07 KM |
| Breck Road, Wallasey, Wirral | £ 250,000 | BUY | Unknown | 0.07 KM |
Nearby Properties
| Address | Price | Distance |
|---|---|---|
| 136 Breck Road | £ 249,995 | 0.08 KM |
| 126 Breck Road | £ 159,000 | 0.08 KM |
| 112 Breck Road | £ 280,000 | 0.08 KM |
| 128 Breck Road | £ 318,000 | 0.08 KM |
| 104 Breck Road | £ 350 | 0.08 KM |