Spath Lane, Handforth, Wilmslow, Cheshire, SK9
By Reeds Rains
£ 192,000
Reviews
3 out of 5 stars
Reeds Rains says ..
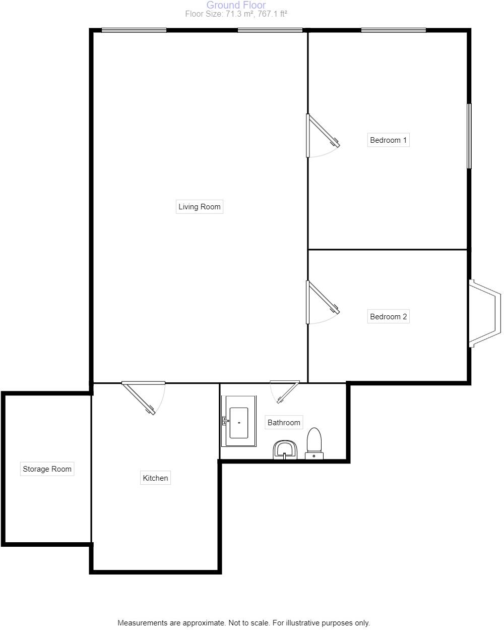
(INVESTORS ONLY- CURRENTLY LET @ £950PCM UNTIL JUNE 2024) **STYLISH APARTMENT/ VILLAGE LOCATION/ CHAIN FREE** A Stylish two bedroom ground floor apartment forming part of a Grade II listed Church building. Now converted into beautiful apartments ideal for a multitude of bu...
Property Oracle says ..
This property is a two-bedroom, one-bathroom apartment located in Handforth, Cheshire. The apartment is part of a converted Grade II listed building and benefits from a modern interior. While the provided images showcase a well-maintained and stylish interior, the lack of information regarding the exterior condition and garden access prevents a complete assessment. The location is convenient, with nearby train stations and schools. However, a definitive assessment of the location’s desirability requires additional information about local amenities and the overall atmosphere. The list price of £192,000 is within the range of other properties in the area, but a precise evaluation of its value for money necessitates knowing the property’s square footage and comparing it to similar properties with complete details.
Therefore, we give this property 6 / 10. *Disclaimer: This is our option and does constitute a recommendation or financial advice. Do your own research. *
- Price
- 6
- Condition
- 9
- Location
- 7
- Land
- 3
- Bedrooms
- 2
- Bathrooms
- 1
- Sqft (est)
- 750.00
- Lot (est)
- 767.10
The heatmap indicates the level of crime in the area. The color of the heatmap indicates the crime severity and recency.
Metrics Year-on-Year
- Average area value
- 530,000.00 £Increased by 33.61 %
- Est sale value
- 295,500.00 £Increased by 1.55 %
- Average area rental value
- 1,200.00 £/moIncreased by 0.08 %
- Est letting value
- 0.00 £/moDecreased by 100.00 %
- Est rental Yield
- 2.72 %Decreased by 25.07 %
- Crime Rate
- 15.00 %Unchanged by 0.00 %
Agent Activity
Reeds Rains marked this listing as sold.
Reeds Rains created the listing.
Nearby Schools
| Name | Type | Ofsted | Distance |
|---|---|---|---|
| Handforth Grange Primary School | Academy Converter | 0.47 KM | |
| Royal School, Manchester | Non-maintained Special School | Outstanding | 0.78 KM |
| Royal College Manchester (Seashell Trust) | Special Post 16 Institution | Good | 0.78 KM |
| Outwood Primary School | Community School | Good | 0.97 KM |
| Oakgrove School | Community Special School | Good | 1.19 KM |
Images
Nearby Streets
| Name | Average Price | Average Sqft | Distance |
|---|---|---|---|
| Ashford Close | £ 325,000 | 0 | 0.00 KM |
| Dunham Road | £ 0 | 0 | 0.00 KM |
| Brooke Avenue | £ 320,000 | 0 | 0.00 KM |
| Warburton Road | £ 0 | 0 | 0.00 KM |
| Davenham Road | £ 200,000 | 0 | 0.00 KM |
Nearby Transport
| Name | NLC | TLC | Distance |
|---|---|---|---|
| Handforth | 2767 | HTH | 0.93 KM |
| Styal | 2868 | SYA | 2.69 KM |
| Heald Green | 2860 | HDG | 2.76 KM |
| Wilmslow | 2774 | WML | 3.22 KM |
| Cheadle Hulme | 2870 | CHU | 3.97 KM |
Nearby Listings
| Address | Price | Type | Score | Distance |
|---|---|---|---|---|
| Spath Lane, Handforth, Wilmslow, Cheshire, SK9 | £ 192,000 | BUY | 6 / 10 | 0.00 KM |
| Wilmslow Road, Handforth, Wilmslow | £ 165,000 | BUY | Unknown | 0.08 KM |
| Wright Close, Handforth, Wilmslow | £ 450,000 | BUY | 6 / 10 | 0.14 KM |
| Wilmslow Road, Handforth, Wilmslow | £ 185,000 | BUY | Unknown | 0.15 KM |
| Pickmere Road, Wilmslow, SK9 | £ 325,000 | BUY | 7 / 10 | 0.17 KM |
Nearby Properties
| Address | Price | Distance |
|---|---|---|
| 4 Kingston Road | £ 378,000 | 0.14 KM |
| 8 Kingston Road | £ 94,000 | 0.14 KM |
| 2 Kingston Road | £ 220,000 | 0.14 KM |
| 60 Pickmere Road | £ 33,000 | 0.17 KM |
| 18 Richmond Avenue | £ 69,500 | 0.17 KM |