1 South Kingennie Steadings, Broughty Ferry.
By McCash Property Haus
£ 375,000
Reviews
3 out of 5 stars
McCash Property Haus says ..
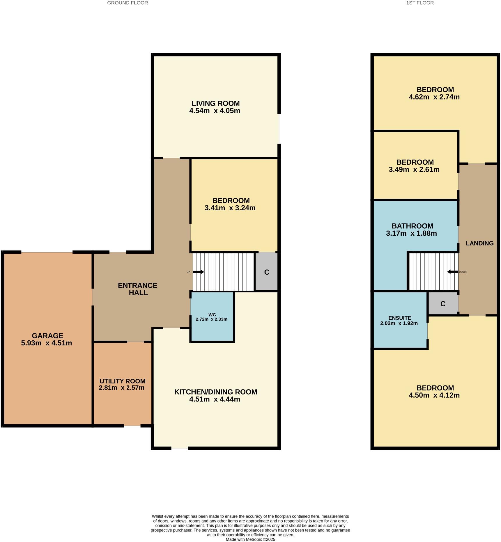
A stunning and spacious detached 4-bedroom home offering countryside tranquillity just minutes from Broughty Ferry. Set within an exclusive steading development, this property combines modern comfort with rural charm - perfect for families or those seeking more space and a relaxed lifestyle.
Property Oracle says ..
1 South Kingennie Steadings is a well-presented detached property located in a desirable area of Angus. The house offers four bedrooms and two bathrooms, making it suitable for families. The interior is modern and in excellent condition, with a stylish kitchen and bathrooms. The property also benefits from a well-maintained garden and off-street parking. The location offers a balance between semi-rural living and accessibility to local amenities and transportation links. Overall, this property represents a desirable family home in a sought-after location.
Therefore, we give this property 7 / 10. *Disclaimer: This is our option and does constitute a recommendation or financial advice. Do your own research. *
- Price
- 7
- Condition
- 9
- Location
- 7
- Land
- 7
- Bedrooms
- 4
- Bathrooms
- 2
The heatmap indicates the level of crime in the area. The color of the heatmap indicates the crime severity and recency.
Metrics Year-on-Year
- Average area value
- 317,022.00 £Decreased by 20.67 %
- Average area rental value
- 1,075.00 £/moDecreased by 55.21 %
- Est rental Yield
- 4.07 %Decreased by 43.55 %
- Crime Rate
- 0.00 %
Agent Activity
McCash Property Haus created the listing.
Images
Nearby Streets
| Name | Average Price | Average Sqft | Distance |
|---|---|---|---|
| South Kingennie Steadings | £ 0 | 0 | 0.00 KM |
| Osprey Place | £ 0 | 0 | 0.00 KM |
| Chapel Road | £ 0 | 0 | 0.00 KM |
| Applehill Gardens | £ 0 | 0 | 0.00 KM |
Nearby Transport
| Name | NLC | TLC | Distance |
|---|---|---|---|
| Balmossie | 9013 | BSI | 4.07 KM |
| Broughty Ferry | 9023 | BYF | 4.46 KM |
| Monifieth | 9060 | MON | 5.33 KM |
Nearby Listings
| Address | Price | Type | Score | Distance |
|---|---|---|---|---|
| 1 South Kingennie Steadings, Broughty Ferry. | £ 375,000 | BUY | 7 / 10 | 0.00 KM |
| Heron Place, Kingennie, Broughty Ferry, Dundee | £ 625,000 | BUY | 7 / 10 | 1.42 KM |
| Parklands Of Murroes, Kellas, Dundee, Angus | £ 1,795,000 | BUY | 8 / 10 | 1.42 KM |
| Broughty Ferry, Parkland Of Murroes, DD5 | £ 375,000 | BUY | 8 / 10 | 1.62 KM |
| Drumsturdy Road, Broughty Ferry, DD5 | £ 190,000 | BUY | 6 / 10 | 1.65 KM |