GA
Waterbeach Road, Slough, SL1
By Galaxy Real Estate
£ 430,000
Reviews
2 out of 5 stars
Galaxy Real Estate says ..
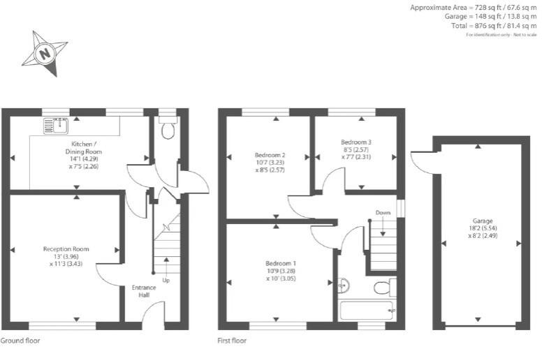
Discover the potential of this 3-bedroom fixer-upper in Waterbeach Road, Slough. Priced at £430,000.00, this property offers endless possibilities to create a dream family home. With close proximity to popular schools, supermarkets, public transport, and recreational facilities, this is an ...
Property Oracle says ..
Therefore, we give this property 5 / 10. *Disclaimer: This is our option and does constitute a recommendation or financial advice. Do your own research. *
- Price
- 3
- Condition
- 4
- Location
- 7
- Land
- 6
- Bedrooms
- 3
- Bathrooms
- 1
- Sqft (est)
- 876.18
The heatmap indicates the level of crime in the area. The color of the heatmap indicates the crime severity and recency.
Metrics Year-on-Year
- Average area value
- 266,250.00 £Decreased by 18.69 %
- Est sale value
- 246,206.58 £Increased by 0.36 %
- Average area rental value
- 1,013.00 £/moIncreased by 3.58 %
- Est letting value
- 876.18 £/mo
- Est rental Yield
- 4.57 %Increased by 27.65 %
- Crime Rate
- 3.00 %Unchanged by 0.00 %
from 327,468.00 £
from 245,330.40 £
from 978.00 £/mo
from 0.00 £/mo
from 3.58 %
from 3.00 %
Agent Activity
Galaxy Real Estate created the listing.
Nearby Schools
| Name | Type | Ofsted | Distance |
|---|---|---|---|
| Baylis Court School | Academy Converter | 0.45 KM | |
| The Godolphin Junior Academy | Academy Converter | Good | 0.49 KM |
| Baylis Court Nursery School | Local Authority Nursery School | Good | 0.52 KM |
| Phoenix Infant Academy | Academy Converter | Good | 0.69 KM |
| Herschel Grammar School | Academy Converter | Outstanding | 0.87 KM |
Images
Nearby Streets
| Name | Average Price | Average Sqft | Distance |
|---|---|---|---|
| Gloucester Avenue | £ 0 | 0 | 0.00 KM |
| Oakley Crescent | £ 0 | 0 | 0.00 KM |
| Devon Avenue | £ 530,000 | 0 | 0.00 KM |
| Carlisle Road | £ 0 | 0 | 0.00 KM |
| Journeys End | £ 900,000 | 0 | 0.00 KM |
Nearby Transport
| Name | NLC | TLC | Distance |
|---|---|---|---|
| Slough | 3172 | SLO | 1.94 KM |
| Windsor And Eton Riverside | 5672 | WNR | 4.23 KM |
| Windsor And Eton Central | 3175 | WNC | 4.54 KM |
| Burnham | 3176 | BNM | 4.64 KM |
| Datchet | 5668 | DAT | 5.29 KM |
Nearby Listings
| Address | Price | Type | Score | Distance |
|---|---|---|---|---|
| Waterbeach Road, Slough, SL1 | £ 430,000 | BUY | 5 / 10 | 0.00 KM |
| Waterbeach Road, Slough | £ 420,000 | BUY | 4 / 10 | 0.09 KM |
| Slough, Berkshire, SL1 | £ 475,000 | BUY | Unknown | 0.17 KM |
| Litcham Spur, Slough, SL1 | £ 370,000 | BUY | 6 / 10 | 0.19 KM |
| Waterbeach Road, Slough | £ 150,000 | BUY | 6 / 10 | 0.20 KM |
Nearby Properties
| Address | Price | Distance |
|---|---|---|
| 77 Waterbeach Road | £ 209,500 | 0.01 KM |
| 81 Waterbeach Road | £ 475,000 | 0.01 KM |
| 61 Waterbeach Road | £ 173,000 | 0.01 KM |
| 75 Waterbeach Road | £ 276,250 | 0.01 KM |
| 69 Waterbeach Road | £ 330,000 | 0.01 KM |