Golf Links Lane, Selsey, PO20
HE

Golf Links Lane, Selsey, PO20

By Henry Adams

£ 850,000

Reviews

3 out of 5 stars

Henry Adams says ..

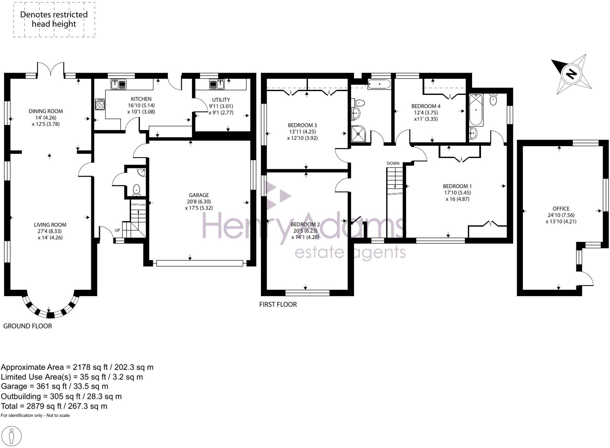
Semi-rural setting, spacious detached house of approx.. 2800sqft. 4 double bedrooms, en-suite, gated driveway for multiple vehicles, double garage. Wrap-around gardens of circa 0.23 acres. Refitted kitchen since 2022, Outbuilding prime for conversion (STP), EPC-D, Council Tax-F

Property Oracle says ..

This is a detached property in Selsey, West Sussex, featuring four bedrooms and two bathrooms. The house appears to be in good condition, with modern interiors and a well-maintained garden. It benefits from proximity to schools. The asking price of £850,000 seems high compared to other properties in the area, despite the larger square footage and below-average price per square foot.

Therefore, we give this property 7 / 10. *Disclaimer: This is our option and does constitute a recommendation or financial advice. Do your own research. *

Price
6
Condition
8
Location
7
Land
7
Bedrooms
4
Bathrooms
2
Sqft (est)
2,402.65

The heatmap indicates the level of crime in the area. The color of the heatmap indicates the crime severity and recency.

Metrics Year-on-Year

Average area value
581,667.00 £
Increased by 44.15 %
from 403,507.00 £
Est sale value
1,504,058.90 £
Increased by 70.57 %
from 881,772.55 £
Average area rental value
1,482.00 £/mo
Decreased by 17.67 %
from 1,800.00 £/mo
Est letting value
2,402.65 £/mo
Unchanged by 0.00 %
from 2,402.65 £/mo
Est rental Yield
3.06 %
Decreased by 42.80 %
from 5.35 %
Crime Rate
1.00 %
Unchanged by 0.00 %
from 1.00 %

Agent Activity

  • Henry Adams created the listing.

Nearby Schools

NameTypeOfstedDistance
The Academy, SelseyAcademy Sponsor LedGood0.98 KM
Medmerry Primary SchoolAcademy ConverterGood1.03 KM
Seal Primary AcademyAcademy Sponsor LedGood1.18 KM
Selsey Children & Family CentreChildren's Centre1.23 KM
Sidlesham Primary SchoolCommunity SchoolGood3.93 KM

Images

Living room Living room Dining room Dining room Dining room Entrance Hall Kitchen Kitchen Utility room Principal bedroom En-Suite bathroom Family bathroom 1st Floor Landing Bedroom two Bedroom three Bedroom four Outbuilding ( home office/workshop )

Nearby Streets

NameAverage PriceAverage SqftDistance
St. George's Close £ 120,00000.00 KM
Wheatfield Road £ 299,95000.00 KM
Tranquility Way £ 147,00000.00 KM
Langley Street £ 000.00 KM
Coppice Lane £ 309,97500.00 KM

Nearby Listings

AddressPriceTypeScoreDistance
Golf Links Lane, Selsey, PO20 £ 850,000BUY7 / 100.00 KM
Hunnisett Close, Selsey £ 340,000BUY6 / 100.21 KM
Chichester Road, Selsey £ 380,000BUY6 / 100.22 KM
Robinson Close, Selsey, PO20 £ 370,000BUY7 / 100.23 KM
Robinson Close, Selsey £ 500,000BUY8 / 100.26 KM

Nearby Properties

AddressPriceDistance
3 Upways Close £ 535,0000.04 KM
2 Upways Close £ 650,0000.09 KM
5 Upways Close £ 480,0000.09 KM
4 Upways Close £ 294,0000.09 KM
6 Upways Close £ 302,0000.09 KM