New Exeter Street, Chudleigh, TQ13
By Chamberlains
£ 210,000
Reviews
2 out of 5 stars
Chamberlains says ..
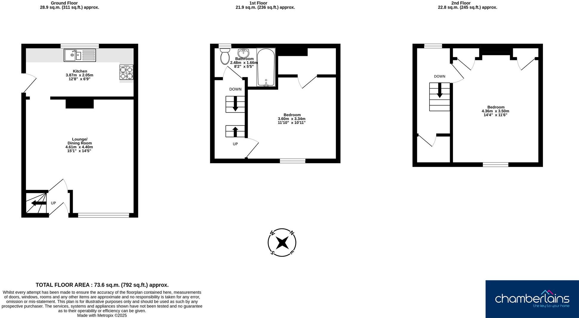
This Charming Two Bedroom Cottage is located in the Heart of Chudleigh Town Centre. Available Chain Free it is Ideal for a First Time Buyer or Investor. On Street Parking and Courtyard Garden.
Property Oracle says ..
This two-bedroom terraced house in Chudleigh, Devon, presents a mixed bag of features. The property is situated on New Exeter Street, offering convenient access to the town’s amenities, including schools and a train station connecting to Newton Abbot. The interior shows evidence of some modernisation, with a recently updated kitchen and bathroom. However, the property could benefit from further improvements, such as new flooring and potentially some wall repairs or repainting. The small, enclosed rear garden provides a degree of outdoor space, but is modest in size. The lack of square footage data makes it difficult to definitively assess the price per square foot, but the asking price of £210,000 appears reasonable given the location and comparable properties in the area. Overall, this property offers a comfortable living space with potential for further enhancement, suitable for a buyer seeking a home in a convenient town setting.
Therefore, we give this property 5 / 10. *Disclaimer: This is our option and does constitute a recommendation or financial advice. Do your own research. *
- Price
- 7
- Condition
- 6
- Location
- 7
- Land
- 3
- Bedrooms
- 2
- Bathrooms
- 1
The heatmap indicates the level of crime in the area. The color of the heatmap indicates the crime severity and recency.
Metrics Year-on-Year
- Average area value
- 700,000.00 £Increased by 145.15 %
- Average area rental value
- 600.00 £/moDecreased by 51.02 %
- Est rental Yield
- 1.03 %Decreased by 80.00 %
- Crime Rate
- 79.00 %Unchanged by 0.00 %
Agent Activity
Chamberlains created the listing.
Nearby Schools
| Name | Type | Ofsted | Distance |
|---|---|---|---|
| Teign Valley Children'S Centre | Children's Centre | 0.17 KM | |
| Chudleigh Church Of England Community Primary School | Voluntary Controlled School | Good | 0.35 KM |
| Chudleigh Knighton Church Of England Primary School | Academy Converter | Good | 4.24 KM |
| Kingsteignton School | Free Schools | Good | 5.71 KM |
| Teign School | Academy Converter | Requires improvement | 5.76 KM |
Images
Nearby Streets
| Name | Average Price | Average Sqft | Distance |
|---|---|---|---|
| Pulins Terrace | £ 265,000 | 0 | 0.00 KM |
| Brookfield Court | £ 460,000 | 0 | 0.00 KM |
| Sycamore Way | £ 290,000 | 0 | 0.00 KM |
| Holly Close | £ 290,000 | 0 | 0.00 KM |
| Bottle Bridge Hill | £ 0 | 0 | 0.00 KM |
Nearby Transport
| Name | NLC | TLC | Distance |
|---|---|---|---|
| Newton Abbot | 3426 | NTA | 8.40 KM |
Nearby Listings
| Address | Price | Type | Score | Distance |
|---|---|---|---|---|
| New Exeter Street, Chudleigh, TQ13 | £ 210,000 | BUY | 5 / 10 | 0.00 KM |
| New Exeter Street, Chudleigh, TQ13 | £ 200,000 | BUY | 6 / 10 | 0.05 KM |
| New Exeter Street, Newton Abbot | £ 115,000 | BUY | 6 / 10 | 0.06 KM |
| New Exeter Street, Chudleigh, TQ13 | £ 125,000 | BUY | 7 / 10 | 0.07 KM |
| Old Exeter Street, Newton Abbot | £ 200,000 | BUY | 7 / 10 | 0.07 KM |
Nearby Properties
| Address | Price | Distance |
|---|---|---|
| Terraflor Bungalow | £ 245,000 | 0.07 KM |
| 13 Old Exeter Street | £ 177,000 | 0.07 KM |
| 6 Old Exeter Street | £ 395,000 | 0.07 KM |
| 3 Old Exeter Street | £ 410,000 | 0.07 KM |
| 15 Old Exeter Street | £ 79,999 | 0.07 KM |