Fleet Road, Farnborough, GU14
By Billingham Martin Ltd
£ 580,000
Reviews
3 out of 5 stars
Billingham Martin Ltd says ..
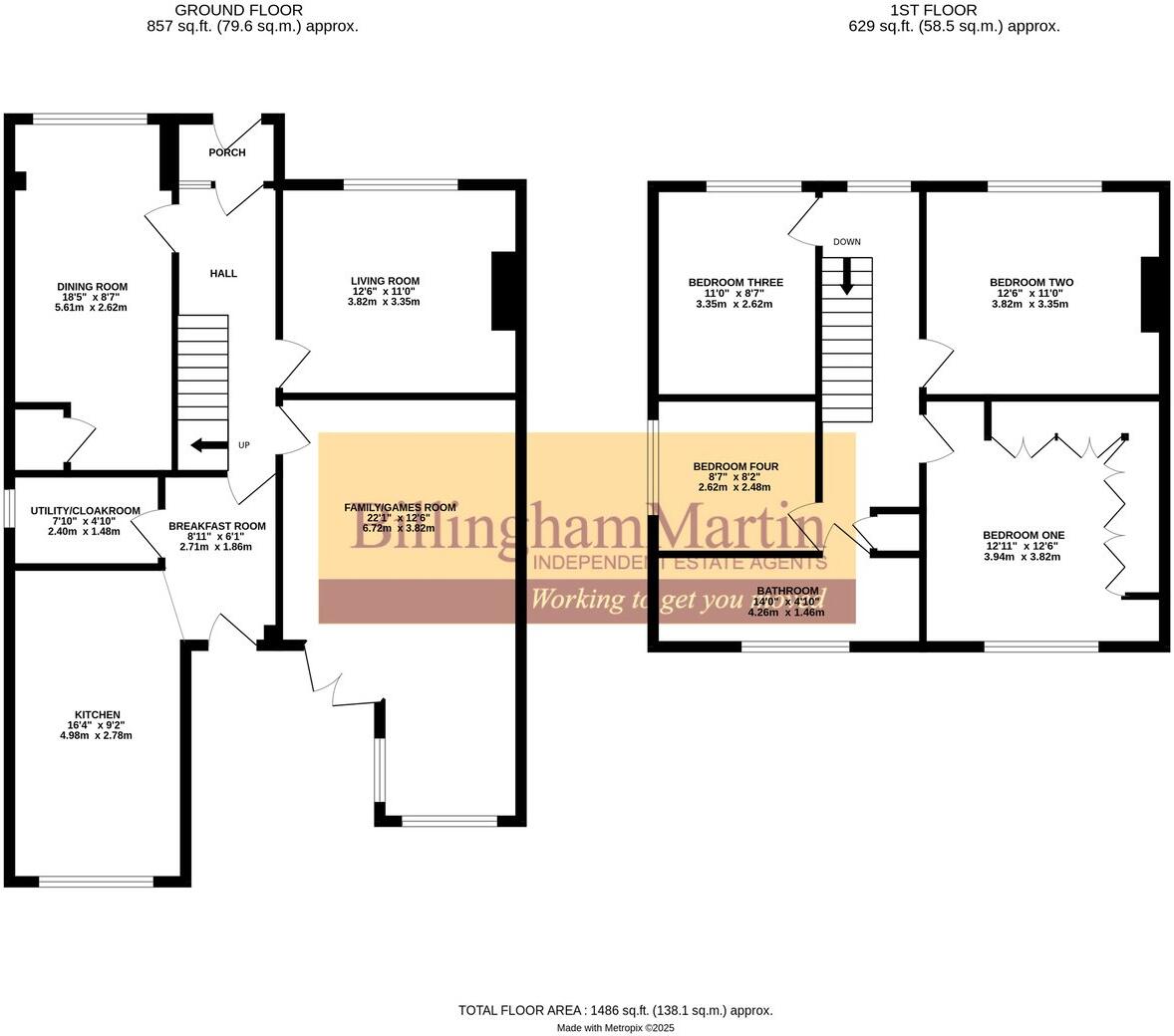
A substantial family home boasting a generous plot with detached double garage and driveway parking to front and rear, situated within easy reach of local schools, shops, commuter routes, Hawley Woods and Fleet Pond Nature Reserve. The accommodation, which is spread over an impressive 14...
Property Oracle says ..
This four-bedroom semi-detached house on Fleet Road in Farnborough presents a solid opportunity for potential buyers. The property benefits from a convenient location, being close to schools and transportation links. The interior is modern, particularly the kitchen and bathrooms, though some areas could use minor updates. The large garden and garage are significant assets, providing ample outdoor and storage space. Priced at £580,000, it aligns well with the local market, offering good value considering its size, condition, and location. Overall, it’s a well-maintained home in a desirable area.
Therefore, we give this property 7 / 10. *Disclaimer: This is our option and does constitute a recommendation or financial advice. Do your own research. *
- Price
- 7
- Condition
- 7
- Location
- 7
- Land
- 7
- Bedrooms
- 4
- Bathrooms
- 1
- Sqft (est)
- 3,907.00
The heatmap indicates the level of crime in the area. The color of the heatmap indicates the crime severity and recency.
Metrics Year-on-Year
- Average area value
- 384,737.00 £Decreased by 1.20 %
- Est sale value
- 1,590,149.00 £Increased by 15.95 %
- Average area rental value
- 1,963.00 £/moIncreased by 39.81 %
- Est letting value
- 7,814.00 £/moIncreased by 100.00 %
- Est rental Yield
- 6.12 %Increased by 41.34 %
- Crime Rate
- 1.00 %Unchanged by 0.00 %
Agent Activity
Billingham Martin Ltd created the listing.
Nearby Schools
| Name | Type | Ofsted | Distance |
|---|---|---|---|
| Cove Junior School | Community School | Good | 0.48 KM |
| Cove School | Foundation School | Good | 0.54 KM |
| Cove Infant School | Community School | Requires improvement | 0.69 KM |
| Manor Junior School | Community School | Good | 0.95 KM |
| Manor Infant School | Community School | Outstanding | 0.95 KM |
Images
Nearby Streets
| Name | Average Price | Average Sqft | Distance |
|---|---|---|---|
| West Heath Roundabout | £ 0 | 0 | 0.00 KM |
| Church Lane | £ 675,000 | 0 | 0.00 KM |
| Kendal Close | £ 0 | 0 | 0.00 KM |
| St John's Road | £ 658,333 | 0 | 0.00 KM |
| Rhine Banks | £ 0 | 0 | 0.00 KM |
Nearby Transport
| Name | NLC | TLC | Distance |
|---|---|---|---|
| Farnborough (Main) | 5521 | FNB | 2.53 KM |
| Frimley | 5683 | FML | 3.94 KM |
| Farnborough North | 5688 | FNN | 4.00 KM |
| Blackwater | 5625 | BAW | 4.02 KM |
| North Camp | 5636 | NCM | 5.68 KM |
Nearby Listings
| Address | Price | Type | Score | Distance |
|---|---|---|---|---|
| Fleet Road, Farnborough, GU14 | £ 580,000 | BUY | 7 / 10 | 0.00 KM |
| Minley Road, Farnborough, Hampshire, GU14 | £ 1,050,000 | BUY | Unknown | 0.11 KM |
| Minley Road, Farnborough, Hampshire, GU14 | £ 1,000,000 | BUY | 7 / 10 | 0.12 KM |
| Fleet Road, Farnborough, Hampshire, GU14 | £ 600,000 | BUY | 7 / 10 | 0.12 KM |
| Southwood Road, Farnborough | £ 525,000 | BUY | 7 / 10 | 0.13 KM |
Nearby Properties
| Address | Price | Distance |
|---|---|---|
| 8 Minley Close | £ 365,000 | 0.07 KM |
| 1 Minley Close | £ 495,000 | 0.07 KM |
| 2 Minley Close | £ 450,000 | 0.07 KM |
| 9 Minley Close | £ 355,000 | 0.07 KM |
| 20 Minley Road | £ 285,000 | 0.13 KM |