Somerset House, Kents Bank Road, Grange Over Sands
By Poole Townsend
£ 425,000
Reviews
3 out of 5 stars
Poole Townsend says ..
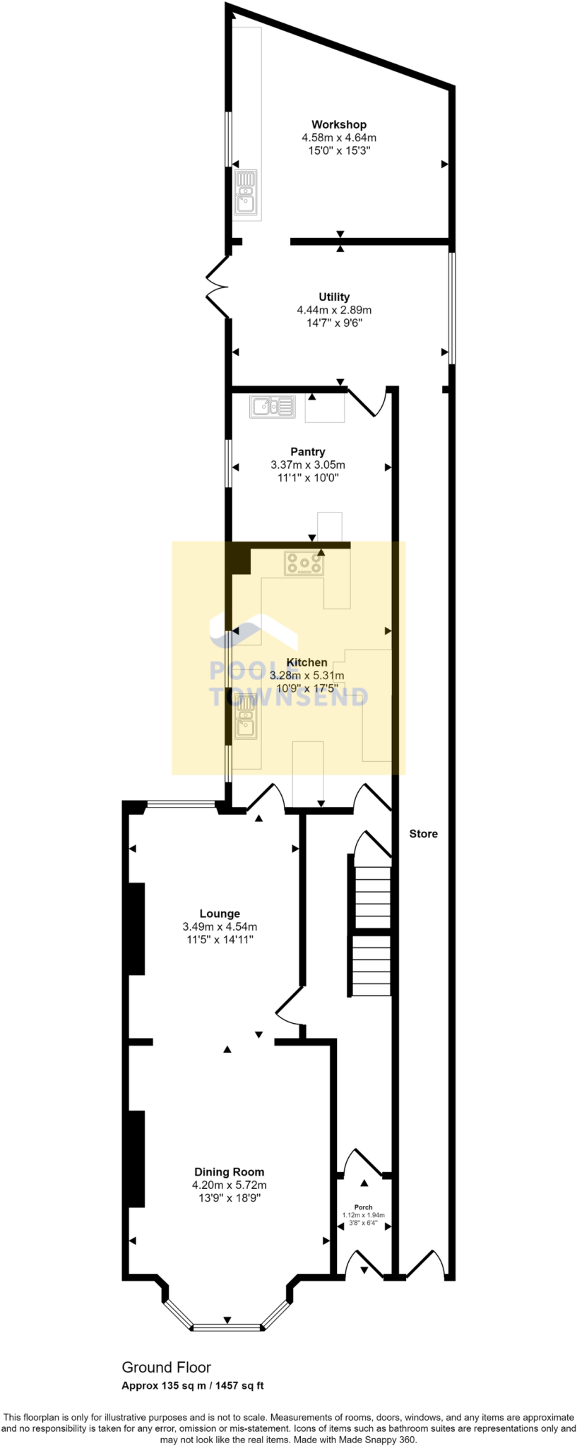
Centrally located within the picturesque Edwardian coastal town of Grange over Sands is this deceptively spacious B&B with separate owners' living and bedroom accommodation. Laid across four floors, the B&B accommodation includes eight comfortable en-suite bedrooms, with access to a co...
Property Oracle says ..
Somerset House in Grange-over-Sands, Cumbria presents itself as a substantial property currently operating as a bed and breakfast. The building appears well-maintained from the exterior and offers a respectable amount of space, including eight en-suite bedrooms across four floors and separate owners’ accommodation. The interior photographs showcase various rooms, including a dining room, kitchen, and numerous bedrooms and bathrooms, all generally presented in a tidy manner. The location is described as central within Grange-over-Sands, suggesting ease of access to local amenities. The town’s coastal location and proximity to good schools are significant advantages. However, a crucial piece of information is missing: the property’s plot size. The absence of garden space is a considerable drawback, impacting the overall desirability of the property for some buyers. While the listed price suggests good value relative to nearby comparable properties, without precise square footage data for Somerset House itself and average price per square foot data in the area, it is challenging to provide a definitive opinion on the property’s financial value. Furthermore, the images reveal that some areas could benefit from some minor updating and modernisation to bring the interiors fully up to date. Overall, Somerset House is a potentially lucrative investment for those seeking a B&B opportunity in a desirable location, but the lack of land and need for minor improvements should be carefully weighed.
Therefore, we give this property 6 / 10. *Disclaimer: This is our option and does constitute a recommendation or financial advice. Do your own research. *
- Price
- 7
- Condition
- 7
- Location
- 8
- Land
- 2
- Bedrooms
- 9
- Bathrooms
- 10
- Sqft (est)
- 3,818.00
The heatmap indicates the level of crime in the area. The color of the heatmap indicates the crime severity and recency.
Metrics Year-on-Year
- Average area value
- 751,426.00 £Increased by 83.24 %
- Est sale value
- 1,137,764.00 £Decreased by 15.34 %
- Average area rental value
- 1,466.00 £/moDecreased by 0.54 %
- Est letting value
- 0.00 £/moDecreased by 100.00 %
- Est rental Yield
- 2.34 %Decreased by 45.71 %
- Crime Rate
- 47.00 %Unchanged by 0.00 %
Agent Activity
Poole Townsend created the listing.
Nearby Schools
| Name | Type | Ofsted | Distance |
|---|---|---|---|
| Fell House School | Other Independent Special School | Good | 0.29 KM |
| Grange Cofe Primary School | Voluntary Controlled School | Good | 0.66 KM |
| Lindale Cofe Primary School | Voluntary Controlled School | Good | 3.33 KM |
| Allithwaite Cofe Primary School | Voluntary Controlled School | Good | 3.40 KM |
| Cartmel Priory Cofe School | Academy Converter | Good | 4.23 KM |
Images
Nearby Streets
| Name | Average Price | Average Sqft | Distance |
|---|---|---|---|
| Vicarage Close | £ 280,000 | 0 | 0.00 KM |
| Morecambe Bank | £ 250,000 | 0 | 0.00 KM |
| Yew Tree Road | £ 420,000 | 0 | 0.00 KM |
| Nutwood Manor Drive | £ 347,500 | 0 | 0.00 KM |
| Sedgwick Court | £ 315,000 | 0 | 0.00 KM |
Nearby Transport
| Name | NLC | TLC | Distance |
|---|---|---|---|
| Grange-Over-Sands | 1965 | GOS | 1.20 KM |
| Kents Bank | 1966 | KBK | 2.44 KM |
| Cark And Cartmel | 1964 | CAK | 6.97 KM |
| Arnside | 1963 | ARN | 9.40 KM |
Nearby Listings
| Address | Price | Type | Score | Distance |
|---|---|---|---|---|
| Somerset House, Kents Bank Road, Grange Over Sands | £ 425,000 | BUY | 6 / 10 | 0.00 KM |
| Flat 2 Kentholme, Kents Bank Road, Grange over Sands, LA11 7EY | £ 159,000 | BUY | 6 / 10 | 0.07 KM |
| Flat 1 Kentholme, Kents Bank Road, Grange over Sands | £ 270,000 | BUY | 7 / 10 | 0.09 KM |
| Hideaway Cottage, Kents Bank Road, Grange over Sands | £ 260,000 | BUY | Unknown | 0.09 KM |
| 3 East View Kents Bank Road,Grange-over-Sands, LA11 7EY | £ 190,000 | BUY | 7 / 10 | 0.11 KM |
Nearby Properties
| Address | Price | Distance |
|---|---|---|
| Hideaway Cottage | £ 185,000 | 0.07 KM |
| Lyle House | £ 135,000 | 0.07 KM |
| 11 Fernleigh Avenue | £ 178,000 | 0.10 KM |
| 2 Fernleigh Avenue | £ 175,000 | 0.10 KM |
| 4 Fernleigh Avenue | £ 172,500 | 0.10 KM |