DA
Brow Top, Cononley Road, Glusburn, North Yorkshire, BD20
By Dacre Son & Hartley
£ 334,950
Reviews
3 out of 5 stars
Dacre Son & Hartley says ..
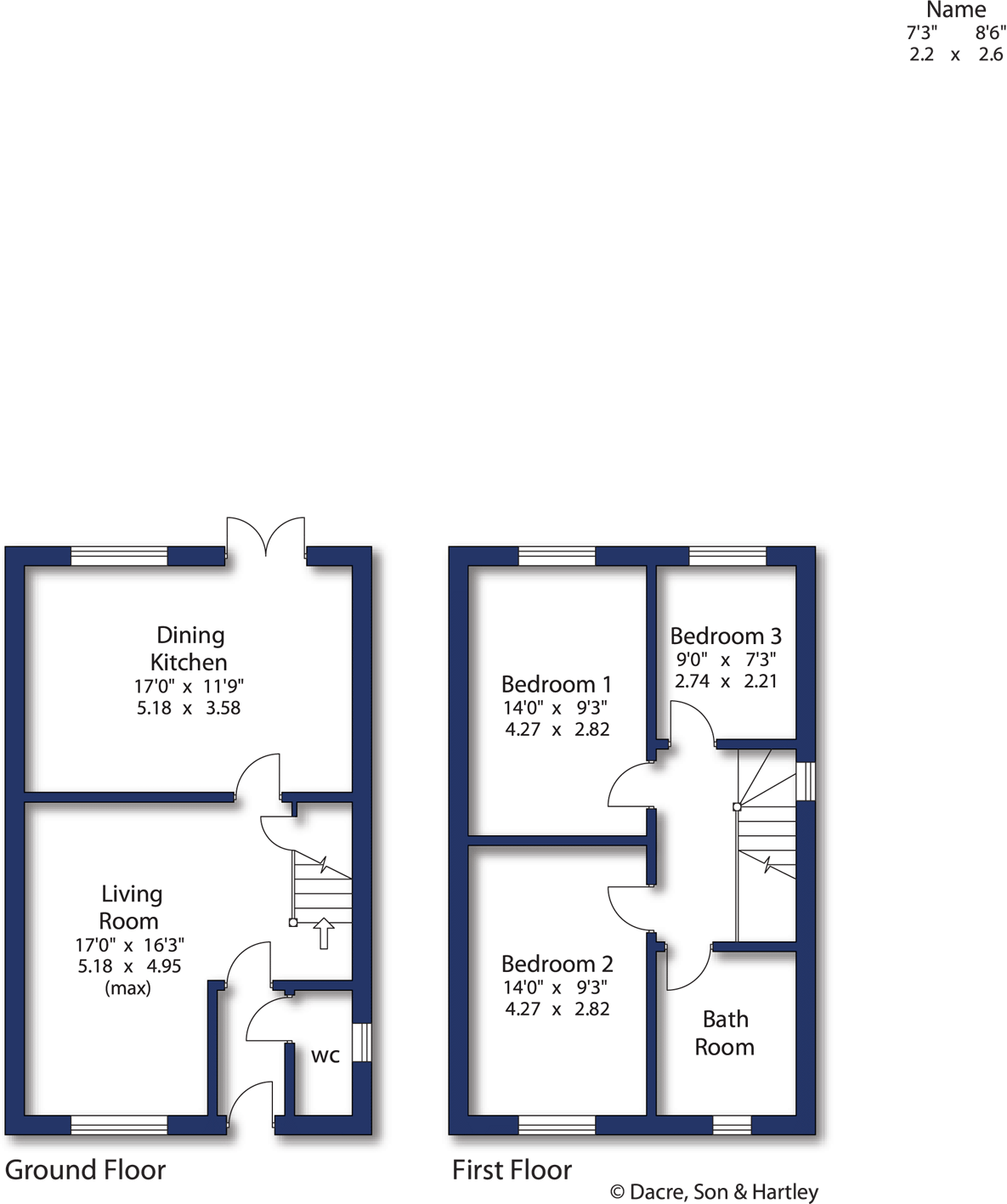
PLOT 19 - Semi-detached homes with accommodation over 2 floors: Hall, WC, living room and kitchen-dining room. Landing, 3 bedrooms and a house bathroom. Garden and parking.
Property Oracle says ..
Therefore, we give this property 7 / 10. *Disclaimer: This is our option and does constitute a recommendation or financial advice. Do your own research. *
- Price
- 8
- Condition
- 9
- Location
- 7
- Land
- 6
- Bedrooms
- 3
- Bathrooms
- 1
The heatmap indicates the level of crime in the area. The color of the heatmap indicates the crime severity and recency.
Metrics Year-on-Year
- Average area value
- 1,245,000.00 £Increased by 45.13 %
- Average area rental value
- 2,513.00 £/moIncreased by 0.60 %
- Est rental Yield
- 2.42 %Decreased by 30.66 %
- Crime Rate
- 13.00 %Unchanged by 0.00 %
from 857,841.00 £
from 2,498.00 £/mo
from 3.49 %
from 13.00 %
Agent Activity
Dacre Son & Hartley created the listing.
Nearby Schools
| Name | Type | Ofsted | Distance |
|---|---|---|---|
| Glusburn Community Primary School | Community School | Requires improvement | 0.72 KM |
| South Craven Children'S Centre | Children's Centre | 0.79 KM | |
| Sutton In Craven Church Of England Voluntary Controlled Primary School | Voluntary Controlled School | Good | 1.47 KM |
| South Craven School | Academy Converter | Outstanding | 1.49 KM |
| Sutton-In-Craven Community Primary School | Community School | Good | 1.67 KM |
Images
Nearby Streets
| Name | Average Price | Average Sqft | Distance |
|---|---|---|---|
| Rye Croft Road | £ 0 | 0 | 0.00 KM |
| Mount Pleasant | £ 0 | 0 | 0.00 KM |
| James Street | £ 189,000 | 0 | 0.00 KM |
| Campbell Street | £ 235,000 | 0 | 0.00 KM |
| Beech Street | £ 0 | 0 | 0.00 KM |
Nearby Transport
| Name | NLC | TLC | Distance |
|---|---|---|---|
| Cononley | 8470 | CEY | 1.88 KM |
| Steeton And Silsden | 8469 | SON | 6.30 KM |
| Skipton | 2728 | SKI | 6.62 KM |
Nearby Listings
| Address | Price | Type | Score | Distance |
|---|---|---|---|---|
| Brow Top, Cononley Road, Glusburn, North Yorkshire, BD20 | £ 334,950 | BUY | 7 / 10 | 0.00 KM |
| Brow Top, Cononley Road, Glusburn, North Yorkshire, BD20 | £ 334,950 | BUY | Unknown | 0.00 KM |
| Plot 18, Brow Top, Cononley Road, Glusburn, North Yorkshire, BD20 | £ 264,950 | BUY | Unknown | 0.00 KM |
| Brow Top, Cononley Road, Glusburn, North Yorkshire, BD20 | £ 450,000 | BUY | 7 / 10 | 0.00 KM |
| Stoneacre, 4 Highgate, Park Road, Cross Hills, BD20 8BE | £ 975,000 | BUY | 8 / 10 | 0.03 KM |
Nearby Properties
| Address | Price | Distance |
|---|---|---|
| 6 Highgate | £ 290,000 | 0.06 KM |
| 7 Highgate | £ 510,000 | 0.06 KM |
| Lingah Farm | £ 299,000 | 0.11 KM |
| 59 Green Lane | £ 450,000 | 0.29 KM |
| 49 Green Lane | £ 300,000 | 0.29 KM |