Winkworth says ..
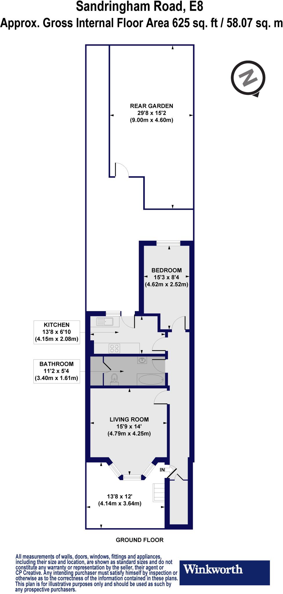
Nestled in the heart of vibrant E8, this delightful 625sqft lower ground floor flat offers a perfect blend of comfort and outdoor space. The well-appointed living area welcomes you with natural light, highlighting its inviting atmosphere. The spacious bedroom provides a peaceful retrea...
Property Oracle says ..
This one-bedroom apartment on Sandringham Road, Dalston, E8, offers a blend of desirable features and areas needing improvement. The location in Dalston is a key selling point, benefiting from the area’s vibrant atmosphere and excellent transport links to central London. The proximity to well-regarded schools, such as The Petchey Academy and Shacklewell Primary School, is an added advantage.
The apartment itself presents a mixed picture. While generally well-maintained and clean, several photos indicate that some areas might need a cosmetic refresh or minor updates. This includes some decluttering in the bedrooms and a somewhat small and dated kitchen. The presence of a small garden, although overgrown, adds a degree of outdoor space which is a significant benefit given its location.
The list price of £425,000 is a competitive figure for this area and property type. While there are potentially properties with a higher price per square foot due to size and quality, the property’s condition and relatively small size are reflected in the pricing. Potential buyers should evaluate whether the necessary minor improvements align with their budget and priorities. Overall, the property presents a reasonable purchase option for buyers seeking a location in Dalston and are happy to make some minor improvements.
Therefore, we give this property 5 / 10. *Disclaimer: This is our option and does constitute a recommendation or financial advice. Do your own research. *
- Price
- 7
- Condition
- 6
- Location
- 7
- Land
- 3
- Bedrooms
- 1
- Bathrooms
- 1
- Sqft (est)
- 625.06
The heatmap indicates the level of crime in the area. The color of the heatmap indicates the crime severity and recency.
Metrics Year-on-Year
- Average area value
- 690,000.00 £Decreased by 4.46 %
- Est sale value
- 710,068.16 £Increased by 33.65 %
- Average area rental value
- 2,884.00 £/moIncreased by 29.68 %
- Est letting value
- 2,500.24 £/moIncreased by 100.00 %
- Est rental Yield
- 5.02 %Increased by 35.68 %
- Crime Rate
- 4.00 %Unchanged by 0.00 %
Agent Activity
Winkworth created the listing.
Nearby Schools
| Name | Type | Ofsted | Distance |
|---|---|---|---|
| The Petchey Academy | Academy Sponsor Led | Good | 0.31 KM |
| Halley House School | Free Schools | Good | 0.38 KM |
| Colvestone Primary School | Community School | Good | 0.51 KM |
| Shacklewell Primary School | Community School | Outstanding | 0.52 KM |
| Inspired Directions School | Other Independent Special School | Good | 0.52 KM |
Images
Nearby Streets
| Name | Average Price | Average Sqft | Distance |
|---|---|---|---|
| Bridge Mews | £ 625,000 | 0 | 0.00 KM |
| Blakeney Close | £ 0 | 0 | 0.00 KM |
| Foxley Close | £ 0 | 0 | 0.00 KM |
| Ritson Road | £ 1,516,667 | 0 | 0.00 KM |
| Electric Avenue | £ 0 | 0 | 0.00 KM |
Nearby Transport
| Name | NLC | TLC | Distance |
|---|---|---|---|
| Dalston Kingsland | 1429 | DLK | 0.70 KM |
| Dalston Junction | 1443 | DLJ | 0.74 KM |
| Rectory Road | 6967 | REC | 0.98 KM |
| Hackney Downs | 6867 | HAC | 0.98 KM |
| Haggerston | 1022 | HGG | 1.41 KM |
Nearby Listings
| Address | Price | Type | Score | Distance |
|---|---|---|---|---|
| Sandringham Road, Dalston, E8 | £ 425,000 | BUY | 5 / 10 | 0.00 KM |
| Colvestone Crescent, London, E8 | £ 550,000 | BUY | 8 / 10 | 0.10 KM |
| Downs Park Road, Hackney | £ 675,000 | BUY | 7 / 10 | 0.10 KM |
| 70C Colvestone Crescent, Hackney, London, E8 2LJ | £ 320,000 | BUY | 4 / 10 | 0.10 KM |
| Colvestone Crescent, London, E8 | £ 950,000 | BUY | 7 / 10 | 0.12 KM |
Nearby Properties
| Address | Price | Distance |
|---|---|---|
| 72 Sandringham Road | £ 48,000 | 0.03 KM |
| 103 Sandringham Road | £ 199,000 | 0.03 KM |
| 72c Sandringham Road | £ 135,000 | 0.03 KM |
| 101 Sandringham Road | £ 189,000 | 0.03 KM |
| 68 & A Half | £ 550,000 | 0.03 KM |