Hare Hill Croft, Chatburn, BB7
ST

Hare Hill Croft, Chatburn, BB7

By Stones Young Estate and Letting Agents

£ 650,000

Reviews

4 out of 5 stars

Stones Young Estate and Letting Agents says ..

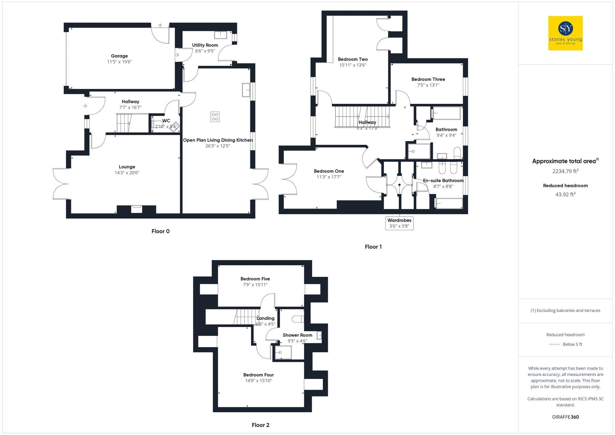
Exquisite 5-bed detached house in Chatburn Village. Modern layout, master en-suite, stunning views of Pendle Hill, spacious lounge, open plan kitchen, underfloor heating, landscaped gardens, double driveway. Move-in ready, high energy efficiency. Village amenities, exclusive development.

Property Oracle says ..

This property is a modern detached house located in Chatburn, Ribble Valley. The area benefits from good local schools, including Chatburn Church Of England Primary School (Outstanding Ofsted rating) and Bowland High School (Outstanding Ofsted rating), both within a reasonable distance. Transport links are available via train stations in nearby Clitheroe and Whalley. The house itself is in excellent condition, appearing newly built or recently renovated. It boasts a modern design and finish, with a well-maintained garden. The list price of £650,000 is significantly higher than the average house price in the area (£242,496), however, this is likely due to the property’s size (2,234.79 sqft), modern condition, and desirable location. While the price per sqft is not directly comparable due to missing data in nearby listings, the overall value proposition requires further consideration given the premium price point compared to local averages.

Therefore, we give this property 8 / 10. *Disclaimer: This is our option and does constitute a recommendation or financial advice. Do your own research. *

Price
6
Condition
10
Location
9
Land
7
Bedrooms
5
Bathrooms
4
Sqft (est)
2,234.79

The heatmap indicates the level of crime in the area. The color of the heatmap indicates the crime severity and recency.

Metrics Year-on-Year

Average area value
259,995.00 £
Increased by 9.02 %
from 238,494.00 £
Est sale value
969,898.86 £
Increased by 24.36 %
from 779,941.71 £
Average area rental value
1,233.00 £/mo
Increased by 108.28 %
from 592.00 £/mo
Est letting value
4,469.58 £/mo
from 0.00 £/mo
Est rental Yield
5.69 %
Increased by 90.94 %
from 2.98 %
Crime Rate
0.00 %
from 0.00 %

Agent Activity

  • Stones Young Estate and Letting Agents created the listing.

Nearby Schools

NameTypeOfstedDistance
Chatburn Church Of England Primary SchoolVoluntary Aided SchoolOutstanding0.70 KM
Grindleton Church Of England Voluntary Aided Primary SchoolVoluntary Aided SchoolGood1.71 KM
Bowland HighAcademy ConverterOutstanding2.27 KM
Clitheroe Brookside Primary SchoolCommunity SchoolRequires improvement3.46 KM
Clitheroe Pendle Primary SchoolCommunity SchoolOutstanding3.63 KM

Images

Kitchen Dining Room Lounge Entrance Hallway Kitchen Dining Room Kitchen Dining Room Entrance Hallway Lounge Cloakroom Kitchen Dining Room Kitchen Dining Room Bedroom Four Shower Room Utility Room First Floor Landing Bedroom One Bedroom One Bedroom One En-suite Bathroom En-suite Bathroom Bedroom Two Bedroom Three Family Bathroom Family Bathroom First Floor Landing Second Floor Landing Bedroom Four Bedroom Five

Nearby Streets

NameAverage PriceAverage SqftDistance
Clough Bank £ 000.00 KM
Ribble Avenue £ 000.00 KM

Nearby Transport

NameNLCTLCDistance
Clitheroe2574CLH4.50 KM
Whalley (Lancashire)2736WHE9.65 KM

Nearby Listings

AddressPriceTypeScoreDistance
Hare Hill Croft, Chatburn, BB7 £ 650,000BUY8 / 100.00 KM
Old Road, Chatburn, Ribble Valley £ 845,000BUYUnknown0.04 KM
Old Road, Chatburn, Ribble Valley £ 845,000BUY6 / 100.04 KM
Old Road, Chatburn, Clitheroe, Lancashire £ 845,000BUY8 / 100.07 KM
Darkwood Crescent, Chatburn, BB7 £ 420,000BUY7 / 100.22 KM

Nearby Properties

AddressPriceDistance
1 Old Road £ 42,0000.17 KM
5 Old Road £ 375,0000.17 KM
3 Old Road £ 365,0000.17 KM
6 Crow Trees Brow £ 292,5000.20 KM
4 Crow Trees Brow £ 249,9500.20 KM