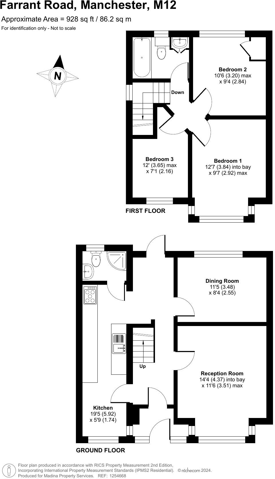
Farrant Road, Manchester, M12
By Madina Property
£ 320,000
Reviews
3 out of 5 stars
Madina Property says ..
Discover this spacious and extended semi-detached property on Farrant Road, Manchester, M12. With 3 bedrooms, 2 bathrooms, a gated parking driveway, and a fitted kitchen. Enjoy the convenience of nearby schools, supermarkets, restaurants, public transport, and healthcare facilities, making it an ...
Property Oracle says ..
The property is located in Longsight, Manchester, and is a semi-detached house with three bedrooms and two bathrooms. The property is relatively small at 1,556.60 sqft, and sits on a plot of 928 sqft. There is a garden to the rear of the property. The property appears to be in generally good condition, although some modernisation may be needed to bring it up to date. The kitchen and bathrooms appear relatively modern, however the flooring and wall coverings in other rooms are dated and could benefit from updating. Longsight is a residential area in Manchester, and the property is within reasonable proximity to several schools, including Stanley Grove Primary Academy (rated ‘Good’ by Ofsted) and Rodney House School (rated ‘Outstanding’). Several train stations are also within a reasonable distance, providing access to Manchester city centre and other areas. The list price of £320,000 seems slightly high compared to the average price per square foot in the area (£505), and compared to nearby comparable properties. However, the property’s location and the inclusion of a garden may justify a slightly higher price. More information on comparable properties would be needed to make a more definitive assessment.
Therefore, we give this property 6 / 10. *Disclaimer: This is our option and does constitute a recommendation or financial advice. Do your own research. *
- Price
- 6
- Condition
- 7
- Location
- 7
- Land
- 6
- Bedrooms
- 3
- Bathrooms
- 2
- Sqft (est)
- 1,556.60
- Lot (est)
- 928.00
The heatmap indicates the level of crime in the area. The color of the heatmap indicates the crime severity and recency.
Metrics Year-on-Year
- Average area value
- 480,222.00 £Decreased by 47.72 %
- Est sale value
- 884,148.80 £Decreased by 10.13 %
- Average area rental value
- 1,868.00 £/moIncreased by 9.11 %
- Est letting value
- 3,113.20 £/moIncreased by 100.00 %
- Est rental Yield
- 4.67 %Increased by 108.48 %
- Crime Rate
- 0.00 %
Agent Activity
Madina Property created the listing.
Nearby Schools
| Name | Type | Ofsted | Distance |
|---|---|---|---|
| Stanley Grove Primary Academy | Academy Sponsor Led | Good | 0.33 KM |
| Rodney House School | Community Special School | Outstanding | 0.42 KM |
| St Peter'S Rc High School | Voluntary Aided School | Good | 0.44 KM |
| Crowcroft Park Primary School | Community School | Good | 0.71 KM |
| St Agnes C Of E Primary School | Voluntary Controlled School | Requires improvement | 0.74 KM |
Images
Nearby Streets
| Name | Average Price | Average Sqft | Distance |
|---|---|---|---|
| Hetherington Walk | £ 0 | 0 | 0.00 KM |
| Stockport Road | £ 200,000 | 0 | 0.00 KM |
| Great Lake Close | £ 0 | 0 | 0.00 KM |
| Farrer Road | £ 0 | 0 | 0.00 KM |
| Specton Walk | £ 0 | 0 | 0.00 KM |
Nearby Transport
| Name | NLC | TLC | Distance |
|---|---|---|---|
| Levenshulme | 2862 | LVM | 1.37 KM |
| Belle Vue | 2785 | BLV | 1.70 KM |
| Ashburys | 2941 | ABY | 1.70 KM |
| Ryder Brow | 2977 | RRB | 2.38 KM |
| Ardwick | 2960 | ADK | 2.71 KM |
Nearby Listings
| Address | Price | Type | Score | Distance |
|---|---|---|---|---|
| Farrant Road, Manchester, M12 | £ 320,000 | BUY | 6 / 10 | 0.00 KM |
| Stainer Street, Manchester, M12 | £ 150,000 | BUY | 5 / 10 | 0.07 KM |
| Rushford Street, Longsight | £ 260,000 | BUY | 5 / 10 | 0.17 KM |
| Purcell Street, Longsight | £ 185,000 | BUY | 6 / 10 | 0.20 KM |
| Hopkins Street, Manchester, Greater Manchester, M12 | £ 190,000 | BUY | Unknown | 0.20 KM |
Nearby Properties
| Address | Price | Distance |
|---|---|---|
| 4 Farrant Road | £ 200,000 | 0.02 KM |
| 24 Farrant Road | £ 180,000 | 0.02 KM |
| 6 Farrant Road | £ 110,000 | 0.02 KM |
| 22 Farrant Road | £ 106,000 | 0.02 KM |
| 18 Farrant Road | £ 225,000 | 0.02 KM |