Chancellors says ..
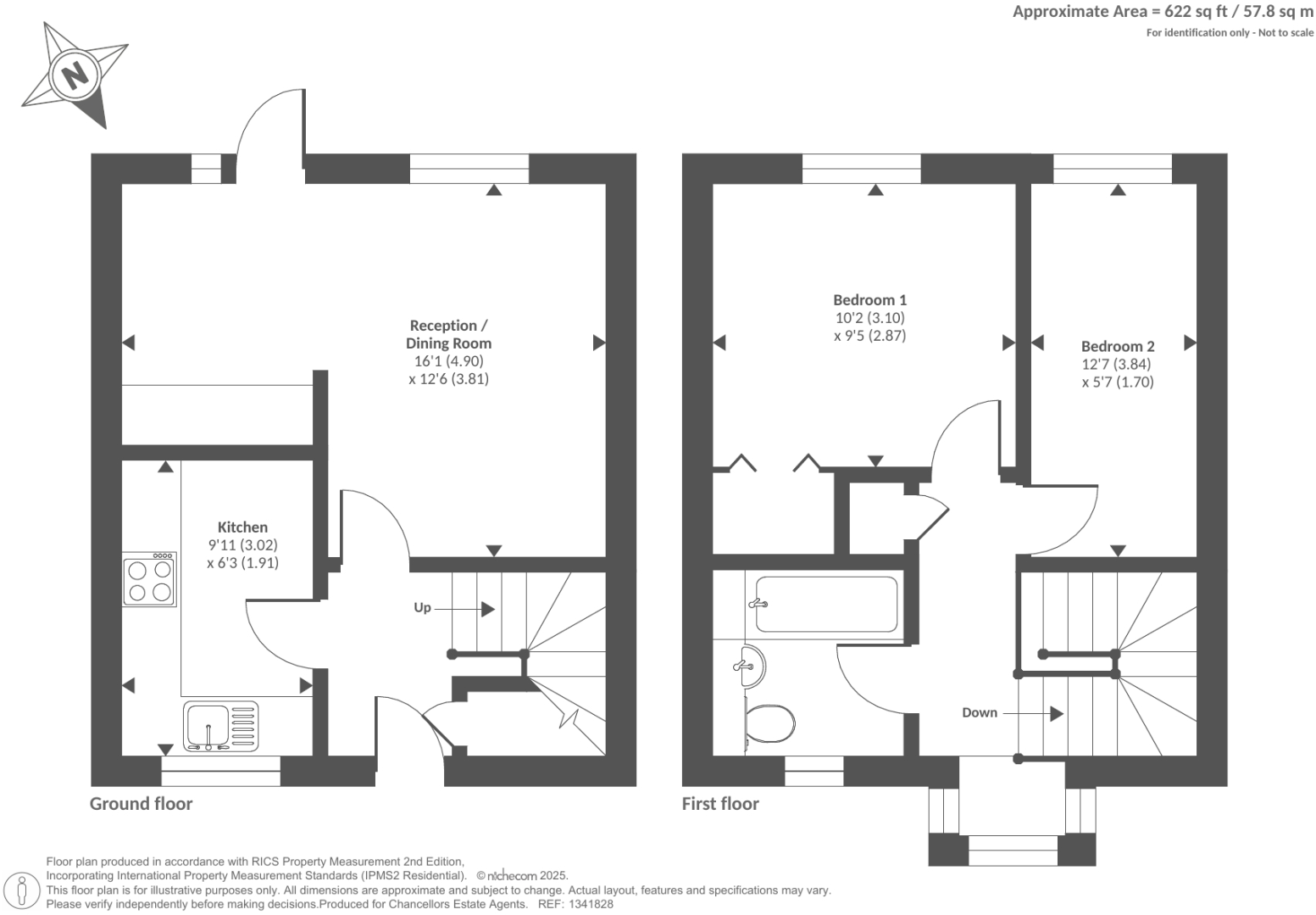
Located in a sought-after and quiet residential area, this well-maintained one bedroom property offers the perfect blend of comfort, convenience, and flexibility. Ideal for first-time buyers, downsizers, or investors, the home is offered with no onward chain.
Property Oracle says ..
Therefore, we give this property 7 / 10. *Disclaimer: This is our option and does constitute a recommendation or financial advice. Do your own research. *
- Price
- 9
- Condition
- 6
- Location
- 8
- Land
- 7
- Bedrooms
- 1
- Bathrooms
- 0
- Sqft (est)
- 427.64
The heatmap indicates the level of crime in the area. The color of the heatmap indicates the crime severity and recency.
Metrics Year-on-Year
- Average area value
- 811,250.00 £Decreased by 14.24 %
- Est sale value
- 365,204.56 £Increased by 56.70 %
- Average area rental value
- 5,577.00 £/moIncreased by 105.34 %
- Est letting value
- 2,138.20 £/moIncreased by 400.00 %
- Est rental Yield
- 8.25 %Increased by 139.13 %
- Crime Rate
- 18.00 %Unchanged by 0.00 %
from 945,966.00 £
from 233,063.80 £
from 2,716.00 £/mo
from 427.64 £/mo
from 3.45 %
from 18.00 %
Agent Activity
Chancellors created the listing.
Nearby Schools
| Name | Type | Ofsted | Distance |
|---|---|---|---|
| Winkfield St Mary'S Cofe Primary School | Voluntary Controlled School | Good | 0.37 KM |
| Lambrook School | Other Independent School | 0.66 KM | |
| Whitegrove Primary School | Community School | Good | 1.59 KM |
| Heathfield School | Other Independent School | 1.82 KM | |
| Lvs Ascot | Other Independent School | 2.09 KM |
Images
Nearby Streets
| Name | Average Price | Average Sqft | Distance |
|---|---|---|---|
| Crawley Chase | £ 0 | 0 | 0.00 KM |
| Connaught Gardens | £ 0 | 0 | 0.00 KM |
| Osman's Close | £ 400,000 | 0 | 0.00 KM |
| Grove Lane | £ 0 | 0 | 0.00 KM |
| The Elms | £ 303,550 | 0 | 0.00 KM |
Nearby Transport
| Name | NLC | TLC | Distance |
|---|---|---|---|
| Martins Heron | 5692 | MAO | 2.87 KM |
| Ascot (Berks) | 5666 | ACT | 4.71 KM |
| Bracknell | 5693 | BCE | 4.83 KM |
| Bagshot | 5681 | BAG | 7.69 KM |
| Sunningdale | 5671 | SNG | 9.62 KM |
Nearby Listings
| Address | Price | Type | Score | Distance |
|---|---|---|---|---|
| Bracknell, Berkshire, RG42 | £ 300,000 | BUY | 7 / 10 | 0.00 KM |
| Simkins Close, Winkfield Row, Berkshire, RG42 | £ 475,000 | BUY | 7 / 10 | 0.04 KM |
| Simkins Close, Winkfield Row, Berkshire, RG42 | £ 280,000 | BUY | 6 / 10 | 0.04 KM |
| Simkins Close, Winkfield Row | £ 475,000 | BUY | 7 / 10 | 0.05 KM |
| Simkins Close, Winkfield Row, Berkshire | £ 475,000 | BUY | 7 / 10 | 0.07 KM |
Nearby Properties
| Address | Price | Distance |
|---|---|---|
| 30 Simkins Close | £ 131,000 | 0.04 KM |
| 38 Simkins Close | £ 256,000 | 0.04 KM |
| 26 Simkins Close | £ 273,000 | 0.04 KM |
| 1 Simkins Close | £ 309,000 | 0.04 KM |
| 18 Simkins Close | £ 270,000 | 0.04 KM |