Miles & Barr says ..
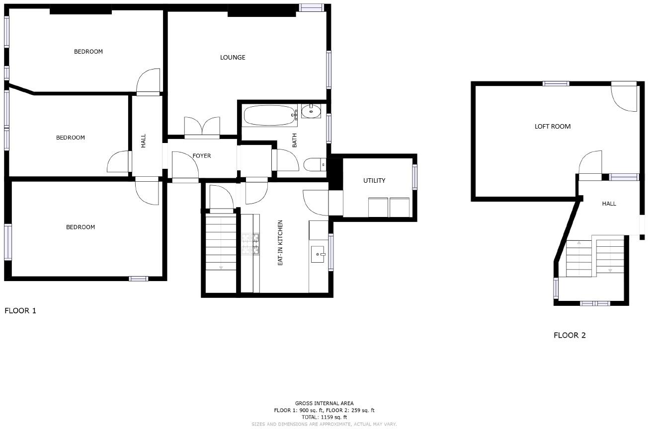
THREE BEDROOM SPLIT LEVEL TOP FLOOR FLAT WITH SEA VIEWS Miles and Barr are delighted to bring to the market this unique three bedroom split level flat located within the ever popular location of The Vale, within walking distance of the beautiful sandy beaches of Broadstairs and close t...
Property Oracle says ..
Therefore, we give this property 6 / 10. *Disclaimer: This is our option and does constitute a recommendation or financial advice. Do your own research. *
- Price
- 9
- Condition
- 7
- Location
- 8
- Land
- 3
- Bedrooms
- 3
- Bathrooms
- 1
- Sqft (est)
- 1,159.00
The heatmap indicates the level of crime in the area. The color of the heatmap indicates the crime severity and recency.
Metrics Year-on-Year
- Average area value
- 477,882.00 £Increased by 5.54 %
- Est sale value
- 531,981.00 £Increased by 37.01 %
- Average area rental value
- 1,256.00 £/moIncreased by 12.34 %
- Est letting value
- 1,159.00 £/mo
- Est rental Yield
- 3.15 %Increased by 6.42 %
- Crime Rate
- 8.00 %Unchanged by 0.00 %
from 452,811.00 £
from 388,265.00 £
from 1,118.00 £/mo
from 0.00 £/mo
from 2.96 %
from 8.00 %
Agent Activity
Miles & Barr created the listing.
Nearby Schools
| Name | Type | Ofsted | Distance |
|---|---|---|---|
| Ekc Group | Further Education | 0.25 KM | |
| Bradstow School | Community Special School | Outstanding | 0.35 KM |
| St Mildred'S Primary Infant School | Foundation School | Outstanding | 0.48 KM |
| Haddon Dene School | Other Independent School | 0.70 KM | |
| Upton Junior School | Academy Converter | 0.97 KM |
Images
Nearby Streets
| Name | Average Price | Average Sqft | Distance |
|---|---|---|---|
| Howard Road | £ 335,000 | 0 | 0.00 KM |
| Clarendon Road | £ 385,000 | 0 | 0.00 KM |
| St. Mildred's Avenue | £ 467,500 | 0 | 0.00 KM |
| Belvedere Road | £ 455,000 | 0 | 0.00 KM |
| Albert Cottages | £ 249,250 | 0 | 0.00 KM |
Nearby Transport
| Name | NLC | TLC | Distance |
|---|---|---|---|
| Broadstairs | 5006 | BSR | 0.62 KM |
| Dumpton Park | 5034 | DMP | 1.64 KM |
| Ramsgate | 5023 | RAM | 3.72 KM |
| Margate | 5018 | MAR | 7.85 KM |
Nearby Listings
| Address | Price | Type | Score | Distance |
|---|---|---|---|---|
| The Vale, Broadstairs, CT10 | £ 295,000 | BUY | 6 / 10 | 0.00 KM |
| Ramsgate Road, Broadstairs, CT10 | £ 230,000 | BUY | 7 / 10 | 0.05 KM |
| Inverness Terrace, Broadstairs, Kent, CT10 | £ 680,000 | BUY | 7 / 10 | 0.07 KM |
| The Vale, Broadstairs, CT10 | £ 1,550,000 | BUY | 6 / 10 | 0.07 KM |
| The Vale, Broadstairs, Kent | £ 190,000 | BUY | 7 / 10 | 0.08 KM |
Nearby Properties
| Address | Price | Distance |
|---|---|---|
| 21 The Vale | £ 330,000 | 0.07 KM |
| 23 The Vale | £ 405,000 | 0.07 KM |
| 37 The Vale | £ 325,000 | 0.07 KM |
| 7 The Vale | £ 417,000 | 0.07 KM |
| 31 The Vale | £ 332,500 | 0.07 KM |