2 Goedwig Villas, Mains Street, Goodwick
JJ

2 Goedwig Villas, Mains Street, Goodwick

By JJ Morris

£ 275,000

Reviews

2 out of 5 stars

JJ Morris says ..

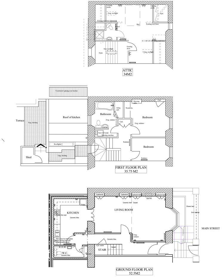
* A spacious 3 storey Victorian Terraced Residence. * Well appointed 1/2 Rec, Kitchen/Breakfast, Cloakroom, 3 Bed (One En-Suite) and Bath/Utility accommodation. * Gas Central Heating, partial Double Glazing (rear elevation) and Roof/Loft Insulation. * Wall and rail Forecourt and a Lan...

Property Oracle says ..

Therefore, we give this property 5 / 10. *Disclaimer: This is our option and does constitute a recommendation or financial advice. Do your own research. *

Price
3
Condition
5
Location
7
Land
7
Bedrooms
3
Bathrooms
2
Sqft (est)
565.11

The heatmap indicates the level of crime in the area. The color of the heatmap indicates the crime severity and recency.

Metrics Year-on-Year

Average area value
278,905.00 £
Increased by 2.67 %
from 271,663.00 £
Est sale value
155,405.25 £
Increased by 50.27 %
from 103,415.13 £
Average area rental value
800.00 £/mo
Decreased by 34.53 %
from 1,222.00 £/mo
Est letting value
0.00 £/mo
from 0.00 £/mo
Est rental Yield
3.44 %
Decreased by 36.30 %
from 5.40 %
Crime Rate
6.00 %
Unchanged by 0.00 %
from 6.00 %

Agent Activity

  • JJ Morris created the listing.

Nearby Schools

NameTypeOfstedDistance
Ysgol Gynradd Sirol WdigWelsh Establishment0.48 KM
Ysgol Bro GwaunWelsh Establishment1.28 KM
Holy Name V.R.C. SchoolWelsh Establishment1.84 KM
Ysgol Glannau GwaunWelsh Establishment1.98 KM
Ysgol Ger Y Llan V.C. SchoolWelsh Establishment8.49 KM

Images

IMG20230418112644.jpg IMG_20230418_130439.jpg IMG_20230418_130412.jpg Hall Sitting/Dining Room Hall IMG_20230418_130505.jpg IMG_20230418_130524.jpg IMG_20230418_130538.jpg Sitting/Dining Room Kitchen/Breakfast Room Kitchen/Breakfast Room IMG_20230418_132305.jpg Separate WC Separate WC IMG_20230418_130348.jpg Bedroom 3/Office Bedroom 2 Bedroom 2 Utility/Bathroom Utility/Bathroom Bedroom 4 IMG_20230418_125754.jpg Bedroom 4 En Suite Shower Room IMG_20230418_125833.jpg IMG_20230418_130400.jpg IMG_20230418_130418.jpg IMG_20230418_130425.jpg JDLT0132.JPEG EXTERNALLY

Nearby Streets

NameAverage PriceAverage SqftDistance
Church Terrace £ 000.00 KM
Berry Hill £ 000.00 KM
Maes Yr Afon £ 395,00000.00 KM
Drim Terrace £ 000.00 KM
Kensington Street £ 000.00 KM

Nearby Transport

NameNLCTLCDistance
Fishguard And Goodwick6680FGW0.31 KM
Fishguard Harbour4076FGH1.60 KM

Nearby Listings

AddressPriceTypeScoreDistance
2 Goedwig Villas, Mains Street, Goodwick £ 275,000BUY5 / 100.00 KM
Goodwick, Pembrokeshire, SA64 £ 350,000BUY5 / 100.01 KM
Goodwick Terrace, Pembrokeshire, SA64 £ 350,000BUY8 / 100.05 KM
Main Street, Goodwick, Pembrokeshire, SA64 £ 99,000BUY6 / 100.09 KM
Main Street, Goodwick, SA64 £ 450,000BUYUnknown0.09 KM

Nearby Properties

AddressPriceDistance
Noddfa £ 198,5000.09 KM
Lower Banc House £ 145,0000.09 KM
Stafford House £ 86,0000.10 KM
Preswylfa £ 144,5000.10 KM
Bay View £ 101,0000.11 KM