Boston Court, 55 Brownhill Road, Chandlers Ford
By Sparks Ellison
£ 250,000
Reviews
3 out of 5 stars
Sparks Ellison says ..
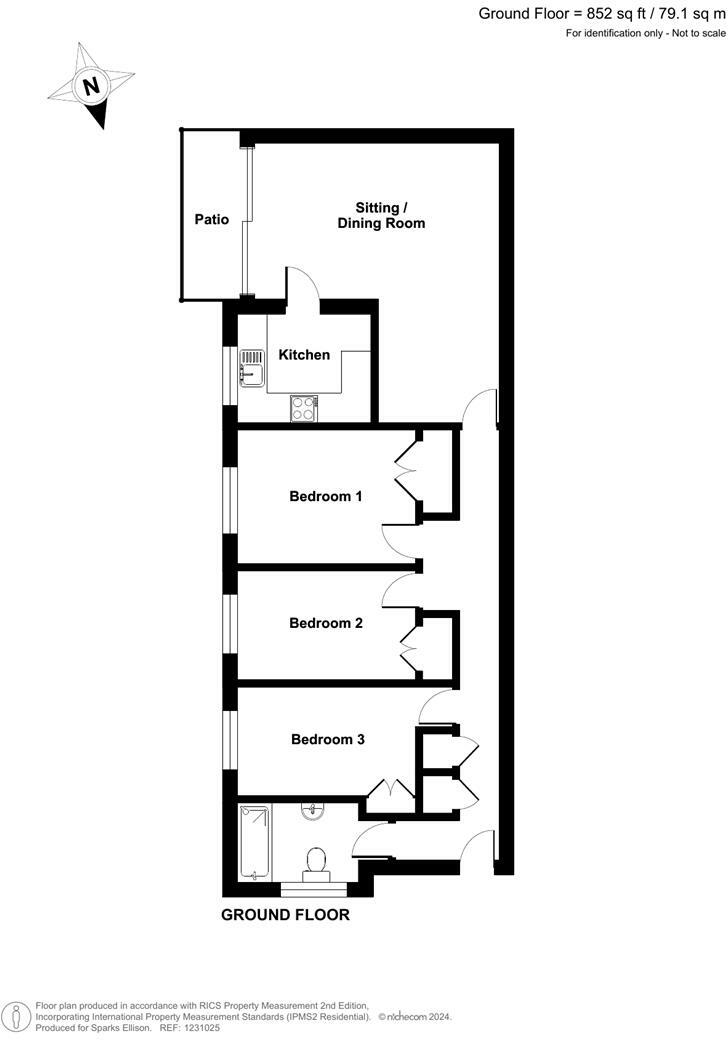
An exceptionally spacious three bedroom ground floor apartment conveniently situated in the centre of Chandler's Ford and within walking distance to all amenities. The property commences with a 28'10" reception hall leading to an L shaped 18'9" x 16'3" sitting/dining room with access to a kitchen...
Property Oracle says ..
This three-bedroom ground-floor apartment in Chandlers Ford, Hampshire, presents a solid opportunity for buyers seeking a convenient location and functional living space. Situated in Boston Court, the property benefits from its proximity to excellent schools, a train station, and local amenities, enhancing its overall appeal. The apartment itself appears well-maintained, although some modernisation in the kitchen and bathrooms would likely increase its market value. The communal green space offers some outdoor amenity, although the lack of a private garden might deter buyers seeking more outdoor space. The listed price seems appropriate for the area and property type, considering the average price for similar properties on Boston Court. Overall, this property offers a practical and conveniently located home, although potential buyers should weigh the trade-off between the convenience of the location, the functional interior, and the absence of a private garden.
Therefore, we give this property 6 / 10. *Disclaimer: This is our option and does constitute a recommendation or financial advice. Do your own research. *
- Price
- 7
- Condition
- 6
- Location
- 8
- Land
- 3
- Bedrooms
- 3
- Bathrooms
- 1
- Sqft (est)
- 851.43
The heatmap indicates the level of crime in the area. The color of the heatmap indicates the crime severity and recency.
Metrics Year-on-Year
- Average area value
- 361,000.00 £Decreased by 17.87 %
- Est sale value
- 361,006.32 £Increased by 22.54 %
- Average area rental value
- 1,508.00 £/moDecreased by 1.95 %
- Est letting value
- 851.43 £/moUnchanged by 0.00 %
- Est rental Yield
- 5.01 %Increased by 19.29 %
- Crime Rate
- 3.00 %Unchanged by 0.00 %
Agent Activity
Sparks Ellison created the listing.
Nearby Schools
| Name | Type | Ofsted | Distance |
|---|---|---|---|
| Chandler'S Ford Infant School | Community School | Good | 0.45 KM |
| Sherborne House School | Other Independent School | 0.55 KM | |
| Merdon Junior School | Community School | Good | 0.73 KM |
| Hiltingbury Infant School | Community School | Outstanding | 0.83 KM |
| Hiltingbury Junior School | Community School | Outstanding | 0.83 KM |
Images
Nearby Streets
| Name | Average Price | Average Sqft | Distance |
|---|---|---|---|
| Boston Court | £ 250,000 | 0 | 0.00 KM |
| Forest Road | £ 0 | 0 | 0.00 KM |
| Common Road | £ 1,200,000 | 0 | 0.00 KM |
| Acorn Drive | £ 0 | 0 | 0.00 KM |
| Foyle Road | £ 0 | 0 | 0.00 KM |
Nearby Transport
| Name | NLC | TLC | Distance |
|---|---|---|---|
| Chandlers Ford | 5836 | CFR | 0.91 KM |
| Eastleigh | 5899 | ESL | 4.11 KM |
| Southampton Airport Parkway | 5922 | SOA | 4.81 KM |
| Swaythling | 5933 | SWG | 5.50 KM |
| Shawford | 5929 | SHW | 6.82 KM |
Nearby Listings
| Address | Price | Type | Score | Distance |
|---|---|---|---|---|
| Boston Court, 55 Brownhill Road, Chandlers Ford | £ 250,000 | BUY | 6 / 10 | 0.00 KM |
| Woodhill Close, Chandler’s Ford | £ 795,000 | BUY | 8 / 10 | 0.09 KM |
| Tyrrel Road, Chandler's Ford, Hampshire, SO53 | £ 525,000 | BUY | 7 / 10 | 0.16 KM |
| Brownhill Road, Chandler's Ford, SO53 | £ 1,000,000 | BUY | 8 / 10 | 0.18 KM |
| Tyrrel Road, Chandler's Ford, Eastleigh, Hampshire, SO53 | £ 415,000 | BUY | 6 / 10 | 0.18 KM |
Nearby Properties
| Address | Price | Distance |
|---|---|---|
| 7a Tyrrel Road | £ 390,000 | 0.13 KM |
| 1 Tyrrel Road | £ 275,000 | 0.13 KM |
| 3 Tyrrel Road | £ 685,000 | 0.13 KM |
| 7 Tyrrel Road | £ 620,000 | 0.13 KM |
| 9 Tyrrel Road | £ 470,000 | 0.13 KM |