Chase Buchanan says ..
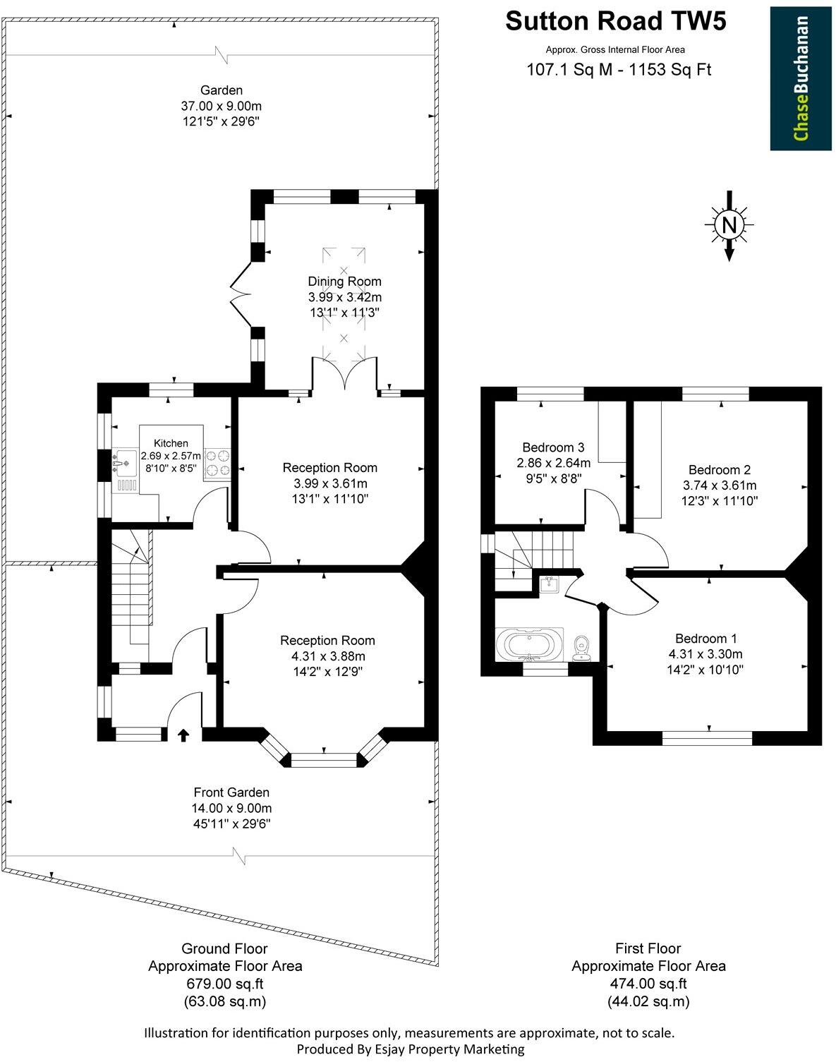
Chase Buchanan is delighted to offer to the market this superb chain free three bedroom detached family home boasting spacious accommodation, off road parking and large rear garden. The accommodation on the ground floor comprises a porch entrance, an inviting hallway, a bay fronted rec...
Property Oracle says ..
This is a detached property on Sutton Road, Hounslow, featuring three bedrooms and one bathroom. The property offers 1,093.50 sqft of living space. While the property benefits from its proximity to good schools and transportation links, the interior condition suggests that some renovation work is needed. The property includes a garden, adding to its appeal. The asking price of £750,000 seems a little high when compared to the average price per square foot in the area, but is not unreasonable given the location and size of the property.
Therefore, we give this property 6 / 10. *Disclaimer: This is our option and does constitute a recommendation or financial advice. Do your own research. *
- Price
- 6
- Condition
- 5
- Location
- 7
- Land
- 7
- Bedrooms
- 3
- Bathrooms
- 1
- Sqft (est)
- 1,093.50
The heatmap indicates the level of crime in the area. The color of the heatmap indicates the crime severity and recency.
Metrics Year-on-Year
- Average area value
- 416,250.00 £Decreased by 21.33 %
- Est sale value
- 616,734.00 £Decreased by 4.73 %
- Average area rental value
- 1,900.00 £/moDecreased by 10.88 %
- Est letting value
- 2,187.00 £/moUnchanged by 0.00 %
- Est rental Yield
- 5.48 %Increased by 13.22 %
- Crime Rate
- 3.00 %Unchanged by 0.00 %
Agent Activity
Chase Buchanan created the listing.
Nearby Schools
| Name | Type | Ofsted | Distance |
|---|---|---|---|
| Lampton Academy | Academy Converter | Outstanding | 0.30 KM |
| Lampton Children'S Centre | Children's Centre | 0.55 KM | |
| Heston Community School | Academy Converter | Good | 0.55 KM |
| Heston Primary School | Community School | Good | 0.69 KM |
| Alexandra Primary School | Community School | Good | 0.92 KM |
Images
Nearby Streets
| Name | Average Price | Average Sqft | Distance |
|---|---|---|---|
| The Short Hedges | £ 0 | 0 | 0.00 KM |
| Clarke Avenue | £ 486,750 | 0 | 0.00 KM |
| Civic Corner | £ 0 | 0 | 0.00 KM |
| Eldon Avenue | £ 0 | 0 | 0.00 KM |
| Concorde Close | £ 0 | 0 | 0.00 KM |
Nearby Transport
| Name | NLC | TLC | Distance |
|---|---|---|---|
| Hounslow | 5563 | HOU | 2.04 KM |
| Southall | 3187 | STL | 3.20 KM |
| Isleworth | 5592 | ISL | 3.35 KM |
| Whitton | 5611 | WTN | 3.50 KM |
| Syon Lane | 5609 | SYL | 4.65 KM |
Nearby Listings
| Address | Price | Type | Score | Distance |
|---|---|---|---|---|
| Sutton Road, Hounslow | £ 750,000 | BUY | 6 / 10 | 0.00 KM |
| Sutton Road, Hounslow | £ 700,000 | BUY | 7 / 10 | 0.01 KM |
| Great West Road, Hounslow | £ 1,050,000 | BUY | 7 / 10 | 0.08 KM |
| Great West Road, Hounslow | £ 825,000 | BUY | Unknown | 0.09 KM |
| Guernsey Close, Heston, Hounslow, TW5 | £ 355,000 | BUY | 6 / 10 | 0.11 KM |
Nearby Properties
| Address | Price | Distance |
|---|---|---|
| 2 Sutton Road | £ 490,000 | 0.00 KM |
| 42 Sutton Road | £ 420,000 | 0.00 KM |
| 32 Sutton Road | £ 250,000 | 0.00 KM |
| 6 Sutton Road | £ 875,000 | 0.02 KM |
| 22 Sutton Road | £ 275,000 | 0.02 KM |