Chancellors says ..
Being sold via Secure Sale online bidding. Terms & Conditions apply. Starting Bid £170,000
Property Oracle says ..
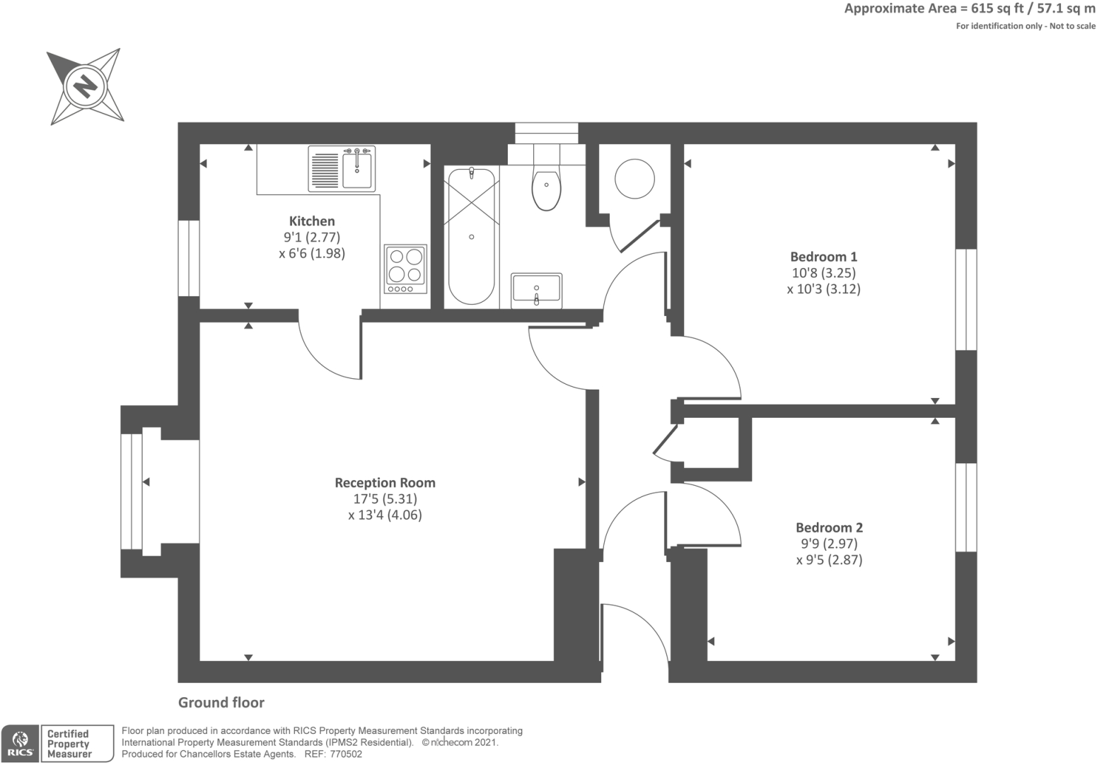
This is a 2-bedroom flat located in Reading, Berkshire. The property is listed for £170,000. It is located close to local schools and transportation. The property is in need of renovation. The kitchen and bathroom appear dated. The property does not have a garden, but there are communal grounds.
Therefore, we give this property 5 / 10. *Disclaimer: This is our option and does constitute a recommendation or financial advice. Do your own research. *
- Price
- 7
- Condition
- 4
- Location
- 7
- Land
- 3
- Bedrooms
- 2
- Bathrooms
- 1
- Sqft (est)
- 615.00
The heatmap indicates the level of crime in the area. The color of the heatmap indicates the crime severity and recency.
Metrics Year-on-Year
- Average area value
- 382,304.00 £Increased by 10.41 %
- Est sale value
- 261,375.00 £Increased by 23.91 %
- Average area rental value
- 1,370.00 £/moIncreased by 3.55 %
- Est letting value
- 615.00 £/moUnchanged by 0.00 %
- Est rental Yield
- 4.30 %Decreased by 6.32 %
- Crime Rate
- 6.00 %Unchanged by 0.00 %
from 346,255.00 £
from 210,945.00 £
from 1,323.00 £/mo
from 615.00 £/mo
from 4.59 %
from 6.00 %
Agent Activity
Chancellors created the listing.
Nearby Schools
| Name | Type | Ofsted | Distance |
|---|---|---|---|
| Coley Park | Children's Centre | 0.19 KM | |
| St Mary & All Saints Church Of England Primary School | Academy Sponsor Led | 0.40 KM | |
| All Saints Church Of England Aided Infant School | Voluntary Aided School | Good | 0.77 KM |
| All Saints Junior School | Free Schools | Outstanding | 0.77 KM |
| St Edward'S Prep | Other Independent School | 0.90 KM |
Images
Nearby Streets
| Name | Average Price | Average Sqft | Distance |
|---|---|---|---|
| Ashley Road | £ 600,000 | 0 | 0.00 KM |
| Bath Road Overbridge | £ 1,150,000 | 0 | 0.00 KM |
| North Lodge Mews | £ 0 | 0 | 0.00 KM |
| Hay Road | £ 0 | 0 | 0.00 KM |
| Josephine Court | £ 0 | 0 | 0.00 KM |
Nearby Transport
| Name | NLC | TLC | Distance |
|---|---|---|---|
| Reading West | 3160 | RDW | 1.17 KM |
| Reading | 3149 | RDG | 2.54 KM |
| Tilehurst | 3154 | TLH | 5.29 KM |
| Earley | 5694 | EAR | 7.99 KM |
| Theale | 3153 | THE | 9.47 KM |
Nearby Listings
| Address | Price | Type | Score | Distance |
|---|---|---|---|---|
| Reading, Berkshire, RG1 | £ 170,000 | BUY | 5 / 10 | 0.00 KM |
| Rembrandt Way, Reading, Berkshire, RG1 | £ 160,000 | BUY | Unknown | 0.04 KM |
| Rembrandt Way, Reading, Berkshire | £ 190,000 | BUY | 5 / 10 | 0.05 KM |
| Radnor House, Rembrandt Way, Reading, RG1 6QP | £ 170,000 | BUY | 5 / 10 | 0.07 KM |
| Rembrandt Way, Reading, Berkshire, RG1 | £ 200,000 | BUY | 5 / 10 | 0.07 KM |
Nearby Properties
| Address | Price | Distance |
|---|---|---|
| 30 Hungerford Drive | £ 450,000 | 0.16 KM |
| 13 Hungerford Drive | £ 460,000 | 0.16 KM |
| 27 Hungerford Drive | £ 245,000 | 0.17 KM |
| 9 Hungerford Drive | £ 265,000 | 0.17 KM |
| 28 Hungerford Drive | £ 395,000 | 0.17 KM |