Agecroft Road, Rudheath, Northwich
By Coulby Conduct
£ 215,000
Reviews
3 out of 5 stars
Coulby Conduct says ..
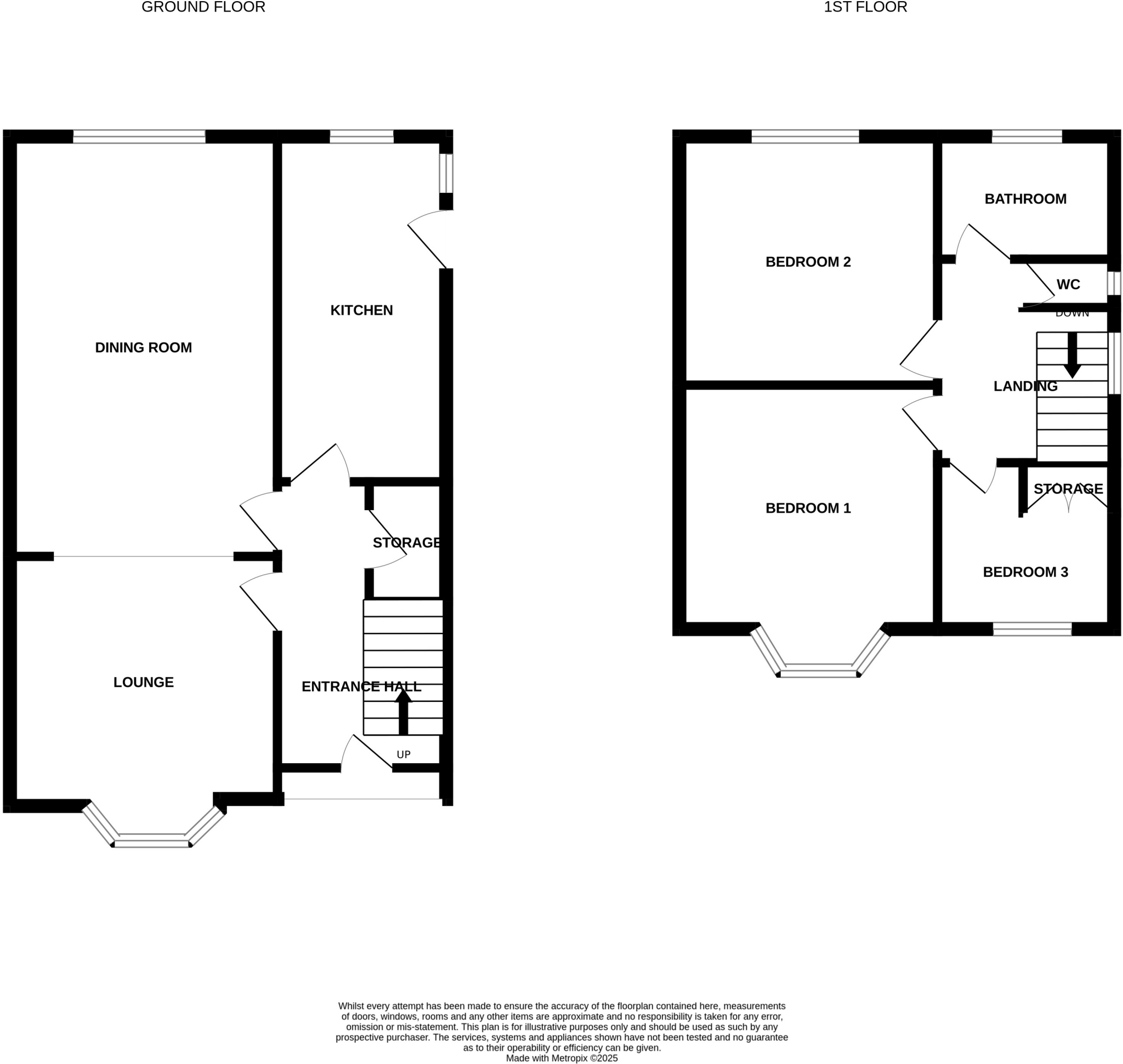
If your looking for a home to put your own stamp on, we may just have what you have been searching for. Introducing this extended three-bedroom semi-detached home, situated in a popular residential location, with loads of potential for future expansion and improvement. Internally, the home featu...
Property Oracle says ..
This property is a 3-bedroom semi-detached house located in Rudheath, Northwich. The location benefits from being relatively close to local schools such as The Rudheath Senior Academy and Rudheath Primary Academy, both rated as “Good” by Ofsted. Northwich train station is also within reasonable proximity, offering convenient access to other areas. The property itself appears to be in need of some modernisation and updating, as evidenced in the photos. The kitchen and bathrooms show their age and would likely benefit from a refurbishment. The property has a garden and a shed, which is a positive aspect. Considering the average price per square foot in the area is £299 and this property is listed at £215,000 with 1225 sqft, the price seems slightly below average, which could be attractive to buyers looking for a project. However, the need for renovations should be factored into any offer.
Therefore, we give this property 6 / 10. *Disclaimer: This is our option and does constitute a recommendation or financial advice. Do your own research. *
- Price
- 7
- Condition
- 4
- Location
- 7
- Land
- 6
- Bedrooms
- 3
- Bathrooms
- 0
- Sqft (est)
- 1,225.00
The heatmap indicates the level of crime in the area. The color of the heatmap indicates the crime severity and recency.
Metrics Year-on-Year
- Average area value
- 258,571.00 £Decreased by 18.16 %
- Est sale value
- 401,800.00 £Increased by 11.95 %
- Average area rental value
- 1,230.00 £/moIncreased by 21.30 %
- Est letting value
- 1,225.00 £/mo
- Est rental Yield
- 5.71 %Increased by 48.31 %
- Crime Rate
- 6.00 %Unchanged by 0.00 %
Agent Activity
Coulby Conduct created the listing.
Nearby Schools
| Name | Type | Ofsted | Distance |
|---|---|---|---|
| The Rudheath Senior Academy | Academy Sponsor Led | Good | 0.58 KM |
| Rudheath Primary Academy And Nursery | Academy Sponsor Led | Good | 1.02 KM |
| Victoria Road Primary School | Academy Converter | Requires improvement | 1.38 KM |
| Victoria Road Children'S Centre | Children's Centre | 1.48 KM | |
| Witton Church Walk Cofe Aided Nursery And Primary School | Voluntary Aided School | Good | 1.98 KM |
Images
Nearby Streets
| Name | Average Price | Average Sqft | Distance |
|---|---|---|---|
| Porter Drive | £ 180,000 | 0 | 0.00 KM |
| Heathcote Gardens | £ 375,000 | 0 | 0.00 KM |
| Fidden Avenue | £ 0 | 0 | 0.00 KM |
| Marple Road | £ 160,000 | 0 | 0.00 KM |
| South Drive | £ 0 | 0 | 0.00 KM |
Nearby Transport
| Name | NLC | TLC | Distance |
|---|---|---|---|
| Northwich | 2326 | NWI | 1.07 KM |
| Lostock Gralam | 2307 | LTG | 2.92 KM |
| Greenbank | 2325 | GBK | 5.04 KM |
| Winsford | 2269 | WSF | 7.32 KM |
| Hartford (Cheshire) | 2230 | HTF | 7.33 KM |
Nearby Listings
| Address | Price | Type | Score | Distance |
|---|---|---|---|---|
| Agecroft Road, Northwich | £ 250,000 | BUY | 7 / 10 | 0.00 KM |
| Agecroft Road, Rudheath, Northwich | £ 215,000 | BUY | 6 / 10 | 0.00 KM |
| Agecroft Road, Northwich, Cheshire, CW9 | £ 230,000 | BUY | 6 / 10 | 0.05 KM |
| Manor Drive, Northwich CW9 7HR | £ 190,000 | BUY | 6 / 10 | 0.09 KM |
| Manor Drive, Northwich | £ 210,000 | BUY | 6 / 10 | 0.09 KM |
Nearby Properties
| Address | Price | Distance |
|---|---|---|
| 22 Agecroft Road | £ 162,500 | 0.00 KM |
| 1b Agecroft Road | £ 106,000 | 0.00 KM |
| 27 Agecroft Road | £ 145,000 | 0.00 KM |
| 9 Agecroft Road | £ 149,000 | 0.00 KM |
| 29 Agecroft Road | £ 145,000 | 0.00 KM |