Hillside, Southcrest, Redditch, B98
By A P Morgan Estate Agents
£ 180,000
Reviews
3 out of 5 stars
A P Morgan Estate Agents says ..
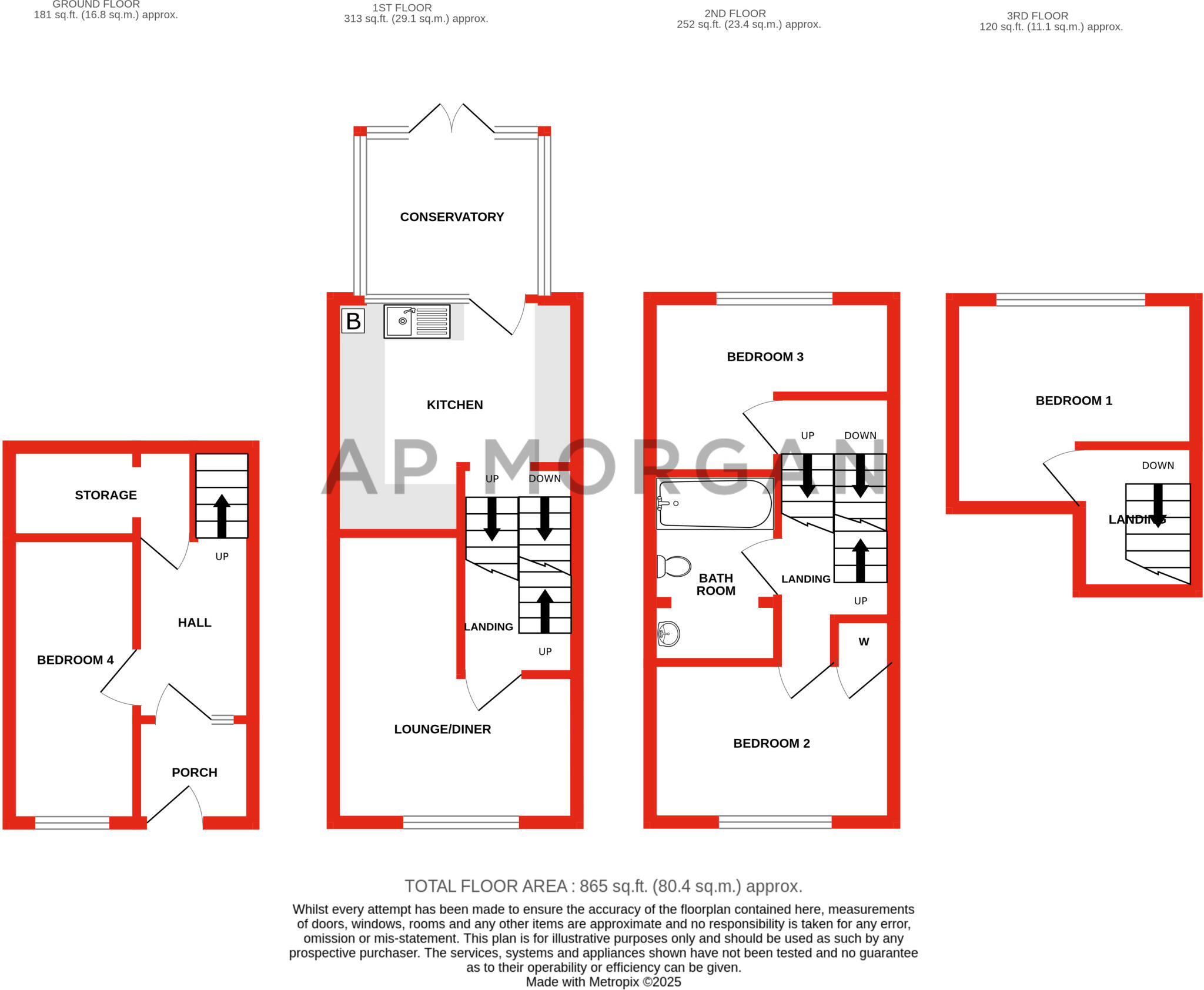
A well-presented mid-terrace property, offering four bedrooms and spacious living space across four split-level floors, located in a sought-after location of Southcrest, Redditch.
Property Oracle says ..
This four-bedroom terraced house in Redditch is listed at £180,000. The property benefits from a central location, with nearby schools and transport links. The average house price in the area is £259,400, and the average price per square foot is £308. This property is slightly below average in terms of price per sqft given its size of 925 sqft. However, the condition of the property may impact its overall value. The property includes a small garden.
Therefore, we give this property 6 / 10. *Disclaimer: This is our option and does constitute a recommendation or financial advice. Do your own research. *
- Price
- 6
- Condition
- 6
- Location
- 7
- Land
- 5
- Bedrooms
- 4
- Bathrooms
- 1
- Sqft (est)
- 925.00
- Lot (est)
- 865.00
The heatmap indicates the level of crime in the area. The color of the heatmap indicates the crime severity and recency.
Metrics Year-on-Year
- Average area value
- 487,124.00 £Increased by 94.35 %
- Est sale value
- 569,800.00 £Increased by 112.41 %
- Average area rental value
- 1,220.00 £/moIncreased by 6.46 %
- Est letting value
- 925.00 £/moUnchanged by 0.00 %
- Est rental Yield
- 3.01 %Decreased by 45.17 %
- Crime Rate
- 5.00 %Unchanged by 0.00 %
Agent Activity
A P Morgan Estate Agents created the listing.
Nearby Schools
| Name | Type | Ofsted | Distance |
|---|---|---|---|
| St Luke'S Cofe First School | Voluntary Controlled School | Requires improvement | 0.51 KM |
| Heart Of Worcestershire College | Further Education | Good | 1.07 KM |
| Holyoakes Field First School | Academy Converter | 1.22 KM | |
| Trinity High School And Sixth Form Centre | Academy Converter | Good | 1.35 KM |
| Birchensale Middle School | Academy Converter | 1.61 KM |
Images
Nearby Streets
| Name | Average Price | Average Sqft | Distance |
|---|---|---|---|
| Lilac Close | £ 0 | 0 | 0.00 KM |
| South Street | £ 0 | 0 | 0.00 KM |
| Greenfields | £ 210,000 | 0 | 0.00 KM |
| Station Way | £ 0 | 0 | 0.00 KM |
| Market Walk | £ 0 | 0 | 0.00 KM |
Nearby Transport
| Name | NLC | TLC | Distance |
|---|---|---|---|
| Redditch | 1208 | RDC | 0.88 KM |
| Alvechurch | 1198 | ALV | 5.94 KM |
| Barnt Green | 1096 | BTG | 8.85 KM |
Nearby Listings
| Address | Price | Type | Score | Distance |
|---|---|---|---|---|
| Hillside, Southcrest, Redditch, B98 | £ 180,000 | BUY | 6 / 10 | 0.00 KM |
| Mount Pleasant, Redditch, Worcestershire, B97 | £ 85,000 | BUY | 6 / 10 | 0.10 KM |
| Mount Pleasant, Redditch | £ 110,000 | BUY | 6 / 10 | 0.10 KM |
| Mount Pleasant, Redditch, Worcestershire, B97 | £ 90,000 | BUY | 7 / 10 | 0.10 KM |
| Mount Pleasant, Redditch, Worcestershire, B97 | £ 85,000 | BUY | 6 / 10 | 0.10 KM |
Nearby Properties
| Address | Price | Distance |
|---|---|---|
| 7 The Firs | £ 71,500 | 0.02 KM |
| 1 The Firs | £ 44,950 | 0.02 KM |
| 6 The Firs | £ 77,000 | 0.02 KM |
| 15 Hillside | £ 114,950 | 0.06 KM |
| 18 Hillside | £ 124,950 | 0.06 KM |