Pegasus Court, Fleet, Hampshire, GU51
By Mackenzie Smith
£ 160,000
Reviews
3 out of 5 stars
Mackenzie Smith says ..
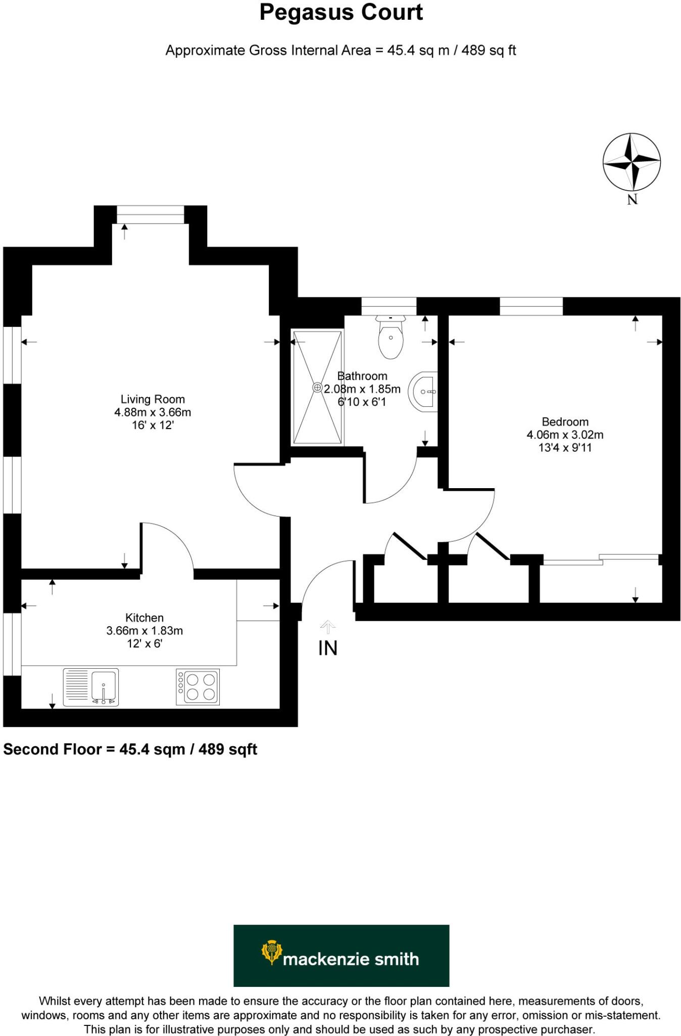
Well-presented first-floor apartment featuring a double bedroom and a recently refitted kitchen located in a convenient location for Fleet main line station and shopping centre.
Property Oracle says ..
This one-bedroom apartment in Pegasus Court, Fleet, presents a good opportunity for buyers. The property is situated in a central location within Fleet, offering convenient access to local amenities, transportation links, and schools. While the apartment is in generally good condition, some areas could benefit from modernization to maximize its potential. The presence of communal garden space is a notable advantage. Considering the location, condition, and size, the list price of £160,000 appears to be a reasonable value.
Therefore, we give this property 7 / 10. *Disclaimer: This is our option and does constitute a recommendation or financial advice. Do your own research. *
- Price
- 8
- Condition
- 7
- Location
- 7
- Land
- 6
- Bedrooms
- 1
- Bathrooms
- 1
- Sqft (est)
- 437.66
The heatmap indicates the level of crime in the area. The color of the heatmap indicates the crime severity and recency.
Metrics Year-on-Year
- Average area value
- 399,167.00 £Increased by 7.59 %
- Est sale value
- 161,934.20 £Increased by 3.64 %
- Average area rental value
- 1,292.00 £/moIncreased by 3.03 %
- Est letting value
- 437.66 £/moUnchanged by 0.00 %
- Est rental Yield
- 3.88 %Decreased by 4.43 %
- Crime Rate
- 8.00 %Unchanged by 0.00 %
Agent Activity
Mackenzie Smith created the listing.
Nearby Schools
| Name | Type | Ofsted | Distance |
|---|---|---|---|
| Fleet Fireflies Children'S Centre | Children's Centre Linked Site | 0.84 KM | |
| Heatherside Infant School | Community School | Outstanding | 0.98 KM |
| Heatherside Junior School | Community School | Outstanding | 0.98 KM |
| Court Moor School | Community School | Good | 1.61 KM |
| Velmead Junior School | Community School | Good | 1.89 KM |
Images
Nearby Streets
| Name | Average Price | Average Sqft | Distance |
|---|---|---|---|
| Clarendon House | £ 0 | 0 | 0.00 KM |
| Travis Perkins | £ 0 | 0 | 0.00 KM |
| Church Court | £ 230,000 | 0 | 0.00 KM |
| Glebe Court | £ 1,150,000 | 0 | 0.00 KM |
| Stockton House | £ 0 | 0 | 0.00 KM |
Nearby Transport
| Name | NLC | TLC | Distance |
|---|---|---|---|
| Fleet | 5522 | FLE | 1.29 KM |
| Winchfield | 5528 | WNF | 7.34 KM |
| Sandhurst (Berks) | 5646 | SND | 8.02 KM |
| Blackwater | 5625 | BAW | 8.80 KM |
| Crowthorne | 5628 | CRN | 9.47 KM |
Nearby Listings
| Address | Price | Type | Score | Distance |
|---|---|---|---|---|
| Pegasus Court, Fleet, Hampshire, GU51 | £ 120,000 | BUY | Unknown | 0.00 KM |
| Pegasus Court, Fleet, Hampshire, GU51 | £ 200,000 | BUY | 6 / 10 | 0.00 KM |
| Pegasus Court, Fleet, Hampshire, GU51 | £ 160,000 | BUY | 7 / 10 | 0.00 KM |
| Pegasus Court, Fleet, Hampshire, GU51 | £ 165,000 | BUY | 6 / 10 | 0.00 KM |
| Pegasus Court, Fleet, GU51 | £ 275,000 | BUY | 7 / 10 | 0.01 KM |
Nearby Properties
| Address | Price | Distance |
|---|---|---|
| 23 Pegasus Court | £ 109,950 | 0.01 KM |
| 19 Pegasus Court | £ 140,000 | 0.01 KM |
| 8 Pegasus Court | £ 207,500 | 0.01 KM |
| 16 Pegasus Court | £ 172,500 | 0.01 KM |
| 12 Pegasus Court | £ 192,500 | 0.01 KM |