Winkworth says ..
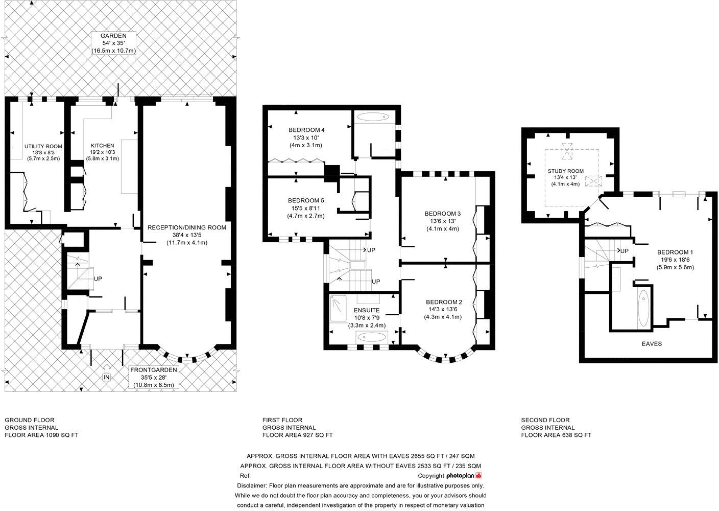
We are delighted to offer this very spacious 5 bedroom 3 bathroom family home located on the Finchley Road, close to the junction with Ravenscroft Avenue. The property is located behind electric gates with off street parking for 3 to 4 card and is excess of 2500 sq’ over 3 floor...
Property Oracle says ..
This property is located in Finchley Road, London, NW11, which is a desirable area with good transport links and a range of amenities nearby. The property itself is a five-bedroom semi-detached house with a sizeable garden, and appears to be in good condition. The list price of £1,695,000 seems reasonable when considering the average price per square foot in the area and the property’s features. However, a lack of plot size data makes a complete assessment impossible. More information on the property’s condition and plot size would be needed for a more comprehensive evaluation.
Therefore, we give this property 7 / 10. *Disclaimer: This is our option and does constitute a recommendation or financial advice. Do your own research. *
- Price
- 7
- Condition
- 8
- Location
- 9
- Land
- 7
- Bedrooms
- 5
- Bathrooms
- 2
- Sqft (est)
- 2,533.00
The heatmap indicates the level of crime in the area. The color of the heatmap indicates the crime severity and recency.
Metrics Year-on-Year
- Average area value
- 864,995.00 £Decreased by 3.17 %
- Est sale value
- 820,692.00 £Decreased by 41.73 %
- Average area rental value
- 2,390.00 £/moIncreased by 6.32 %
- Est letting value
- 0.00 £/moDecreased by 100.00 %
- Est rental Yield
- 3.32 %Increased by 9.93 %
- Crime Rate
- 5.00 %Unchanged by 0.00 %
Agent Activity
Winkworth created the listing.
Nearby Schools
| Name | Type | Ofsted | Distance |
|---|---|---|---|
| Kisharon School | Free Schools Special | 0.14 KM | |
| Shiras Devorah High School | Other Independent School | Inadequate | 0.14 KM |
| Golders Hill School | Other Independent School | Good | 0.42 KM |
| Lubavitch Yeshiva Ketanah Of London | Other Independent School | Inadequate | 0.52 KM |
| Lubavitch Senior Boys School | Other Independent School | Inadequate | 0.52 KM |
Images
Nearby Streets
| Name | Average Price | Average Sqft | Distance |
|---|---|---|---|
| Portsdown Mews | £ 0 | 0 | 0.00 KM |
| Hendon Park Row | £ 0 | 0 | 0.00 KM |
| Hill Close | £ 0 | 0 | 0.00 KM |
| St Albans Lane | £ 2,500,000 | 0 | 0.00 KM |
| Alberon Gardens | £ 750,000 | 0 | 0.00 KM |
Nearby Transport
| Name | NLC | TLC | Distance |
|---|---|---|---|
| Cricklewood | 1519 | CRI | 2.74 KM |
| West Hampstead Thameslink | 1525 | WHP | 3.33 KM |
| West Hampstead | 1421 | WHD | 3.45 KM |
| Finchley Road And Frognal | 1445 | FNY | 3.45 KM |
| Brondesbury | 1437 | BSY | 3.68 KM |
Nearby Listings
| Address | Price | Type | Score | Distance |
|---|---|---|---|---|
| Finchley Road, London, NW11 | £ 1,695,000 | BUY | 7 / 10 | 0.00 KM |
| Hampstead Gardens, Temple Fortune, London, NW11 | £ 1,175,000 | BUY | 7 / 10 | 0.04 KM |
| Hampstead Gardens, London | £ 775,000 | BUY | Unknown | 0.07 KM |
| Hampstead Gardens, London | £ 625,000 | BUY | 6 / 10 | 0.07 KM |
| Hampstead Gardens, London NW11 | £ 1,300,000 | BUY | 7 / 10 | 0.07 KM |
Nearby Properties
| Address | Price | Distance |
|---|---|---|
| 993 Finchley Road | £ 550,000 | 0.06 KM |
| 1009 Finchley Road | £ 45,000 | 0.06 KM |
| 12 Hampstead Gardens | £ 1,195,000 | 0.07 KM |
| 3 Hampstead Gardens | £ 1,100,000 | 0.07 KM |
| 11 Hampstead Gardens | £ 235,000 | 0.07 KM |