Derwent Close, Farnborough, Hampshire, GU14
By Bridges Estate Agents
£ 325,000
Reviews
3 out of 5 stars
Bridges Estate Agents says ..
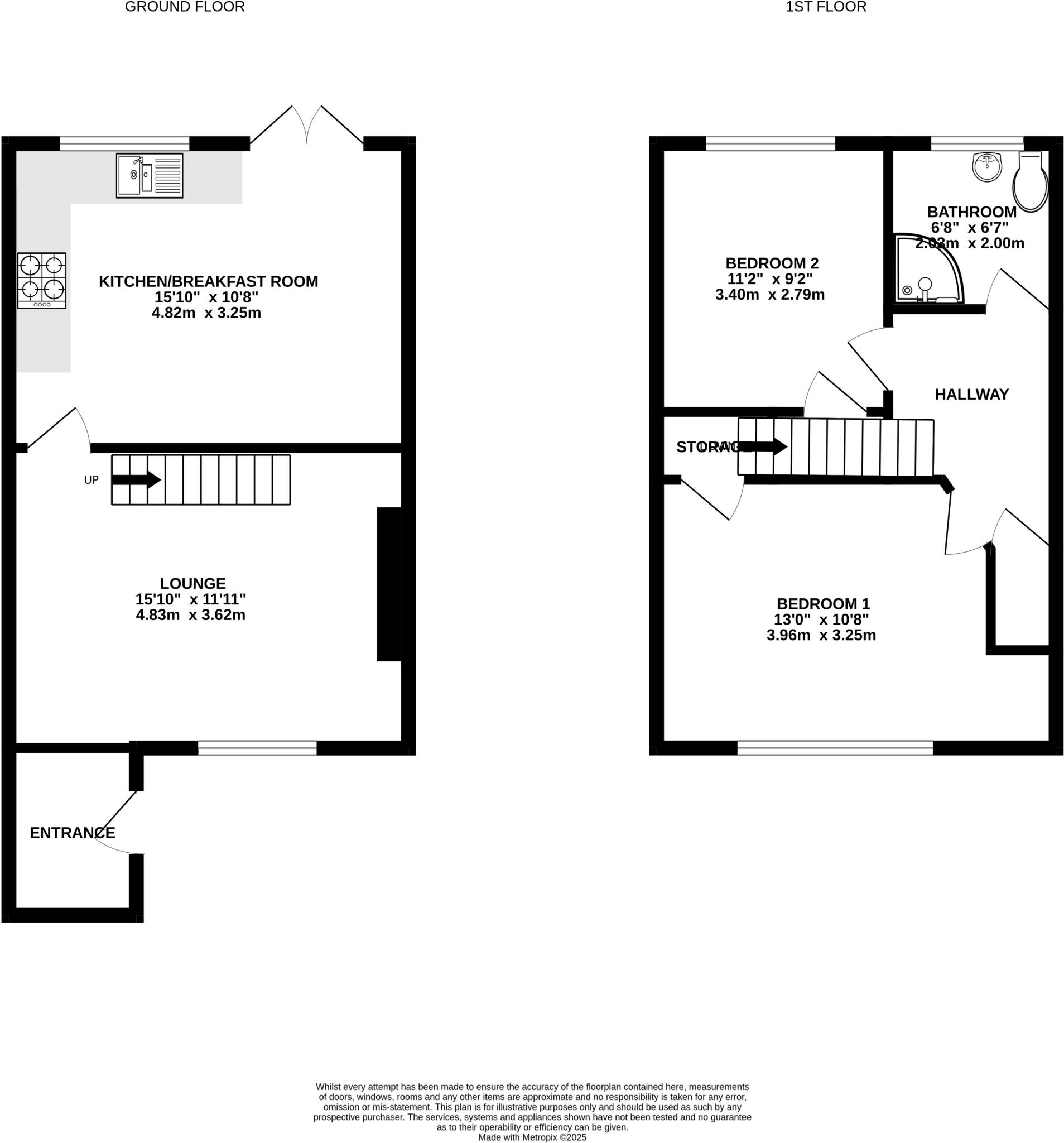
A charming two bedroom end of terrace home on Derwent Close, Southwood, Farnborough. Bright and welcoming, this property is ideal for first time buyers or downsizers. The ground floor offers a spacious lounge filled with natural light, leading to a modern kitchen/dining area overlookin...
Property Oracle says ..
This end-of-terrace property on Derwent Close, Farnborough, offers two bedrooms and one bathroom. While the property is described as traditional and benefits from a well-maintained garden, it appears to be in need of some modernisation. The kitchen and bathroom, while functional, show their age. The location is a positive aspect, with proximity to schools and transportation. The asking price of £325,000 is slightly below the average for the street, potentially reflecting the need for renovation. Overall, this property presents an opportunity for buyers looking to put their own stamp on a home in a convenient location.
Therefore, we give this property 6 / 10. *Disclaimer: This is our option and does constitute a recommendation or financial advice. Do your own research. *
- Price
- 7
- Condition
- 6
- Location
- 7
- Land
- 7
- Bedrooms
- 2
- Bathrooms
- 1
- Sqft (est)
- 641.48
The heatmap indicates the level of crime in the area. The color of the heatmap indicates the crime severity and recency.
Metrics Year-on-Year
- Average area value
- 359,375.00 £Decreased by 28.31 %
- Est sale value
- 289,307.48 £Increased by 23.56 %
- Average area rental value
- 1,575.00 £/moIncreased by 0.25 %
- Est letting value
- 641.48 £/moUnchanged by 0.00 %
- Est rental Yield
- 5.26 %Increased by 39.89 %
- Crime Rate
- 10.00 %Unchanged by 0.00 %
Agent Activity
Bridges Estate Agents created the listing.
Nearby Schools
| Name | Type | Ofsted | Distance |
|---|---|---|---|
| Southwood Infant School | Community School | Good | 0.57 KM |
| Cove School | Foundation School | Good | 0.87 KM |
| Cove Junior School | Community School | Good | 0.93 KM |
| Cove Infant School | Community School | Requires improvement | 1.04 KM |
| Parsonage Farm Nursery And Infant School | Community School | Outstanding | 1.28 KM |
Images
Nearby Streets
| Name | Average Price | Average Sqft | Distance |
|---|---|---|---|
| Kendal Close | £ 0 | 0 | 0.00 KM |
| Apollo Rise | £ 407,500 | 0 | 0.00 KM |
| Church Lane | £ 675,000 | 0 | 0.00 KM |
| Rhine Banks | £ 0 | 0 | 0.00 KM |
| West Heath Roundabout | £ 0 | 0 | 0.00 KM |
Nearby Transport
| Name | NLC | TLC | Distance |
|---|---|---|---|
| Farnborough (Main) | 5521 | FNB | 2.91 KM |
| Blackwater | 5625 | BAW | 4.38 KM |
| Frimley | 5683 | FML | 4.40 KM |
| Farnborough North | 5688 | FNN | 4.41 KM |
| Fleet | 5522 | FLE | 5.43 KM |
Nearby Listings
| Address | Price | Type | Score | Distance |
|---|---|---|---|---|
| Derwent Close, Farnborough, Hampshire, GU14 | £ 325,000 | BUY | 6 / 10 | 0.00 KM |
| Derwent Close, Farnborough | £ 450,000 | BUY | Unknown | 0.04 KM |
| Derwent Close, Farnborough, Hampshire, GU14 | £ 350,000 | BUY | 6 / 10 | 0.04 KM |
| Ambleside Close, Farnborough, Hampshire, GU14 | £ 375,000 | BUY | 6 / 10 | 0.08 KM |
| Southwood Road, Farnborough , GU14 | £ 425,000 | BUY | Unknown | 0.08 KM |
Nearby Properties
| Address | Price | Distance |
|---|---|---|
| 18 Derwent Close | £ 287,500 | 0.06 KM |
| 6 Derwent Close | £ 350,000 | 0.06 KM |
| 26 Derwent Close | £ 355,000 | 0.06 KM |
| 28 Derwent Close | £ 297,000 | 0.06 KM |
| 14 Derwent Close | £ 355,000 | 0.06 KM |