Alice Templer Close, St Leonards, Exeter
By Cooksleys
£ 395,000
Reviews
3 out of 5 stars
Cooksleys says ..
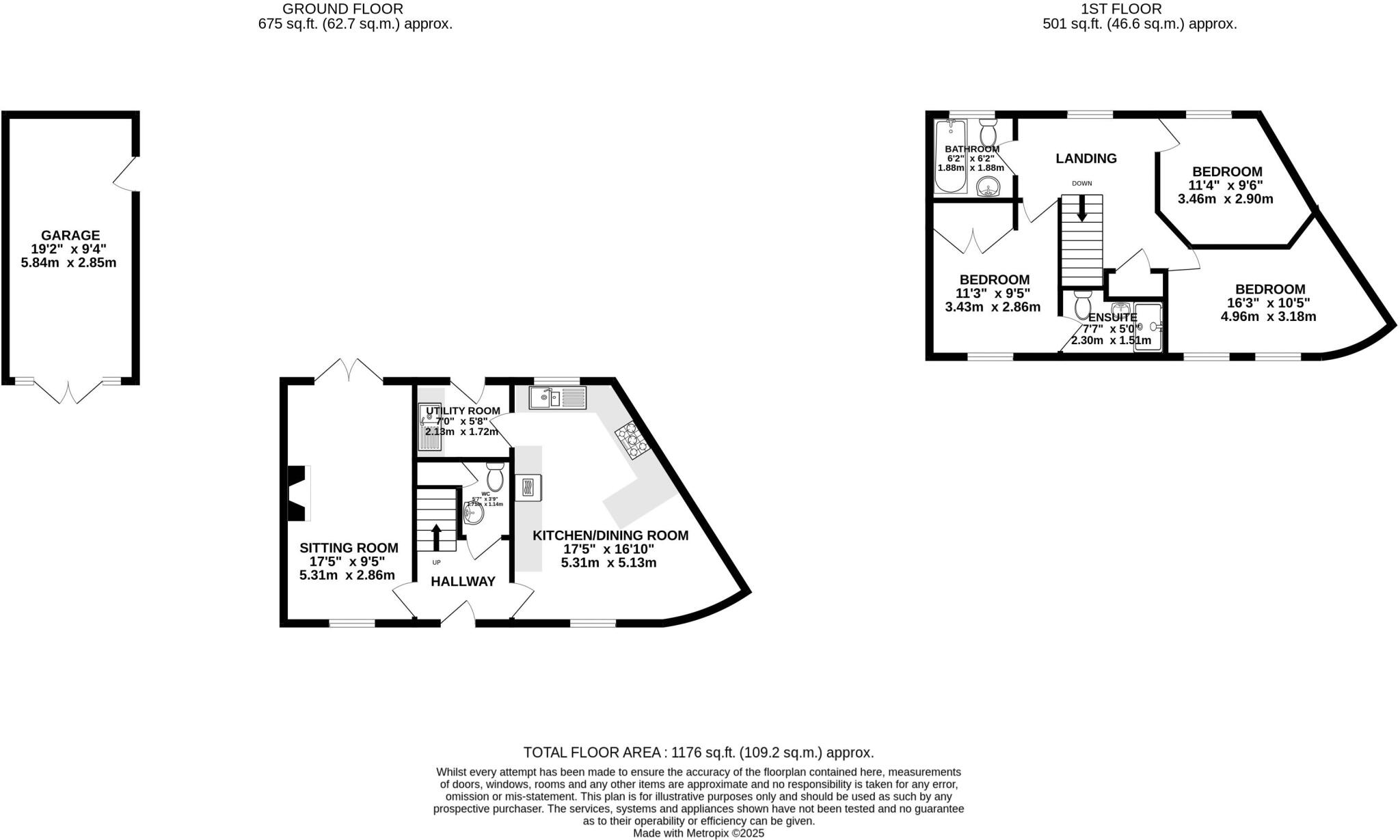
This charming three double bedroom end of terrace property situated in a popular St Leonards no through road location. With spacious accommodation comprising entrance hall, lounge, open plan kitchen/ dining room, utility room, three double bedrooms, master with en-suite shower room, family bathro...
Property Oracle says ..
This property is located in a desirable area of Exeter, close to good schools and transport links. The house itself appears to be in good condition, though some minor cosmetic updates might enhance its appeal. The presence of a garden and garage adds to its value. While the list price is slightly above the average for the area, the property’s features and location justify this to some extent.
Therefore, we give this property 7 / 10. *Disclaimer: This is our option and does constitute a recommendation or financial advice. Do your own research. *
- Price
- 7
- Condition
- 8
- Location
- 9
- Land
- 7
- Bedrooms
- 3
- Bathrooms
- 2
The heatmap indicates the level of crime in the area. The color of the heatmap indicates the crime severity and recency.
Metrics Year-on-Year
- Average area value
- 456,240.00 £Increased by 13.67 %
- Average area rental value
- 1,149.00 £/moDecreased by 10.09 %
- Est rental Yield
- 3.02 %Decreased by 20.94 %
- Crime Rate
- 7.00 %Unchanged by 0.00 %
Agent Activity
Cooksleys created the listing.
Nearby Schools
| Name | Type | Ofsted | Distance |
|---|---|---|---|
| Devon Hospitals' Short Stay School | Pupil Referral Unit | Good | 0.47 KM |
| Exeter School | Other Independent School | 0.63 KM | |
| Wynstream School | Community School | Requires improvement | 0.65 KM |
| Isca | Academy Sponsor Led | Good | 0.72 KM |
| Atkinson Secure Children'S Home | Secure Units | 0.82 KM |
Images
Nearby Streets
| Name | Average Price | Average Sqft | Distance |
|---|---|---|---|
| Gras Lawn | £ 0 | 0 | 0.00 KM |
| The Maltings | £ 0 | 0 | 0.00 KM |
| Laburnum Road | £ 265,000 | 0 | 0.00 KM |
| St Margaret's | £ 436,429 | 0 | 0.00 KM |
| Hazel Road | £ 0 | 0 | 0.00 KM |
Nearby Transport
| Name | NLC | TLC | Distance |
|---|---|---|---|
| Polsloe Bridge | 3422 | POL | 2.10 KM |
| St James Park (Exeter) | 5751 | SJP | 2.30 KM |
| Exeter Central | 5755 | EXC | 2.90 KM |
| Exeter St Thomas | 3414 | EXT | 3.19 KM |
| Exeter St David'S | 3410 | EXD | 4.03 KM |
Nearby Listings
| Address | Price | Type | Score | Distance |
|---|---|---|---|---|
| Alice Templer Close, St Leonards, Exeter | £ 395,000 | BUY | 7 / 10 | 0.00 KM |
| St Leonards, Exeter | £ 425,000 | BUY | 7 / 10 | 0.09 KM |
| Fleming Way, Exeter, EX2 | £ 415,000 | BUY | 6 / 10 | 0.10 KM |
| Watson Place, St Leonards | £ 375,000 | BUY | 6 / 10 | 0.11 KM |
| Veale Drive, Wyvern Park, Exeter, EX2 | £ 100,000 | BUY | 7 / 10 | 0.13 KM |
Nearby Properties
| Address | Price | Distance |
|---|---|---|
| 16a Alice Templer Close | £ 215,000 | 0.01 KM |
| 25 Alice Templer Close | £ 265,000 | 0.01 KM |
| 9 Alice Templer Close | £ 220,000 | 0.01 KM |
| 11 Alice Templer Close | £ 225,000 | 0.01 KM |
| 24 Alice Templer Close | £ 230,000 | 0.01 KM |